Make an Enquiry About This Property
Ref: IG592
Property marketed by Real Almeria Property
Your Name:
Email Address:
Telephone Nº:
By checking this box, we will pass your query on to up to five other Estate Agents who have similar properties to this.
How can we help you?:
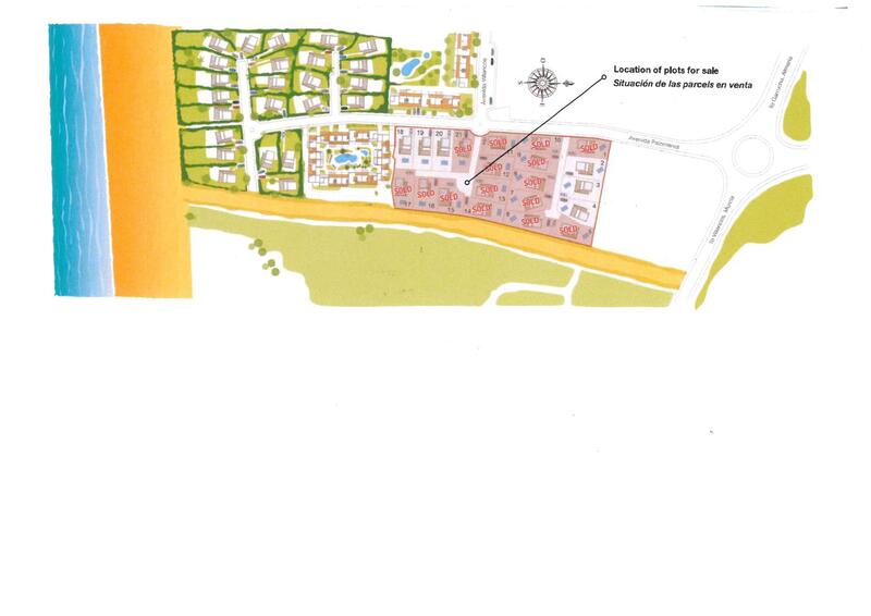
Beautiful beachside plots
Prices start from 99 000EUR
Recently 21 consented building plots each of 465m2 were released at Playa Marques. Their location provides direct access to Villaricos, Vera, Garrucha and Mojacar; shops, restaurants, bars, sports etc. This is a unique opportunity to purchase fully legal individual urban building plots, in a beach environment, backed by an existing, established and substantial developer. The plots for sale are located within 150m of a vast surreal expanse of fine sandy beach, stretching away as far as the eye can see, washed by the exceptionally clean, clear local waters of the Mediterranean. This is El Playazo, the grand beach of the Almanzora, that stretches a total of 7km down from the mouth of the Rio Almanzora, and Boca del Rio Beach in Villaricos, as far as the harbour town of Garrucha, famous throughout Spain for its giant succulent red prawns or ‘gambones’. To the south are views across the sparkling waters of the Gulf of Vera, as far as the Moorish and somewhat bohemian hilltop village of Mojacar, all backed by the beachside development of Vera. But to the north is an all but deserted series of beaches, backed by trees in the most enviable of locations, all along the coast to Villaricos.
DETAILED PLANNING RULE 14 ZONE 14.2
Permitted and Compatible Use :
• Single Family House: Detached, Semi-detached and Townhouse.
• Swimming pools.
Note : all swimming pools require a municipal building permission if not
included in original building license.
• Private parking.
• Private open spaces.
Development Conditions
• Maximum Number of Storeys : Three Storeys (including ground floor). Plus basements permitted.
• Maximum Height : Eleven meters (11m).
• Maximum Occupation Whole Project : 25% (including ancillary buildings).
Setbacks : Minimum of 3m to external boundary.
Note : For further information in case of doubt please refer to the Vera Town Hall
Regulations for Buildings as per the published rules 17/04/2007 Bulletin number
073. Copies available.
Prices start from 99 000EUR
Recently 21 consented building plots each of 465m2 were released at Playa Marques. Their location provides direct access to Villaricos, Vera, Garrucha and Mojacar; shops, restaurants, bars, sports etc. This is a unique opportunity to purchase fully legal individual urban building plots, in a beach environment, backed by an existing, established and substantial developer. The plots for sale are located within 150m of a vast surreal expanse of fine sandy beach, stretching away as far as the eye can see, washed by the exceptionally clean, clear local waters of the Mediterranean. This is El Playazo, the grand beach of the Almanzora, that stretches a total of 7km down from the mouth of the Rio Almanzora, and Boca del Rio Beach in Villaricos, as far as the harbour town of Garrucha, famous throughout Spain for its giant succulent red prawns or ‘gambones’. To the south are views across the sparkling waters of the Gulf of Vera, as far as the Moorish and somewhat bohemian hilltop village of Mojacar, all backed by the beachside development of Vera. But to the north is an all but deserted series of beaches, backed by trees in the most enviable of locations, all along the coast to Villaricos.
DETAILED PLANNING RULE 14 ZONE 14.2
Permitted and Compatible Use :
• Single Family House: Detached, Semi-detached and Townhouse.
• Swimming pools.
Note : all swimming pools require a municipal building permission if not
included in original building license.
• Private parking.
• Private open spaces.
Development Conditions
• Maximum Number of Storeys : Three Storeys (including ground floor). Plus basements permitted.
• Maximum Height : Eleven meters (11m).
• Maximum Occupation Whole Project : 25% (including ancillary buildings).
Setbacks : Minimum of 3m to external boundary.
Note : For further information in case of doubt please refer to the Vera Town Hall
Regulations for Buildings as per the published rules 17/04/2007 Bulletin number
073. Copies available.
Property Features
- 0 bedrooms
- 0 bathrooms
- 465m² Plot size
Costing Breakdown
Standard form of payment
Reservation deposit
3,000€
Remainder of deposit to 10%
9,500€
Final Payment of 90% on completion
112,500€
Property Purchase Expenses
Property price
125,000€
Transfer tax 8%
10,000€
Notary fees (approx)
600€
Land registry fees (approx)
600€
Legal fees (approx)
1,500€
* Transfer tax is based on the sale value or the cadastral value whichever is the highest.
** The information above is displayed as a guide only.
Mortgage Calculator
Similar Properties
Spanish Property News & Updates by Spain Property Portal.com
In Spain, two primary taxes are associated with property purchases: IVA (Value Added Tax) and ITP (Property Transfer Tax). IVA, typically applicable to new constructions, stands at 10% of the property's value. On the other hand, ITP, levied on resale properties, varies between regions but generally ranges from 6% to 10%.
Spain Property Portal is an online platform that has revolutionized the way people buy and sell real estate in Spain.
In Spain, mortgages, known as "hipotecas," are common, and the market has seen significant growth and evolution.







