Make an Enquiry About This Property
Ref: EIV5995T
Property marketed by España Dream Properties
Your Name:
Email Address:
Telephone Nº:
By checking this box, we will pass your query on to up to five other Estate Agents who have similar properties to this.
How can we help you?:
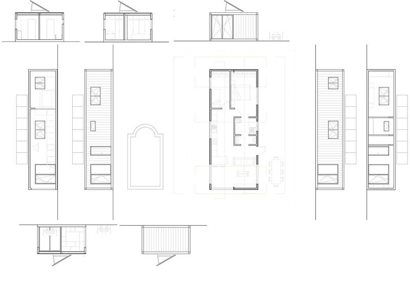
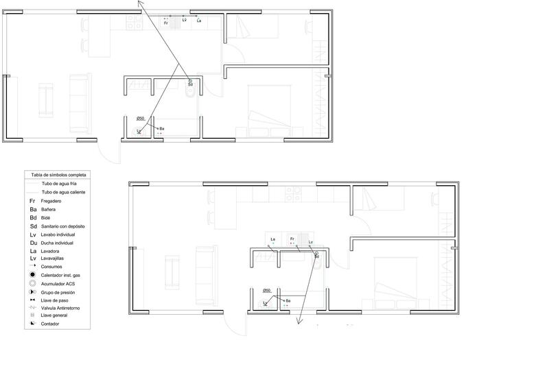
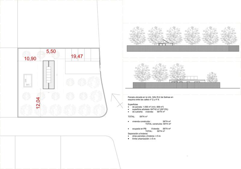
We are proud to offer for sale, this new build container home, on an urban plot, in a lovely rural-style setting. A pool is also an option at cost (around €15,000 for a 6x3 pool). The containers are not yet on site, but permissions are in place. The plot could also be bought, without permissions, for €60,000 - with water, electricity and mains sewerage, if you wanted to build your own property instead.
Property Features
- 3 bedrooms
- 2 bathrooms
- 65m² Build size
- 1,095m² Plot size
- Swimming Pool
- Pool: Optional
- garden
- Mains Water
- Mains Sewerage
- Mains Electric
Costing Breakdown
Standard form of payment
Reservation deposit
3,000€
Remainder of deposit to 10%
12,000€
Final Payment of 90% on completion
135,000€
Property Purchase Expenses
Property price
150,000€
Transfer tax 8%
12,000€
Notary fees (approx)
600€
Land registry fees (approx)
600€
Legal fees (approx)
1,500€
* Transfer tax is based on the sale value or the cadastral value whichever is the highest.
** The information above is displayed as a guide only.
Mortgage Calculator
Similar Properties
Spanish Property News & Updates by Spain Property Portal.com
In Spain, two primary taxes are associated with property purchases: IVA (Value Added Tax) and ITP (Property Transfer Tax). IVA, typically applicable to new constructions, stands at 10% of the property's value. On the other hand, ITP, levied on resale properties, varies between regions but generally ranges from 6% to 10%.
Spain Property Portal is an online platform that has revolutionized the way people buy and sell real estate in Spain.
In Spain, mortgages, known as "hipotecas," are common, and the market has seen significant growth and evolution.



















