Make an Enquiry About This Property
Ref: CSPN-83307
Property marketed by Complete Spanish Property
Your Name:
Email Address:
Telephone Nº:
By checking this box, we will pass your query on to up to five other Estate Agents who have similar properties to this.
How can we help you?:
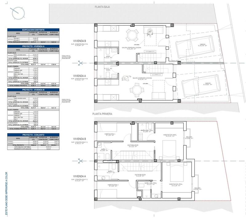
New Build Townhouses 50 m from the Beach in La Azohia Cartagena Exclusive Coastal Homes Steps from the Mediterranean Sea Discover this very limited new build promotion of only two modern townhouses located just 50 meters from the beach in La Azohia, Cartagena. This privileged seaside enclave on the Costa Calida is known for its crystal clear waters, relaxed atmosphere and unspoiled natural surroundings. Ideal for those seeking tranquillity by the sea, La Azohia offers an authentic Mediterranean lifestyle with small coves, seaside restaurants and beautiful coastal walks. Modern Layout with Sea Views and Private Solarium Each townhouse is distributed over two floors plus a private rooftop solarium with open views of the Mediterranean Sea. The ground floor features a bright open plan living dining area with kitchen space, designed to maximize natural light and comfort. This level also includes a full bathroom and direct access to a private garden. The garden area offers flexibility, as it can be used for off road parking or upgraded with a private swimming pool at an additional cost. On the first floor, the sleeping area includes a spacious master bedroom with en suite bathroom, a second single bedroom and an additional full bathroom. The top level is dedicated to a private solarium, an exceptional space to enjoy the sea views, sunbathe year round or create a chill out area for outdoor living. High Quality Finishes and Comfort Features These new build townhouses are constructed with high quality materials and finishes to ensure durability, comfort and modern style. Features include fitted wardrobes in bedrooms, pre installation for ducted air conditioning and pre installation for the kitchen, allowing buyers to personalize the space to their taste. The contemporary design combined with functional layouts makes these homes ideal as a permanent residence, holiday home or investment property. Prime Location in La Azohia Cartagena La Azohia is a charming coastal village within the municipality of Cartagena, appreciated for its peaceful environment, protected marine area and proximity to nature. The area offers basic services, local restaurants and easy access to larger towns and amenities while maintaining its relaxed seaside charm. Key Distances to Points of Interest La Azohia Beach: 50 m Cartagena city center: 25 km Puerto de Mazarron marina: 20 km La Manga Club Golf Resort: 35 km Murcia Corvera Airport: 45 km Alicante Airport: 120 km Mediterranean Lifestyle by the Sea Living in La Azohia means enjoying sunshine, sea views and a slower pace of life all year round. The combination of beachfront proximity, modern design and limited availability makes this promotion a unique opportunity on the Costa Calida. Contact Us Today Do not miss the chance to own a new build townhouse just steps from the sea in La Azohia. Contact us now for more information or to arrange a viewing and secure one of these exclusive coastal homes.
Property Features
- 2 bedrooms
- 3 bathrooms
- 79m² Build size
- 19m² Plot size
EPC Rating
| Energy Rating Scale |
|---|
| A |
| B |
| C |
| D |
| E |
| F |
| G |
Costing Breakdown
Standard form of payment
Reservation deposit
3,000€
Remainder of deposit to 10%
22,500€
Final Payment of 90% on completion
229,500€
Property Purchase Expenses
Property price
255,000€
Transfer tax 8%
20,400€
Notary fees (approx)
600€
Land registry fees (approx)
600€
Legal fees (approx)
1,500€
* Transfer tax is based on the sale value or the cadastral value whichever is the highest.
** The information above is displayed as a guide only.
Mortgage Calculator
Similar Properties
Spanish Property News & Updates by Spain Property Portal.com
In Spain, two primary taxes are associated with property purchases: IVA (Value Added Tax) and ITP (Property Transfer Tax). IVA, typically applicable to new constructions, stands at 10% of the property's value. On the other hand, ITP, levied on resale properties, varies between regions but generally ranges from 6% to 10%.
Spain Property Portal is an online platform that has revolutionized the way people buy and sell real estate in Spain.
In Spain, mortgages, known as "hipotecas," are common, and the market has seen significant growth and evolution.











