Make an Enquiry About This Property
Ref: ESL5321Z
Property marketed by España Dream Properties
Your Name:
Email Address:
Telephone Nº:
By checking this box, we will pass your query on to up to five other Estate Agents who have similar properties to this.
How can we help you?:
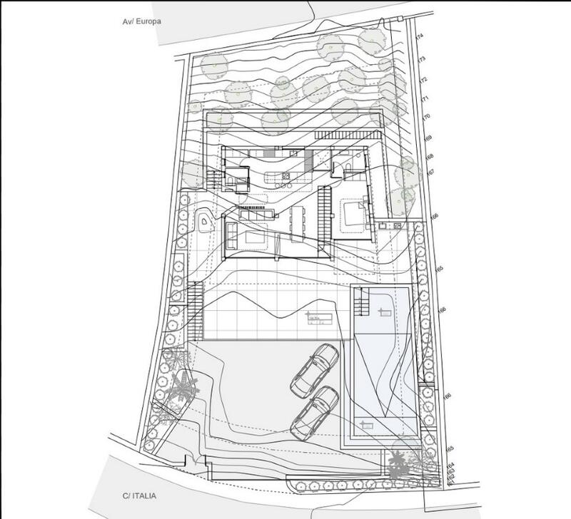
Imagine waking up every day with stunning unobstructed views of the Mediterranean Sea, the charming town of Altea and Benidorm's vibrant skyline. This is your chance to make that dream come true with a plot for sale in the prestigious Altea Hills, a gated complex with private security and 24/7 surveillance. Located in one of the Costa Blanca's most popular areas, this plot offers an unrivalled opportunity to build the home you've always imagined. This 823-square-metre plot is surrounded by an aura of exclusivity and tranquillity. The area is known for its serene surroundings, lush landscapes and luxury homes, making it the perfect place for those looking for a sophisticated and tranquil lifestyle. The views from this plot are truly spectacular, with a panorama stretching from the blue waters of the Mediterranean to the twinkling lights of Benidorm in the distance. One of the main advantages of this plot is its excellent connectivity. Although it offers a private and secluded setting, it is also conveniently close to the AP-7 motorway, giving you easy access to surrounding cities such as Benidorm and Alicante. Whether you want to explore the nearby beaches, play golf at one of the world-class courses, try out jet-skiing at nearby Marina Greenwich or enjoy gastronomy and boutiques, everything you need is within easy reach. The plan designed for this plot includes the construction of a beautiful high-tech villa with 3 habitable floors, 4 bedrooms, 5 bathrooms, a 60-square-metre infinity pool and a large garage with capacity for 3 cars. The villa will have a built-up area of 330.53 m2 and has an expected market price of 1,760,000 euros. Moreover, the project already has full planning permission, which means you can start building immediately. Moreover, the project can be adapted to the buyer's wishes to make this villa your dream villa.
Property Features
- 4 bedrooms
- 4 bathrooms
- 285m² Build size
- 823m² Plot size
- Swimming Pool
- Automatic gate
- Built-in cabinets
- Balcony
- Double glazing
- Terrace
- Electric Shutters
- Floor heating
- Garage
- Heat pump
- garden
- Storage
- Pool
- Lift
- Substructure
- Air conditioning
Costing Breakdown
Standard form of payment
Reservation deposit
3,000€
Remainder of deposit to 10%
173,000€
Final Payment of 90% on completion
1,584,000€
Property Purchase Expenses
Property price
1,760,000€
Transfer tax 8%
140,800€
Notary fees (approx)
600€
Land registry fees (approx)
600€
Legal fees (approx)
1,500€
* Transfer tax is based on the sale value or the cadastral value whichever is the highest.
** The information above is displayed as a guide only.
Mortgage Calculator
Similar Properties
Spanish Property News & Updates by Spain Property Portal.com
In Spain, two primary taxes are associated with property purchases: IVA (Value Added Tax) and ITP (Property Transfer Tax). IVA, typically applicable to new constructions, stands at 10% of the property's value. On the other hand, ITP, levied on resale properties, varies between regions but generally ranges from 6% to 10%.
Spain Property Portal is an online platform that has revolutionized the way people buy and sell real estate in Spain.
In Spain, mortgages, known as "hipotecas," are common, and the market has seen significant growth and evolution.


















