Make an Enquiry About This Property
Ref: ESL1132T
Property marketed by España Dream Properties
Your Name:
Email Address:
Telephone Nº:
By checking this box, we will pass your query on to up to five other Estate Agents who have similar properties to this.
How can we help you?:
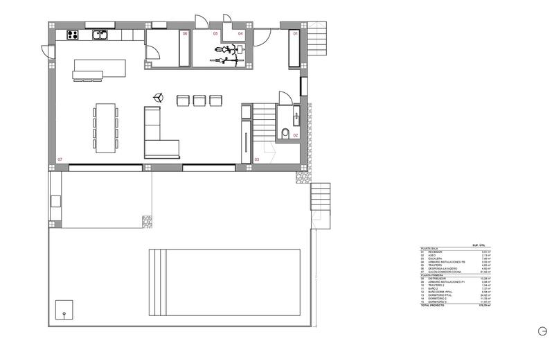
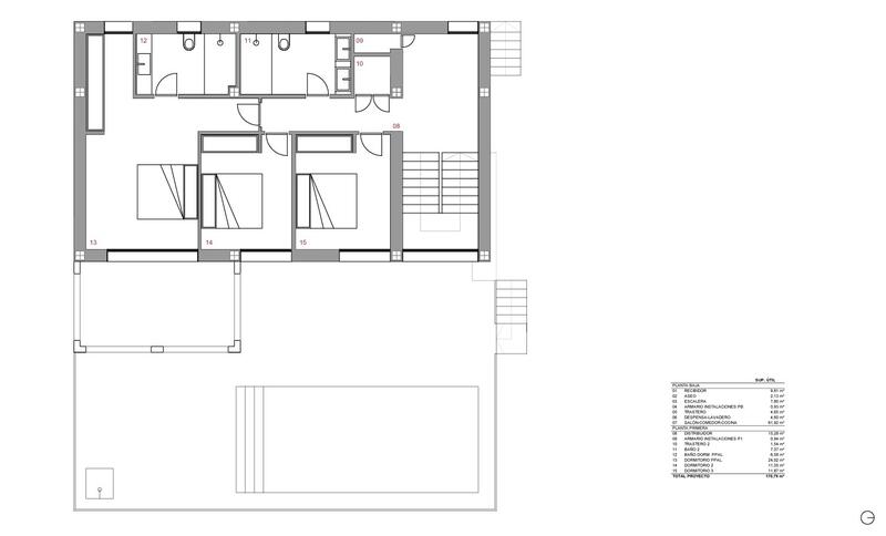
Located in the idyllic village of Alcalalí, this new build project has been granted planning permission. With a planned built area of 211 m2 on a generous plot of 1,021 m2, this project offers the opportunity to build a beautiful Ibiza-style villa in the peaceful, natural surroundings of the Jalón Valley.The project envisages a villa that will be built over two floors. On the ground floor, a spacious living-dining room is planned with an open kitchen equipped with a cooking island, complemented by a pantry, storage space and a guest toilet. The upper floor is designed with three comfortable bedrooms and two stylishly designed bathrooms that combine functionality and aesthetics, one of which is en-suite. The layout of the project has been carefully designed to ensure optimal use of space and to create a natural flow between the different living areas.In addition, the private garden has been designed to allow you to enjoy the outdoors and nature in complete privacy, as well as two terraces where you can experience the Mediterranean climate all year round.There is also an 8 x 4 metre swimming pool, ideal for cooling off during the hot summer months. The outdoor areas will consist of both an open terrace and a covered terrace, so there is always a choice between sun and shade. The plot will be fully fenced, ensuring security and peace of mind, while good connections to nearby main roads guarantee easy access to local amenities and attractions.The villa will be equipped with air conditioning for heating and cooling via air ducts, creating a pleasant indoor climate in every room, regardless of the season. Double glazing, automatic shutters in the bedrooms and the provision of parking and storage space contribute to additional living comfort.This project represents not only the realisation of a home, but a lifestyle in which tranquillity, comfort and modern luxury come together in charming Alcalalí. With its contemporary architecture and thoughtful amenities, this project is an invitation to enjoy an exceptional living environment every day, where time seems to stand still.
Property Features
- 3 bedrooms
- 2 bathrooms
- 419m² Build size
- 1,021m² Plot size
- Swimming Pool
- Automatic gate
- Air conditioning
- Automatic irrigation
- Built-in cabinets
- Electric Shutters
- Double glazing
- garden
- Pool
- Terrace
- Storage
- Video doorbell
Costing Breakdown
Standard form of payment
Reservation deposit
3,000€
Remainder of deposit to 10%
73,500€
Final Payment of 90% on completion
688,500€
Property Purchase Expenses
Property price
765,000€
Transfer tax 8%
61,200€
Notary fees (approx)
600€
Land registry fees (approx)
600€
Legal fees (approx)
1,500€
* Transfer tax is based on the sale value or the cadastral value whichever is the highest.
** The information above is displayed as a guide only.
Mortgage Calculator
Similar Properties
Spanish Property News & Updates by Spain Property Portal.com
In Spain, two primary taxes are associated with property purchases: IVA (Value Added Tax) and ITP (Property Transfer Tax). IVA, typically applicable to new constructions, stands at 10% of the property's value. On the other hand, ITP, levied on resale properties, varies between regions but generally ranges from 6% to 10%.
Spain Property Portal is an online platform that has revolutionized the way people buy and sell real estate in Spain.
In Spain, mortgages, known as "hipotecas," are common, and the market has seen significant growth and evolution.

















