Make an Enquiry About This Property
Ref: N9441
Property marketed by The Property Group
Your Name:
Email Address:
Telephone Nº:
By checking this box, we will pass your query on to up to five other Estate Agents who have similar properties to this.
How can we help you?:
New Build Townhouses with Sea Views near Miraflores Golf Calahonda
Boutique Residential in a Prime Calahonda Location
This exclusive new construction project consists of a boutique collection of only 13 two and three bedroom townhouses and corner townhouses set on an elevated plot near Miraflores Golf in Calahonda The area is known for its peaceful residential atmosphere while offering excellent access to beaches, golf courses and everyday services Calahonda sits between Marbella and Fuengirola making it one of the most convenient and established locations on the Costa del Sol
Sea View Homes with Privacy and Orientation
Each home enjoys open sea views from all living levels thanks to its elevated position and careful orientation The rooftop solariums offer impressive panoramic views over the Mediterranean coastline creating a private outdoor retreat for every homeowner Orientation and architectural screening ensure a perfect balance between privacy and uninterrupted views
Spacious Terraces and Open Plan Living
The townhouses are designed to extend living spaces outdoors with generous terraces ideal for dining relaxing or enjoying the sea breeze Open plan interiors connect the kitchen dining area and living room with direct access to terraces, creating bright and airy spaces with continuous sightlines towards the sea Some homes also include private gardens on the ground floor
Flexible Layouts for Modern Living
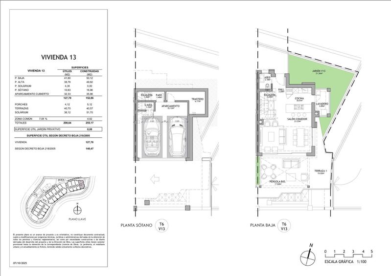
Homes are distributed over two floors plus a private rooftop solarium The ground floor features an open plan living and dining area with integrated kitchen, laundry room and guest toilet The upper floor offers two or three double bedrooms and two bathrooms, including a master bedroom with en suite bathroom Several rooftop solariums include a studio providing additional versatile space for a home office or leisure area
Premium Specifications and Comfort Features
All properties are built with high quality materials and modern systems Features include fully installed air conditioning heating by aerothermal system and fully equipped kitchens with Siemens appliances Floor to ceiling windows maximize natural light and enhance the connection between indoor and outdoor spaces Most units include two underground parking spaces and selected homes also offer a private storage room
Resort Style Communal Areas
At the heart of the community is a residents swimming pool with spacious sun terraces designed to create a calm resort style environment This shared space is ideal for relaxing after a round of golf or enjoying the Mediterranean climate with family and friends
Excellent Connectivity and Nearby Amenities
Miraflores Golf is approximately 1 km away making this development ideal for golf enthusiasts Calahonda beaches are around 14 km from the residences and offer a wide range of beach bars and water activities Marbella and La Cala de Mijas are both within easy driving distance while Malaga Airport is well connected via the main coastal road
Key Distances to Points of Interest
Miraflores Golf: 1 km
Calahonda beach: 14 km
La Cala de Mijas: 6 km
Marbella: 15 km
Puerto Banus marina: 18 km
Malaga Airport: 35 km
Secure Your Sea View Home on the Costa del Sol
Contact us today for more information or to arrange a private viewing of these exclusive new build townhouses near Miraflores Golf in Calahonda
Boutique Residential in a Prime Calahonda Location
This exclusive new construction project consists of a boutique collection of only 13 two and three bedroom townhouses and corner townhouses set on an elevated plot near Miraflores Golf in Calahonda The area is known for its peaceful residential atmosphere while offering excellent access to beaches, golf courses and everyday services Calahonda sits between Marbella and Fuengirola making it one of the most convenient and established locations on the Costa del Sol
Sea View Homes with Privacy and Orientation
Each home enjoys open sea views from all living levels thanks to its elevated position and careful orientation The rooftop solariums offer impressive panoramic views over the Mediterranean coastline creating a private outdoor retreat for every homeowner Orientation and architectural screening ensure a perfect balance between privacy and uninterrupted views
Spacious Terraces and Open Plan Living
The townhouses are designed to extend living spaces outdoors with generous terraces ideal for dining relaxing or enjoying the sea breeze Open plan interiors connect the kitchen dining area and living room with direct access to terraces, creating bright and airy spaces with continuous sightlines towards the sea Some homes also include private gardens on the ground floor
Flexible Layouts for Modern Living
Homes are distributed over two floors plus a private rooftop solarium The ground floor features an open plan living and dining area with integrated kitchen, laundry room and guest toilet The upper floor offers two or three double bedrooms and two bathrooms, including a master bedroom with en suite bathroom Several rooftop solariums include a studio providing additional versatile space for a home office or leisure area
Premium Specifications and Comfort Features
All properties are built with high quality materials and modern systems Features include fully installed air conditioning heating by aerothermal system and fully equipped kitchens with Siemens appliances Floor to ceiling windows maximize natural light and enhance the connection between indoor and outdoor spaces Most units include two underground parking spaces and selected homes also offer a private storage room
Resort Style Communal Areas
At the heart of the community is a residents swimming pool with spacious sun terraces designed to create a calm resort style environment This shared space is ideal for relaxing after a round of golf or enjoying the Mediterranean climate with family and friends
Excellent Connectivity and Nearby Amenities
Miraflores Golf is approximately 1 km away making this development ideal for golf enthusiasts Calahonda beaches are around 14 km from the residences and offer a wide range of beach bars and water activities Marbella and La Cala de Mijas are both within easy driving distance while Malaga Airport is well connected via the main coastal road
Key Distances to Points of Interest
Miraflores Golf: 1 km
Calahonda beach: 14 km
La Cala de Mijas: 6 km
Marbella: 15 km
Puerto Banus marina: 18 km
Malaga Airport: 35 km
Secure Your Sea View Home on the Costa del Sol
Contact us today for more information or to arrange a private viewing of these exclusive new build townhouses near Miraflores Golf in Calahonda
Property Features
- 2 bedrooms
- 2 bathrooms
- 140m² Build size
- 21m² Plot size
- Communal Pool
- Garden
- Views-Sea
Costing Breakdown
Standard form of payment
Reservation deposit
3,000€
Remainder of deposit to 10%
89,500€
Final Payment of 90% on completion
832,500€
Property Purchase Expenses
Property price
925,000€
Transfer tax 10%
92,500€
Notary fees (approx)
600€
Land registry fees (approx)
600€
Legal fees (approx)
1,500€
* Transfer tax is based on the sale value or the cadastral value whichever is the highest.
** The information above is displayed as a guide only.
Mortgage Calculator
Spanish Property News & Updates by Spain Property Portal.com
In Spain, two primary taxes are associated with property purchases: IVA (Value Added Tax) and ITP (Property Transfer Tax). IVA, typically applicable to new constructions, stands at 10% of the property's value. On the other hand, ITP, levied on resale properties, varies between regions but generally ranges from 6% to 10%.
Spain Property Portal is an online platform that has revolutionized the way people buy and sell real estate in Spain.
In Spain, mortgages, known as "hipotecas," are common, and the market has seen significant growth and evolution.























