Make an Enquiry About This Property
Ref: EFML4598J
Property marketed by España Dream Properties
Your Name:
Email Address:
Telephone Nº:
By checking this box, we will pass your query on to up to five other Estate Agents who have similar properties to this.
How can we help you?:
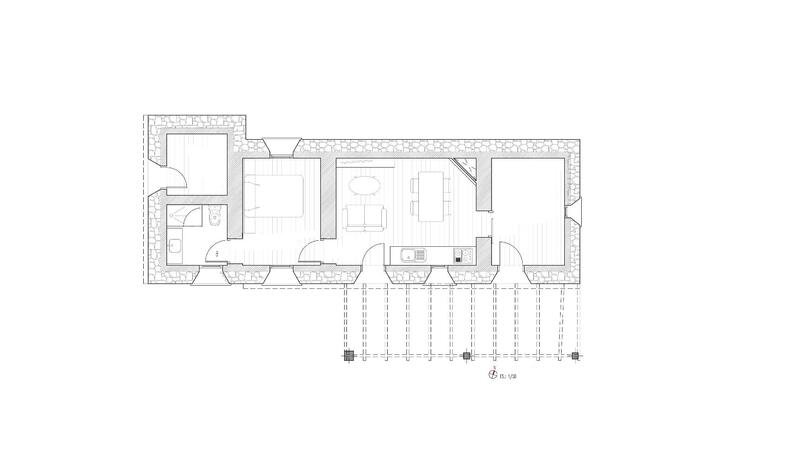
A small finca for sale in Búger Mallorca. This small rural finca is located on the outer edge of the village of Búger in Mallorca on a plot of 3986m2, the property which is registered from 1956 has a footprint of 77m2 which is registered as a living space. There is a proposal for a project to reform the house into either a one or a two bedroom, with one bathroom property with a kitchen diner and a lounge. With pergola across the front of the house to offer shade and somewhere to dine in the evenings and a small storage room to the rear of the house. Because the property is on a small plot of just under 4000m2 only the existing building can be very reformed and no further extensions or amplifications can be made to the building. Ideally suited to those looking for a small weekend retreat in the countryside, close to a quiet village close to a quiet and traditional village. Just 30 minutes’ drive from the airport in Palma de Mallorca, and less than 20 minutes from the ports and beaches of the bay of Alcudia.Please contact us for more information, we have plans of the proposal for the property.Búger Mallorca part of the Raiguer county the village from is hillside looks towards the mountains on its northern side and has views across the countryside and towards Randa on its southwestern side.Búger the smallest municipality in Mallorca, is famous for its windmills and groves of Almonds and Carobs. It is a village that has had no industry other than agriculture but has a tradition of making “picarols” (cowbells) and wooden cutlery.
Property Features
- 2 bedrooms
- 1 bathroom
- 77m² Build size
- 3,986m² Plot size
- Renovation Needed
- Quiet Location
- Property Views
- Property Location
- Property Condition
- Porcelain Tile Flooring
- Off Road Parking
- mature trees
- Kitchen diner
- Kitchen
- Interior of Mallorca
- Garden Views/ Pool Views
- garden
- Bathroom
- countryside
- countryside views
- driveway
- Flooring
- Fruit trees
- Garage and Parking
Costing Breakdown
Standard form of payment
Reservation deposit
3,000€
Remainder of deposit to 10%
28,500€
Final Payment of 90% on completion
283,500€
Property Purchase Expenses
Property price
315,000€
Transfer tax 10%
31,500€
Notary fees (approx)
600€
Land registry fees (approx)
600€
Legal fees (approx)
1,500€
* Transfer tax is based on the sale value or the cadastral value whichever is the highest.
** The information above is displayed as a guide only.
Mortgage Calculator
Spanish Property News & Updates by Spain Property Portal.com
In Spain, two primary taxes are associated with property purchases: IVA (Value Added Tax) and ITP (Property Transfer Tax). IVA, typically applicable to new constructions, stands at 10% of the property's value. On the other hand, ITP, levied on resale properties, varies between regions but generally ranges from 6% to 10%.
Spain Property Portal is an online platform that has revolutionized the way people buy and sell real estate in Spain.
In Spain, mortgages, known as "hipotecas," are common, and the market has seen significant growth and evolution.











