Make an Enquiry About This Property
Ref: CSPN-18257
Property marketed by Complete Spanish Property
Your Name:
Email Address:
Telephone Nº:
By checking this box, we will pass your query on to up to five other Estate Agents who have similar properties to this.
How can we help you?:
Modern New Build Villa Near the Sea in Javea
Exclusive Mediterranean Living in JaveaDiscover this stunning contemporary villa located in one of the most sought after and peaceful areas of Javea, just 800 meters from the sea. Nestled between pine trees and close to the famous Cala de la Barraca and Cala del Portixol, this residence offers a privileged lifestyle surrounded by nature and coastal beauty. Javea, situated on the Costa Blanca between Alicante and Valencia, is known for its crystal clear waters, charming old town and year round mild climate, making it one of the most desired destinations in the Mediterranean.
Elegant Design and Bright Open SpacesDesigned for comfort and style, this villa features a modern architecture with soft lines, large windows and fluid indoor outdoor integration. Natural light bathes every corner, creating a warm and inviting ambiance ideal for both living and entertaining.
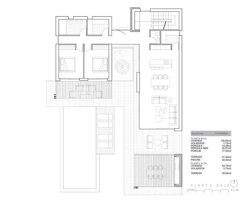
The villa is distributed across two floors and includesOpen plan living and dining area with seamless access to terraces and poolFully furnished open concept kitchen3 bedrooms and 2 bathrooms plus 1 guest toiletLaundry and pantry roomPrivate garden, terraces and pool area with summer kitchen
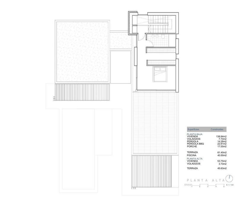
Private Master Suite and Outdoor LifestyleThe ground floor includes two bedrooms, a bathroom and spacious social areas. On the upper floor, the master bedroom offers a private sanctuary with en suite bathroom, a generous walk in wardrobe and a 45 m2 terrace, perfect for enjoying sunrise views and Mediterranean breezes. The outdoor space has been designed for relaxation, featuring a private pool, sun terraces and lush surroundings that ensure tranquility and privacy.
Prime Location in Costa Blanca NorthJavea offers an exceptional lifestyle with beautiful beaches, hiking routes, marinas, golf courses and gourmet restaurants. The town is 92 km from Alicante and 105 km from Valencia.
Key distancesBeach and Cala del Portixol: 0.8 kmJavea Port and Marina: 8 kmJavea Golf Club: 10 kmAlicante Airport: 100 kmValencia Airport: 125 km
Your Mediterranean Home AwaitsWhether you are seeking a permanent residence, a luxury holiday retreat or a premium investment, this villa delivers privacy, comfort and an exceptional coastal setting. Contact us today for more information or to arrange a viewing of this exclusive modern home in Javea.
Exclusive Mediterranean Living in JaveaDiscover this stunning contemporary villa located in one of the most sought after and peaceful areas of Javea, just 800 meters from the sea. Nestled between pine trees and close to the famous Cala de la Barraca and Cala del Portixol, this residence offers a privileged lifestyle surrounded by nature and coastal beauty. Javea, situated on the Costa Blanca between Alicante and Valencia, is known for its crystal clear waters, charming old town and year round mild climate, making it one of the most desired destinations in the Mediterranean.
Elegant Design and Bright Open SpacesDesigned for comfort and style, this villa features a modern architecture with soft lines, large windows and fluid indoor outdoor integration. Natural light bathes every corner, creating a warm and inviting ambiance ideal for both living and entertaining.
The villa is distributed across two floors and includesOpen plan living and dining area with seamless access to terraces and poolFully furnished open concept kitchen3 bedrooms and 2 bathrooms plus 1 guest toiletLaundry and pantry roomPrivate garden, terraces and pool area with summer kitchen
Private Master Suite and Outdoor LifestyleThe ground floor includes two bedrooms, a bathroom and spacious social areas. On the upper floor, the master bedroom offers a private sanctuary with en suite bathroom, a generous walk in wardrobe and a 45 m2 terrace, perfect for enjoying sunrise views and Mediterranean breezes. The outdoor space has been designed for relaxation, featuring a private pool, sun terraces and lush surroundings that ensure tranquility and privacy.
Prime Location in Costa Blanca NorthJavea offers an exceptional lifestyle with beautiful beaches, hiking routes, marinas, golf courses and gourmet restaurants. The town is 92 km from Alicante and 105 km from Valencia.
Key distancesBeach and Cala del Portixol: 0.8 kmJavea Port and Marina: 8 kmJavea Golf Club: 10 kmAlicante Airport: 100 kmValencia Airport: 125 km
Your Mediterranean Home AwaitsWhether you are seeking a permanent residence, a luxury holiday retreat or a premium investment, this villa delivers privacy, comfort and an exceptional coastal setting. Contact us today for more information or to arrange a viewing of this exclusive modern home in Javea.
Property Features
- 3 bedrooms
- 2 bathrooms
- 210m² Build size
- 1,000m² Plot size
- Swimming Pool
EPC Rating
| Energy Rating Scale |
|---|
| A |
| B |
| C |
| D |
| E |
| F |
| G |
Costing Breakdown
Standard form of payment
Reservation deposit
3,000€
Remainder of deposit to 10%
142,000€
Final Payment of 90% on completion
1,305,000€
Property Purchase Expenses
Property price
1,450,000€
Transfer tax 8%
116,000€
Notary fees (approx)
600€
Land registry fees (approx)
600€
Legal fees (approx)
1,500€
* Transfer tax is based on the sale value or the cadastral value whichever is the highest.
** The information above is displayed as a guide only.
Mortgage Calculator
Similar Properties
Spanish Property News & Updates by Spain Property Portal.com
In Spain, two primary taxes are associated with property purchases: IVA (Value Added Tax) and ITP (Property Transfer Tax). IVA, typically applicable to new constructions, stands at 10% of the property's value. On the other hand, ITP, levied on resale properties, varies between regions but generally ranges from 6% to 10%.
Spain Property Portal is an online platform that has revolutionized the way people buy and sell real estate in Spain.
In Spain, mortgages, known as "hipotecas," are common, and the market has seen significant growth and evolution.







