Make an Enquiry About This Property
Ref: CSPN-26481
Property marketed by Complete Spanish Property
Your Name:
Email Address:
Telephone Nº:
By checking this box, we will pass your query on to up to five other Estate Agents who have similar properties to this.
How can we help you?:
BEAUTIFUL BIG VILLA WITH VIEWS TO THE GOLF COURSE "LA MARQUESA"!
This beautiful villa, located 50 meters from the La Marquesa golf course, apart from having clear and beautiful views and offering the tranquility of being in a quiet environment, is a few meters from the commercial center with shops, supermarket, bars and international restaurants . Just 5 minutes from the town of Rojales with all services and 15 minutes from the spectacular blue flag beaches of Guardamar del Segura. Alicante-Elche airport is 35 minutes away.
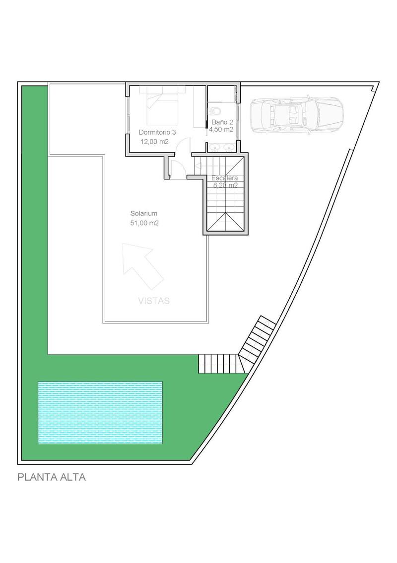
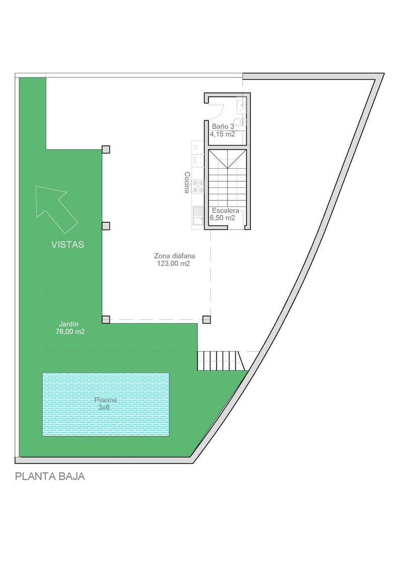
The villa has 335 m2 of plot area, 433 m2 of built area, distributed in 3 floors, one of them being a semi-basement diaphanous of 126 m2. The villa has 3 bedrooms and 2 bathrooms. The 3x6 m pool and the large terraces in the garden and pool area will allow you to enjoy the sun and the Costa Blanca climate throughout the year. In addition, the villa has a solarium and a large parking area.
Live in a large modern villa, enjoying golf, beach, climate and Mediterranean lifestyle!
This beautiful villa, located 50 meters from the La Marquesa golf course, apart from having clear and beautiful views and offering the tranquility of being in a quiet environment, is a few meters from the commercial center with shops, supermarket, bars and international restaurants . Just 5 minutes from the town of Rojales with all services and 15 minutes from the spectacular blue flag beaches of Guardamar del Segura. Alicante-Elche airport is 35 minutes away.
The villa has 335 m2 of plot area, 433 m2 of built area, distributed in 3 floors, one of them being a semi-basement diaphanous of 126 m2. The villa has 3 bedrooms and 2 bathrooms. The 3x6 m pool and the large terraces in the garden and pool area will allow you to enjoy the sun and the Costa Blanca climate throughout the year. In addition, the villa has a solarium and a large parking area.
Live in a large modern villa, enjoying golf, beach, climate and Mediterranean lifestyle!
Property Features
- 3 bedrooms
- 2 bathrooms
- 433m² Build size
- 274m² Plot size
- Swimming Pool
EPC Rating
| Energy Rating Scale |
|---|
| A |
| B |
| C |
| D |
| E |
| F |
| G |
Costing Breakdown
Standard form of payment
Reservation deposit
3,000€
Remainder of deposit to 10%
56,800€
Final Payment of 90% on completion
538,200€
Property Purchase Expenses
Property price
598,000€
Transfer tax 8%
47,840€
Notary fees (approx)
600€
Land registry fees (approx)
600€
Legal fees (approx)
1,500€
* Transfer tax is based on the sale value or the cadastral value whichever is the highest.
** The information above is displayed as a guide only.
Mortgage Calculator
Similar Properties
Spanish Property News & Updates by Spain Property Portal.com
In Spain, two primary taxes are associated with property purchases: IVA (Value Added Tax) and ITP (Property Transfer Tax). IVA, typically applicable to new constructions, stands at 10% of the property's value. On the other hand, ITP, levied on resale properties, varies between regions but generally ranges from 6% to 10%.
Spain Property Portal is an online platform that has revolutionized the way people buy and sell real estate in Spain.
In Spain, mortgages, known as "hipotecas," are common, and the market has seen significant growth and evolution.





















