Make an Enquiry About This Property
Ref: CSPN-70607
Property marketed by Complete Spanish Property
Your Name:
Email Address:
Telephone Nº:
By checking this box, we will pass your query on to up to five other Estate Agents who have similar properties to this.
How can we help you?:
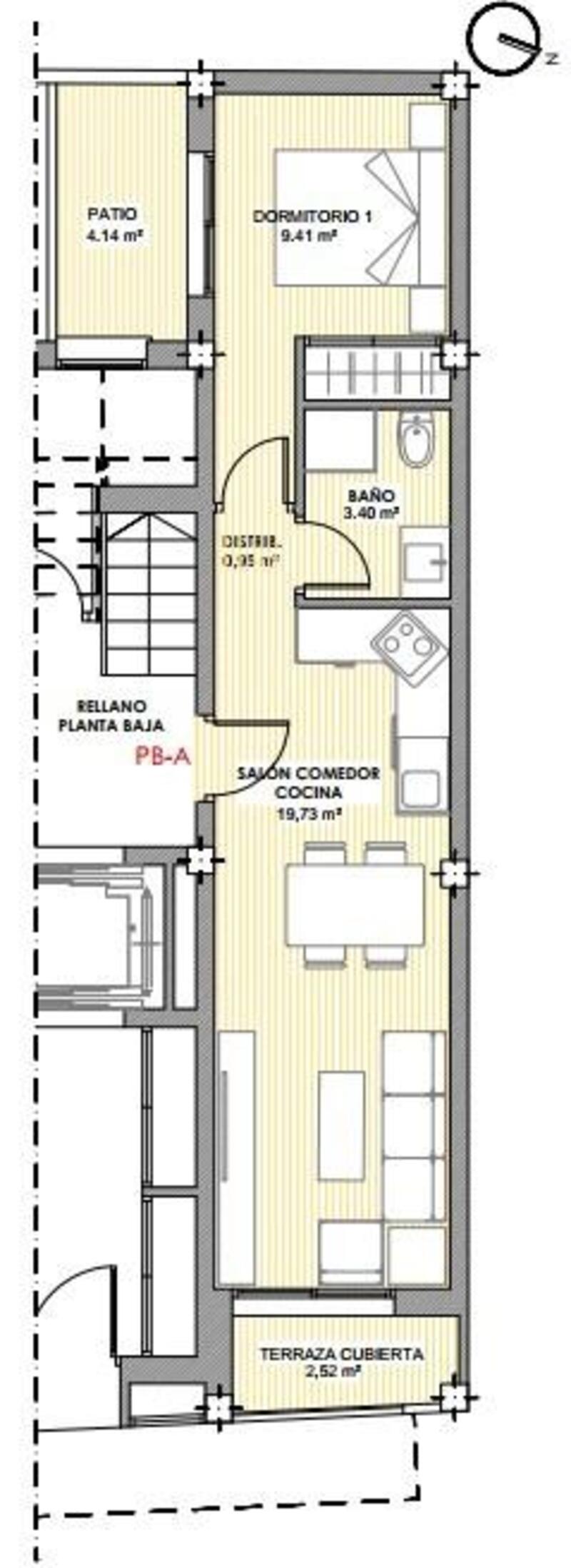
Modern New Build Apartments in Central Torrevieja – Just 600 m from the Sea Discover this exclusive boutique development of only 8 modern new build apartments, perfectly located in the heart of Torrevieja. Just 600 m from Playa de Los Locos and 650 m from the famous Playa del Cura with its lively promenade, these homes offer the ideal blend of beachside living and urban convenience. Contemporary Design and Smart Layouts Choose between stylish 1-bedroom apartments with 1 bathroom or spacious 2-bedroom units with 2 bathrooms. Each property is designed with a modern, functional layout that maximizes natural light and comfort. High-quality finishes ensure durability and elegance, making these homes perfect for both permanent living and holiday stays. Exclusive Building Amenities Residents can relax in the communal rooftop solarium or take a dip in the shared rooftop pool, the perfect place to unwind after a day at the beach. Optional rooftop storage rooms are available at an additional cost, providing extra convenience and security. Vibrant Lifestyle in Torrevieja Torrevieja is a lively coastal city renowned for its year-round cultural and leisure activities. With over 300 days of sunshine annually, the area is ideal for outdoor living, beach days, water sports, and evening walks along the seafront. All essential services, including supermarkets, restaurants, cafés, and entertainment venues, are within walking distance. Excellent Location and Connectivity This central location offers quick access to key attractions and amenities: Playa de Los Locos: 600 m Playa del Cura: 650 m Torrevieja Marina: 2 km Zenia Boulevard Shopping Centre: 8 km Golf courses: 7–10 km Alicante Airport: 45 km Your Mediterranean Home Awaits Whether you are seeking a holiday retreat, an investment property, or a permanent residence, these modern new build apartments in Torrevieja provide the perfect opportunity to enjoy the Mediterranean lifestyle in a prime location. Contact us today to arrange a viewing and secure your place in this exclusive coastal development.
Property Features
- 1 bedroom
- 1 bathroom
- 45m² Build size
- Swimming Pool
EPC Rating
| Energy Rating Scale |
|---|
| A |
| B |
| C |
| D |
| E |
| F |
| G |
Costing Breakdown
Standard form of payment
Reservation deposit
3,000€
Remainder of deposit to 10%
12,900€
Final Payment of 90% on completion
143,100€
Property Purchase Expenses
Property price
159,000€
Transfer tax 8%
12,720€
Notary fees (approx)
600€
Land registry fees (approx)
600€
Legal fees (approx)
1,500€
* Transfer tax is based on the sale value or the cadastral value whichever is the highest.
** The information above is displayed as a guide only.
Mortgage Calculator
Similar Properties
Spanish Property News & Updates by Spain Property Portal.com
In Spain, two primary taxes are associated with property purchases: IVA (Value Added Tax) and ITP (Property Transfer Tax). IVA, typically applicable to new constructions, stands at 10% of the property's value. On the other hand, ITP, levied on resale properties, varies between regions but generally ranges from 6% to 10%.
Spain Property Portal is an online platform that has revolutionized the way people buy and sell real estate in Spain.
In Spain, mortgages, known as "hipotecas," are common, and the market has seen significant growth and evolution.

















