Make an Enquiry About This Property
Ref: TPG452
Property marketed by The Property Group
Your Name:
Email Address:
Telephone Nº:
By checking this box, we will pass your query on to up to five other Estate Agents who have similar properties to this.
How can we help you?:

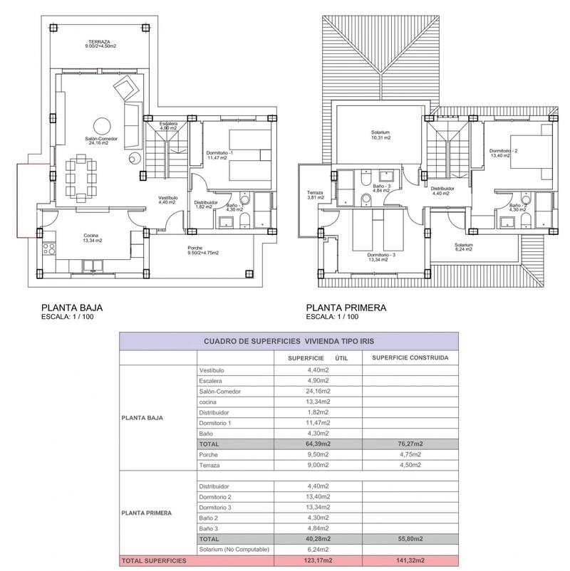
It is a very versatile typology, with 3 bedrooms and 3 bathrooms, which allows it to adapt to the needs of any family. The key to this home is the light and the openness of all its spaces to the outside. The house is divided into two floors, which perfectly separate the life of the day area and the night area. Porches, balconies and terraces and numerous windows flood it with light and fresh air, being completely exterior in all its rooms. As well as light, space is also important, very well used, minimizing passage areas and thinking about storage, with built-in wardrobes in all bedrooms.The day area features a spacious living room on the ground floor that is fully connected to the outside through its large windows with direct access to the terrace. The kitchen flows into the dining area, through a serving hatch window, being perfectly integrated into daily life, being bright and with a tremendously practical space to furnish to your liking. To complete this area, there is a room that could well be used as a double bedroom and is perfect for locating an office. For greater comfort, next to it is a full bathroom with a large window to the outside.As soon as we enter the upper floor we find a large window with access to a charming balcony. This floor is intended as a rest area, it has two double bedrooms, one of them also has access to another balcony. The third outdoor space on this floor is a solarium terrace, ideal for enjoying the outdoors and the views of the urbanization. Here is the master bedroom, with a full bathroom en-suite. For greater functionality, it has a third full bathroom for use by the whole family.A good neighbourhood in a pleasant environment, with trees, gardens, bike paths, unobstructed views...The tranquillity you need for your family.Completely closed urbanization by perimeter fencing with access control and 24-hour security service.Feel very close to all the places that accompany you in your daily lifeBeaches 15 minGolf 5 minShopping Centre 5 minYacht club 15 minHospital 15 minCities:45 minutes by car from the city of Murcia2 and a half hours by car from the city of Valencia3 hours by car from the city of MalagaAirports:45 minutes by car from Murcia International Airport1 hour and ten minutes by car from Almería Airport1 and a half hours by car from Alicante Airport
Property Features
- 3 bedrooms
- 3 bathrooms
- 141m² Build size
- 531m² Plot size
- Car port
- Close to amenities
- Drinking water available on site
- Fenced plot
- Fitted kitchen
- Private garden area
- Terrace
- Room for private pool
- Gated complex
- Fitted wardrobes
- Quiet location
- Key ready
- Road parking
Costing Breakdown
Standard form of payment
Reservation deposit
3,000€
Remainder of deposit to 10%
24,200€
Final Payment of 90% on completion
244,800€
Property Purchase Expenses
Property price
272,000€
Transfer tax 8%
21,760€
Notary fees (approx)
600€
Land registry fees (approx)
600€
Legal fees (approx)
1,500€
* Transfer tax is based on the sale value or the cadastral value whichever is the highest.
** The information above is displayed as a guide only.
Mortgage Calculator
Similar Properties
Spanish Property News & Updates by Spain Property Portal.com
In Spain, two primary taxes are associated with property purchases: IVA (Value Added Tax) and ITP (Property Transfer Tax). IVA, typically applicable to new constructions, stands at 10% of the property's value. On the other hand, ITP, levied on resale properties, varies between regions but generally ranges from 6% to 10%.
Spain Property Portal is an online platform that has revolutionized the way people buy and sell real estate in Spain.
In Spain, mortgages, known as "hipotecas," are common, and the market has seen significant growth and evolution.