Make an Enquiry About This Property
Ref: RSM-95223
Property marketed by Vivacosta
Your Name:
Email Address:
Telephone Nº:
By checking this box, we will pass your query on to up to five other Estate Agents who have similar properties to this.
How can we help you?:
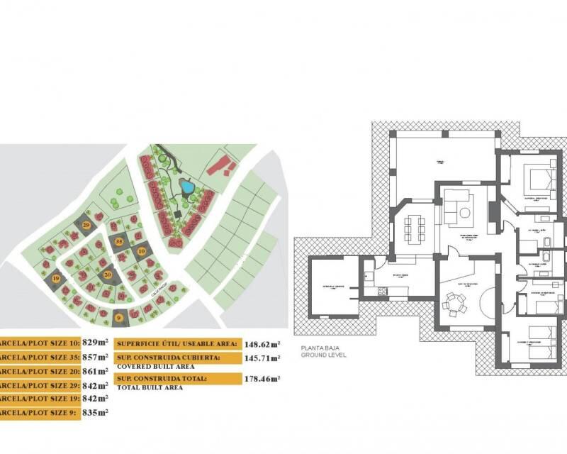
KEY READY VILLA IN FUENTE ALAMO, MURCIA Residential of townhouses, independent and semi-detached villas in Fuente Álamo, Murcia. There are seven different models of houses to choose from, designed to suit everyone’s taste. Rustic designs combined with top quality materials and a focus on comfortable living space there is something for everyone. The residents of this private community of beautiful, spacious homes will also be able to enjoy their own communal gardens and swimming pools. This unusual design villa has 3 bedrooms and 2 bathroom, independent kitchen, living room with patio doors leading onto the covered porch. An options for a private pool at an extra cost. Fuente Álamo de Murcia is a town and municipality in the Region of Murcia, southern Spain. It is situated 22 km northwest of Cartagena and 35 km south west of Murcia. The town lies in the basin of the Mar Menor surrounded by the mountains of Algarrobo, Los Gómez, Los Victorias and the Carrascoy. The water from these mountains flows down into the Rambla de Fuente Álamo and then onto the Mar Menor. Fuente Álamo located 30 minutes from Murcia - Corvera airport.
Property Features
- 3 bedrooms
- 2 bathrooms
- 178m² Build size
- 861m² Plot size
Costing Breakdown
Standard form of payment
Reservation deposit
3,000€
Remainder of deposit to 10%
28,500€
Final Payment of 90% on completion
283,500€
Property Purchase Expenses
Property price
315,000€
Transfer tax 8%
25,200€
Notary fees (approx)
600€
Land registry fees (approx)
600€
Legal fees (approx)
1,500€
* Transfer tax is based on the sale value or the cadastral value whichever is the highest.
** The information above is displayed as a guide only.
Mortgage Calculator
Similar Properties
Spanish Property News & Updates by Spain Property Portal.com
In Spain, two primary taxes are associated with property purchases: IVA (Value Added Tax) and ITP (Property Transfer Tax). IVA, typically applicable to new constructions, stands at 10% of the property's value. On the other hand, ITP, levied on resale properties, varies between regions but generally ranges from 6% to 10%.
Spain Property Portal is an online platform that has revolutionized the way people buy and sell real estate in Spain.
In Spain, mortgages, known as "hipotecas," are common, and the market has seen significant growth and evolution.























