Make an Enquiry About This Property
Ref: SV5185
Property marketed by Signature Villas SL
Your Name:
Email Address:
Telephone Nº:
By checking this box, we will pass your query on to up to five other Estate Agents who have similar properties to this.
How can we help you?:
New build villa for sale in Rafalet, Jávea
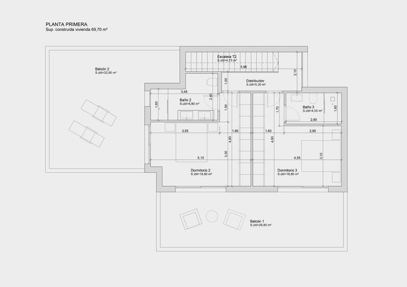
This villa will be ready by March 2026 (subject to change) and is located in the Rafalet urbanisation 3 km from Jávea beach.
The villa is located on a plot of 1085 m2 and has a built-up area of 329 m2 spread over three floors. The ground floor consists of a spacious living-dining room with an open kitchen, a master bedroom with a dressing room and an en suite bathroom with double sinks and a guest toilet. The upper floor consists of two spacious bedrooms, each with an en suite bathroom. There are also two large terraces on this floor. The semi-basement consists of a double garage, a laundry room, a bathroom and a gym.
Outside, there is a spacious covered terrace, a swimming pool with an outdoor shower surrounded by a sun terrace, a garden, a storage room and a driveway to the garage.
The urbansiation Rafalet is a stone's throw from Jávea Golf Club and at and 2 km from Jávea's historic centre. The beach and port can be reached in a 10-minute drive.
This villa will be ready by March 2026 (subject to change) and is located in the Rafalet urbanisation 3 km from Jávea beach.
The villa is located on a plot of 1085 m2 and has a built-up area of 329 m2 spread over three floors. The ground floor consists of a spacious living-dining room with an open kitchen, a master bedroom with a dressing room and an en suite bathroom with double sinks and a guest toilet. The upper floor consists of two spacious bedrooms, each with an en suite bathroom. There are also two large terraces on this floor. The semi-basement consists of a double garage, a laundry room, a bathroom and a gym.
Outside, there is a spacious covered terrace, a swimming pool with an outdoor shower surrounded by a sun terrace, a garden, a storage room and a driveway to the garage.
The urbansiation Rafalet is a stone's throw from Jávea Golf Club and at and 2 km from Jávea's historic centre. The beach and port can be reached in a 10-minute drive.
Property Features
- 4 bedrooms
- 4 bathrooms
- 1,085m² Plot size
- Garage
- Terrace
- newly built
- air conditioning
Costing Breakdown
Standard form of payment
Reservation deposit
3,000€
Remainder of deposit to 10%
94,800€
Final Payment of 90% on completion
880,200€
Property Purchase Expenses
Property price
978,000€
Transfer tax 8%
78,240€
Notary fees (approx)
600€
Land registry fees (approx)
600€
Legal fees (approx)
1,500€
* Transfer tax is based on the sale value or the cadastral value whichever is the highest.
** The information above is displayed as a guide only.
Mortgage Calculator
Similar Properties
Spanish Property News & Updates by Spain Property Portal.com
In Spain, two primary taxes are associated with property purchases: IVA (Value Added Tax) and ITP (Property Transfer Tax). IVA, typically applicable to new constructions, stands at 10% of the property's value. On the other hand, ITP, levied on resale properties, varies between regions but generally ranges from 6% to 10%.
Spain Property Portal is an online platform that has revolutionized the way people buy and sell real estate in Spain.
In Spain, mortgages, known as "hipotecas," are common, and the market has seen significant growth and evolution.










