Make an Enquiry About This Property
Ref: EFML7733S
Property marketed by España Dream Properties
Your Name:
Email Address:
Telephone Nº:
By checking this box, we will pass your query on to up to five other Estate Agents who have similar properties to this.
How can we help you?:
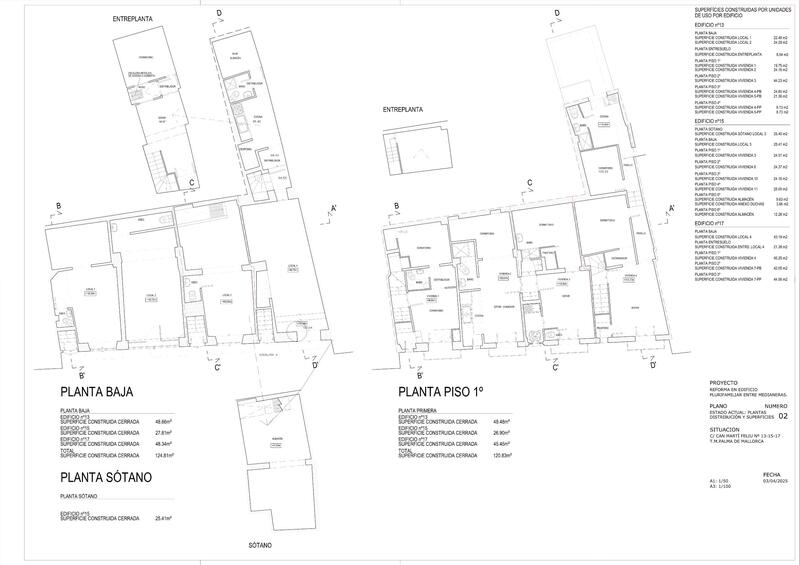
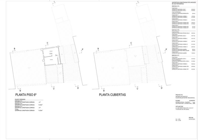
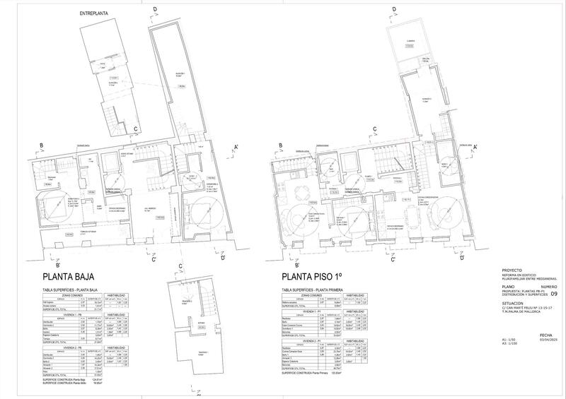
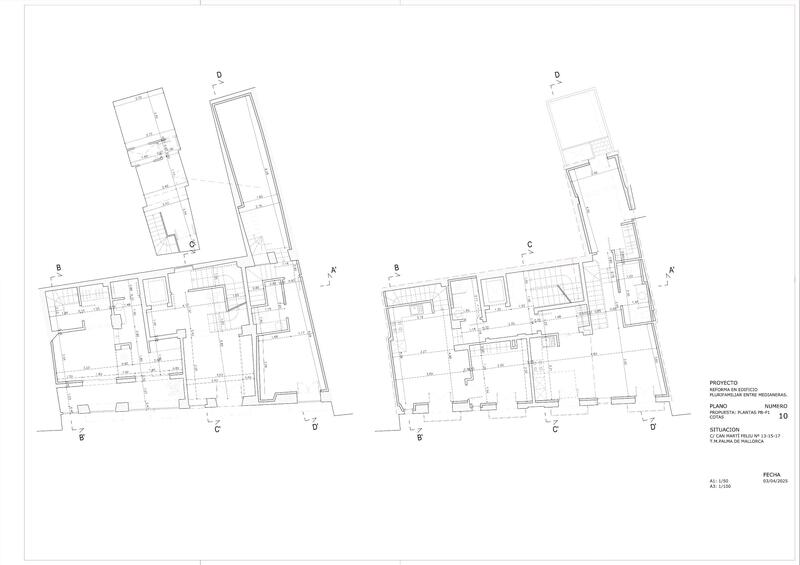
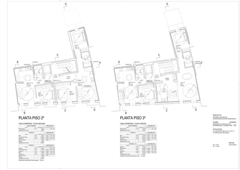
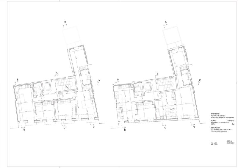
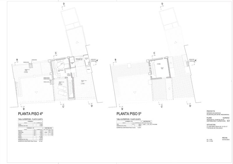
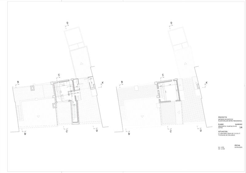
Three buildings for sale in the heart of Palma de Mallorca's historic centre, with a project for six luxury apartments with elevators.An investment opportunity in the very centre of Palma: three adjacent buildings located on a quiet street, just steps from Plaza Mayor and Plaza del Banc de l'Oli, and less than five minutes’ walk from Plaza España, three of the city's most iconic landmarks within the northern part of the El Casco Antiguo the historic centre of the city.The complete preliminary and final design plans are included, outlining the comprehensive renovation of the buildings to create six luxury apartments with elevators, totalling 585 m² of built area. The plans show the current state, layout, and future possibilities.Contact us for more information or to schedule a visit to these three buildings for sale in Palma de Mallorca.Palma de Mallorca is the capital of Mallorca and one of the most popular summer and winter short break destinations in Europe. The city is divided in to five districts, and also administers the island of Cabrera which is a marine reserve of international importance.
Property Features
- 10+ bedrooms
- 7 bathrooms
- 604m² Build size
- 132m² Plot size
- Utilities and Public services / Water / Electricity
- Urban: Water Connection Available
- Urban: Sewage Connection Available
- Urban: Electrical Connection Available
- Urban Views
- Renovation Needed
- Property Views
- Property Location
- Property Condition
- historic area
- Construction Licence Basic Proyecto Básico
- Close to Shops
- Close to Public Transport
Costing Breakdown
Standard form of payment
Reservation deposit
3,000€
Remainder of deposit to 10%
195,700€
Final Payment of 90% on completion
1,788,300€
Property Purchase Expenses
Property price
1,987,000€
Transfer tax 10%
198,700€
Notary fees (approx)
600€
Land registry fees (approx)
600€
Legal fees (approx)
1,500€
* Transfer tax is based on the sale value or the cadastral value whichever is the highest.
** The information above is displayed as a guide only.
Mortgage Calculator
Spanish Property News & Updates by Spain Property Portal.com
In Spain, two primary taxes are associated with property purchases: IVA (Value Added Tax) and ITP (Property Transfer Tax). IVA, typically applicable to new constructions, stands at 10% of the property's value. On the other hand, ITP, levied on resale properties, varies between regions but generally ranges from 6% to 10%.
Spain Property Portal is an online platform that has revolutionized the way people buy and sell real estate in Spain.
In Spain, mortgages, known as "hipotecas," are common, and the market has seen significant growth and evolution.






















