Make an Enquiry About This Property
Ref: N9216
Property marketed by The Property Group
Your Name:
Email Address:
Telephone Nº:
By checking this box, we will pass your query on to up to five other Estate Agents who have similar properties to this.
How can we help you?:
New Build Luxury Residences in El Higuerón, Costa del Sol
Exclusive Lifestyle in a Prime Location
This extraordinary new development of over 200 modern homes is located in the prestigious residential area of El Higuerón, one of the most sought-after enclaves on the Costa del Sol Nestled on a gentle hillside, the complex has been designed to provide not just a home, but a complete lifestyle experience, with breathtaking views of the Mediterranean Sea framed by the peaceful Sierra de Mijas
Modern Homes with Spacious Terraces
The project offers contemporary residences with open-plan layouts, large windows, and seamless integration of indoor and outdoor living Every property benefits from generous terraces, designed as a natural extension of the living space, allowing residents to enjoy the stunning sea and mountain views Ground floors and penthouses also offer the option to include a private jacuzzi
Premium Amenities for Wellbeing
Residents will enjoy a wide range of high-end facilities, including:
Outdoor swimming pools surrounded by landscaped gardens
Wellness center with indoor heated pool, gym, sauna, and hammam
Gourmet lounge and coworking space
Pet washing station
Underground parking with two spaces per home and pre-installation for electric car charging
Storage rooms for every unit
Sustainable Comfort and High-Quality Finishes
All homes are equipped with aerothermal systems for hot water and climate control, modern fitted kitchens with appliances, and bathrooms with furniture and mirrors High-quality finishes, smart home technology, and energy efficiency are central to the design, ensuring maximum comfort and sustainability
Privileged Location in El Higuerón
This development combines exclusivity, privacy, and excellent connectivity Located just 24 km from the beach, it is only 10 km from Málaga International Airport (10 minutes by car or 30 minutes by train) Other key points of interest include:
Fuengirola town center: 4 km
Benalmádena Costa: 4 km
Mijas Pueblo: 4 km
Puerto Marina and shopping centers: 6–8 km
Renowned golf courses: 10–20 km
Live the Mediterranean Way of Life
El Higuerón is renowned for its luxury lifestyle, international atmosphere, and access to nature, beaches, and premium services This development offers the perfect balance between tranquillity and convenience, making it an ideal choice for a permanent residence, holiday home, or investment
Contact us today to arrange a visit and secure your dream home in El Higuerón, Costa del Sol
Exclusive Lifestyle in a Prime Location
This extraordinary new development of over 200 modern homes is located in the prestigious residential area of El Higuerón, one of the most sought-after enclaves on the Costa del Sol Nestled on a gentle hillside, the complex has been designed to provide not just a home, but a complete lifestyle experience, with breathtaking views of the Mediterranean Sea framed by the peaceful Sierra de Mijas
Modern Homes with Spacious Terraces
The project offers contemporary residences with open-plan layouts, large windows, and seamless integration of indoor and outdoor living Every property benefits from generous terraces, designed as a natural extension of the living space, allowing residents to enjoy the stunning sea and mountain views Ground floors and penthouses also offer the option to include a private jacuzzi
Premium Amenities for Wellbeing
Residents will enjoy a wide range of high-end facilities, including:
Outdoor swimming pools surrounded by landscaped gardens
Wellness center with indoor heated pool, gym, sauna, and hammam
Gourmet lounge and coworking space
Pet washing station
Underground parking with two spaces per home and pre-installation for electric car charging
Storage rooms for every unit
Sustainable Comfort and High-Quality Finishes
All homes are equipped with aerothermal systems for hot water and climate control, modern fitted kitchens with appliances, and bathrooms with furniture and mirrors High-quality finishes, smart home technology, and energy efficiency are central to the design, ensuring maximum comfort and sustainability
Privileged Location in El Higuerón
This development combines exclusivity, privacy, and excellent connectivity Located just 24 km from the beach, it is only 10 km from Málaga International Airport (10 minutes by car or 30 minutes by train) Other key points of interest include:
Fuengirola town center: 4 km
Benalmádena Costa: 4 km
Mijas Pueblo: 4 km
Puerto Marina and shopping centers: 6–8 km
Renowned golf courses: 10–20 km
Live the Mediterranean Way of Life
El Higuerón is renowned for its luxury lifestyle, international atmosphere, and access to nature, beaches, and premium services This development offers the perfect balance between tranquillity and convenience, making it an ideal choice for a permanent residence, holiday home, or investment
Contact us today to arrange a visit and secure your dream home in El Higuerón, Costa del Sol
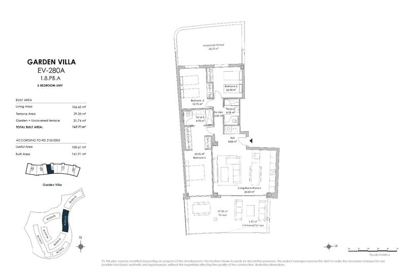
Property Features
- 3 bedrooms
- 2 bathrooms
- 141m² Build size
- Single Bedrooms: 2
- Communal Pool
- Central Heating
Costing Breakdown
Standard form of payment
Reservation deposit
3,000€
Remainder of deposit to 10%
71,500€
Final Payment of 90% on completion
670,500€
Property Purchase Expenses
Property price
745,000€
Transfer tax 10%
74,500€
Notary fees (approx)
600€
Land registry fees (approx)
600€
Legal fees (approx)
1,500€
* Transfer tax is based on the sale value or the cadastral value whichever is the highest.
** The information above is displayed as a guide only.
Mortgage Calculator
Similar Properties
Spanish Property News & Updates by Spain Property Portal.com
In Spain, two primary taxes are associated with property purchases: IVA (Value Added Tax) and ITP (Property Transfer Tax). IVA, typically applicable to new constructions, stands at 10% of the property's value. On the other hand, ITP, levied on resale properties, varies between regions but generally ranges from 6% to 10%.
Spain Property Portal is an online platform that has revolutionized the way people buy and sell real estate in Spain.
In Spain, mortgages, known as "hipotecas," are common, and the market has seen significant growth and evolution.


















