Make an Enquiry About This Property
Ref: MLSC1224268
Property marketed by The Property Group
Your Name:
Email Address:
Telephone Nº:
By checking this box, we will pass your query on to up to five other Estate Agents who have similar properties to this.
How can we help you?:
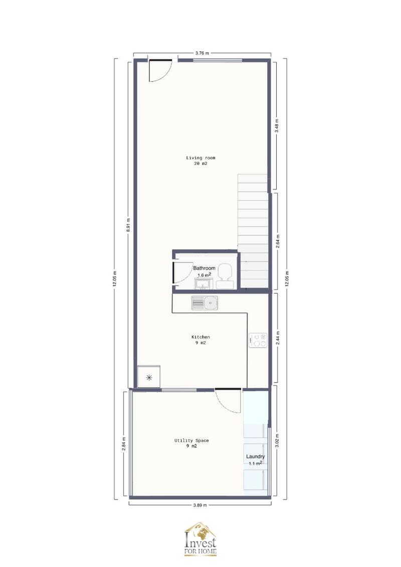
Completely renovated and ready to move into, this home is located in the Arco Mediterráneo Urbanization, a private residential area with a communal pool Situated in a very convenient area, just minutes from the Habaneras Shopping Center, Quirón Hospital, the municipal sports center, and with easy access to the N-332 highwayLa Mata beach is just a few minutes away by car, and Alicante Airport is approximately 35–40 minutes awayMain features:80 m² built houseLarge 20 m² living room with air conditioningSouthwest facing, very bright2 bedrooms (the master bedroom with air conditioning and custom-made dressing room)1 full and modern bathroom + 1 toilet on the ground floor, both renovatedNew kitchen, installed a year agoCeramic flooring with vinyl covering + recent paint throughout the homeCovered rear terrace, ideal as a laundry area or storage roomPrivate solarium perfect for enjoying the sun all year roundGated community with communal poolBuilt in 2001 and completely renovatedIdeal as a permanent home, vacation home, or rental investment Ready to enjoy from day one
Property Features
- 2 bedrooms
- 1 bathroom
- 80m² Build size
- Reinforced door
- Dressing room
- Furnished
- Renovated
- Roof terrace
- Shutters
- Utility room
Costing Breakdown
Standard form of payment
Reservation deposit
3,000€
Remainder of deposit to 10%
16,500€
Final Payment of 90% on completion
175,500€
Property Purchase Expenses
Property price
195,000€
Transfer tax 8%
15,600€
Notary fees (approx)
600€
Land registry fees (approx)
600€
Legal fees (approx)
1,500€
* Transfer tax is based on the sale value or the cadastral value whichever is the highest.
** The information above is displayed as a guide only.
Mortgage Calculator
Similar Properties
Spanish Property News & Updates by Spain Property Portal.com
In Spain, two primary taxes are associated with property purchases: IVA (Value Added Tax) and ITP (Property Transfer Tax). IVA, typically applicable to new constructions, stands at 10% of the property's value. On the other hand, ITP, levied on resale properties, varies between regions but generally ranges from 6% to 10%.
Spain Property Portal is an online platform that has revolutionized the way people buy and sell real estate in Spain.
In Spain, mortgages, known as "hipotecas," are common, and the market has seen significant growth and evolution.





















