Make an Enquiry About This Property
Ref: TG-63568
Property marketed by Vivacosta
Your Name:
Email Address:
Telephone Nº:
By checking this box, we will pass your query on to up to five other Estate Agents who have similar properties to this.
How can we help you?:
LOCATION:
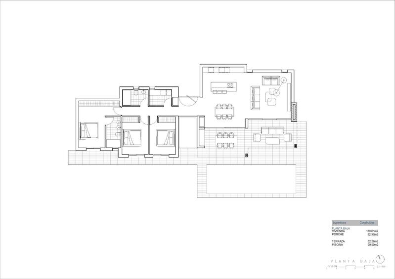
We find this modern villa under construction on a plot of 785m2, just 3km from the center of Calpe and its beaches.
DISTRIBUTION:
The house consists of 3 floors with the following distribution:
On the ground floor is the spacious living-dining room with open kitchen and direct access to the terrace with the private pool of 4x8 m, a bedroom and a separate bathroom. In addition, on this floor we find a garage of 27 m2, an easy-to-maintain garden, covered and open terrace.
Going up the stairs we go to the upper floor which gives access to 3 more bedrooms, one with an en-suite bathroom and a complete bathroom. In addition, all rooms have access to an open terrace where you can enjoy the beautiful views offered by this villa.
Finally, the basement, where we find a large space that you can convert into whatever you want such as a cinema room, gym area...
This villa will be built with high quality materials.
If you would like more information or a visit, please do not hesitate to contact us!
We find this modern villa under construction on a plot of 785m2, just 3km from the center of Calpe and its beaches.
DISTRIBUTION:
The house consists of 3 floors with the following distribution:
On the ground floor is the spacious living-dining room with open kitchen and direct access to the terrace with the private pool of 4x8 m, a bedroom and a separate bathroom. In addition, on this floor we find a garage of 27 m2, an easy-to-maintain garden, covered and open terrace.
Going up the stairs we go to the upper floor which gives access to 3 more bedrooms, one with an en-suite bathroom and a complete bathroom. In addition, all rooms have access to an open terrace where you can enjoy the beautiful views offered by this villa.
Finally, the basement, where we find a large space that you can convert into whatever you want such as a cinema room, gym area...
This villa will be built with high quality materials.
If you would like more information or a visit, please do not hesitate to contact us!
Property Features
- 4 bedrooms
- 3 bathrooms
- 245m² Build size
- 785m² Plot size
- Swimming Pool
Costing Breakdown
Standard form of payment
Reservation deposit
3,000€
Remainder of deposit to 10%
114,500€
Final Payment of 90% on completion
1,057,500€
Property Purchase Expenses
Property price
1,175,000€
Transfer tax 8%
94,000€
Notary fees (approx)
600€
Land registry fees (approx)
600€
Legal fees (approx)
1,500€
* Transfer tax is based on the sale value or the cadastral value whichever is the highest.
** The information above is displayed as a guide only.
Mortgage Calculator
Similar Properties
Spanish Property News & Updates by Spain Property Portal.com
In Spain, two primary taxes are associated with property purchases: IVA (Value Added Tax) and ITP (Property Transfer Tax). IVA, typically applicable to new constructions, stands at 10% of the property's value. On the other hand, ITP, levied on resale properties, varies between regions but generally ranges from 6% to 10%.
Spain Property Portal is an online platform that has revolutionized the way people buy and sell real estate in Spain.
In Spain, mortgages, known as "hipotecas," are common, and the market has seen significant growth and evolution.


















