Gör en förfrågan om den här egenskapen
Ref: CSPN-91998
Fastighet som marknadsförs av Complete Spanish Property
Ditt namn:
E-postadress:
Telefon nr:
Genom att markera den här rutan kommer vi att vidarebefordra din fråga till upp till fem andra fastighetsmäklare som har liknande fastigheter som denna.
Förfrågningsinformation:
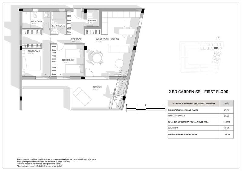
DESIGN BUNGALOW BY THE SEA Residential in a newly developed area just 250m from the sea. Excellent location very close to the urban center of Torrevieja and surrounded by services, shops and restaurants. The Torrevieja General Hospital and the marina are also nearby. Excellent residential with a beautiful garden, swimming pool and fitness area. Enjoy this complete, modern, and charming bungalow with a minimalist design.
Egenskaper
- 2 sovrum
- 2 badrum
- 106m² Bygg storlek
- Simbassäng
EPC -betyg
| Energiklassningsskala |
|---|
| A |
| B |
| C |
| D |
| E |
| F |
| G |
Kostnadsfördelning
Standard betalningsform
Reservationsdeposition
3.000€
Återstoden av insättningen till 10%
35.000€
Slutbetalning på 90% vid slutförande
342.000€
Fastighetsköpskostnader
Fastighetspris
380.000€
Överföringsskatt 8%
30.400€
Notaravgifter (cirka)
600€
Matrikelavgifter (cirka)
600€
Juridiska avgifter (cirka)
1.500€
* Överföringsskatt baseras på försäljningsvärdet eller matrikelvärdet som är det högsta.
** Informationen ovan visas endast som en guide.
Amorteringskalkylator
Similar Properties
Spanska fastighetsnyheter och uppdateringar av Spain Property Portal.com
In Spain, two primary taxes are associated with property purchases: IVA (Value Added Tax) and ITP (Property Transfer Tax). IVA, typically applicable to new constructions, stands at 10% of the property's value. On the other hand, ITP, levied on resale properties, varies between regions but generally ranges from 6% to 10%.
Spain Property Portal is an online platform that has revolutionized the way people buy and sell real estate in Spain.
In Spain, mortgages, known as "hipotecas," are common, and the market has seen significant growth and evolution.













