Gör en förfrågan om den här egenskapen
Ref: CSPN-41818
Fastighet som marknadsförs av Complete Spanish Property
Ditt namn:
E-postadress:
Telefon nr:
Genom att markera den här rutan kommer vi att vidarebefordra din fråga till upp till fem andra fastighetsmäklare som har liknande fastigheter som denna.
Förfrågningsinformation:
New Build Apartments in Rojales Close to Golf and Beaches
Modern Living in a Growing Area of RojalesThis new residential development is located in a modern expansion area of the charming town of Rojales, in the heart of the Costa Blanca South. The project consists of 14 new build homes in its first phase, designed to offer comfort, quality and an excellent location. The residential area allows easy walking access to all daily services such as supermarkets, restaurants, banks and pharmacies, making it ideal for both permanent living and holiday use.
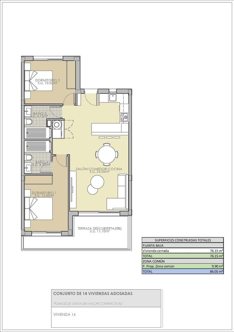
Choice of Ground Floor or Top Floor HomesThe development offers contemporary apartments with 2 bedrooms and 2 bathrooms, including a master bedroom with en suite bathroom. Buyers can choose between ground floor properties with spacious private terraces, perfect for outdoor living, or top floor homes featuring a terrace and a private solarium ideal for sunbathing and relaxing. Some of the top floor apartments are accessible by lift, adding extra convenience and accessibility.
Quality Finishes and Energy EfficiencyAll homes are built with high quality materials and modern specifications. The bathrooms include underfloor heating, fitted furniture with mirrors and shower screens. Kitchens are fully furnished and equipped with electrical appliances, offering a modern and functional design. Motorised shutters are included, along with pre installation for ducted air conditioning. Each property also benefits from the installation of 1 kW photovoltaic solar panels, contributing to improved energy efficiency and reduced running costs and Preinstallation for a private jacuzzi.
Parking and Community ComfortEvery home includes a private parking space in the underground garage, providing security and comfort. The residential design focuses on practicality and modern living, offering a peaceful environment in a well planned new urban area of Rojales.
Rojales Lifestyle and SurroundingsRojales is a traditional Spanish town known for its friendly atmosphere and excellent quality of life. It offers all essential services, as well as a nearby natural park ideal for walking and outdoor activities. The area is especially popular with golf enthusiasts, with La Marquesa Golf Course located less than 2 km away and two additional golf courses within a short drive. The blue flag beaches of Guardamar del Segura are only 7 km away, offering long sandy beaches and a beautiful promenade. Water parks and leisure facilities in Rojales and Torrevieja are also close by.
Distances to Main Points of InterestLa Marquesa Golf Course: 2 kmGuardamar beaches: 7 kmTorrevieja: 12 kmAlicante Airport: 45 kmMurcia Corvera Airport: 55 km
Your New Home on the Costa BlancaThese new build apartments in Rojales offer an excellent combination of location, quality and lifestyle. Contact us today to receive more information or to arrange a viewing and secure your new home on the Costa Blanca South.
Modern Living in a Growing Area of RojalesThis new residential development is located in a modern expansion area of the charming town of Rojales, in the heart of the Costa Blanca South. The project consists of 14 new build homes in its first phase, designed to offer comfort, quality and an excellent location. The residential area allows easy walking access to all daily services such as supermarkets, restaurants, banks and pharmacies, making it ideal for both permanent living and holiday use.
Choice of Ground Floor or Top Floor HomesThe development offers contemporary apartments with 2 bedrooms and 2 bathrooms, including a master bedroom with en suite bathroom. Buyers can choose between ground floor properties with spacious private terraces, perfect for outdoor living, or top floor homes featuring a terrace and a private solarium ideal for sunbathing and relaxing. Some of the top floor apartments are accessible by lift, adding extra convenience and accessibility.
Quality Finishes and Energy EfficiencyAll homes are built with high quality materials and modern specifications. The bathrooms include underfloor heating, fitted furniture with mirrors and shower screens. Kitchens are fully furnished and equipped with electrical appliances, offering a modern and functional design. Motorised shutters are included, along with pre installation for ducted air conditioning. Each property also benefits from the installation of 1 kW photovoltaic solar panels, contributing to improved energy efficiency and reduced running costs and Preinstallation for a private jacuzzi.
Parking and Community ComfortEvery home includes a private parking space in the underground garage, providing security and comfort. The residential design focuses on practicality and modern living, offering a peaceful environment in a well planned new urban area of Rojales.
Rojales Lifestyle and SurroundingsRojales is a traditional Spanish town known for its friendly atmosphere and excellent quality of life. It offers all essential services, as well as a nearby natural park ideal for walking and outdoor activities. The area is especially popular with golf enthusiasts, with La Marquesa Golf Course located less than 2 km away and two additional golf courses within a short drive. The blue flag beaches of Guardamar del Segura are only 7 km away, offering long sandy beaches and a beautiful promenade. Water parks and leisure facilities in Rojales and Torrevieja are also close by.
Distances to Main Points of InterestLa Marquesa Golf Course: 2 kmGuardamar beaches: 7 kmTorrevieja: 12 kmAlicante Airport: 45 kmMurcia Corvera Airport: 55 km
Your New Home on the Costa BlancaThese new build apartments in Rojales offer an excellent combination of location, quality and lifestyle. Contact us today to receive more information or to arrange a viewing and secure your new home on the Costa Blanca South.
Egenskaper
- 2 sovrum
- 2 badrum
- 76m² Bygg storlek
EPC -betyg
| Energiklassningsskala |
|---|
| A |
| B |
| C |
| D |
| E |
| F |
| G |
Kostnadsfördelning
Standard betalningsform
Reservationsdeposition
3.000€
Återstoden av insättningen till 10%
25.190€
Slutbetalning på 90% vid slutförande
253.710€
Fastighetsköpskostnader
Fastighetspris
281.900€
Överföringsskatt 8%
22.552€
Notaravgifter (cirka)
600€
Matrikelavgifter (cirka)
600€
Juridiska avgifter (cirka)
1.500€
* Överföringsskatt baseras på försäljningsvärdet eller matrikelvärdet som är det högsta.
** Informationen ovan visas endast som en guide.
Amorteringskalkylator
Similar Properties
Spanska fastighetsnyheter och uppdateringar av Spain Property Portal.com
In Spain, two primary taxes are associated with property purchases: IVA (Value Added Tax) and ITP (Property Transfer Tax). IVA, typically applicable to new constructions, stands at 10% of the property's value. On the other hand, ITP, levied on resale properties, varies between regions but generally ranges from 6% to 10%.
Spain Property Portal is an online platform that has revolutionized the way people buy and sell real estate in Spain.
In Spain, mortgages, known as "hipotecas," are common, and the market has seen significant growth and evolution.




















