Gör en förfrågan om den här egenskapen
Ref: EMA8544Z
Fastighet som marknadsförs av España Dream Properties
Ditt namn:
E-postadress:
Telefon nr:
Genom att markera den här rutan kommer vi att vidarebefordra din fråga till upp till fem andra fastighetsmäklare som har liknande fastigheter som denna.
Förfrågningsinformation:
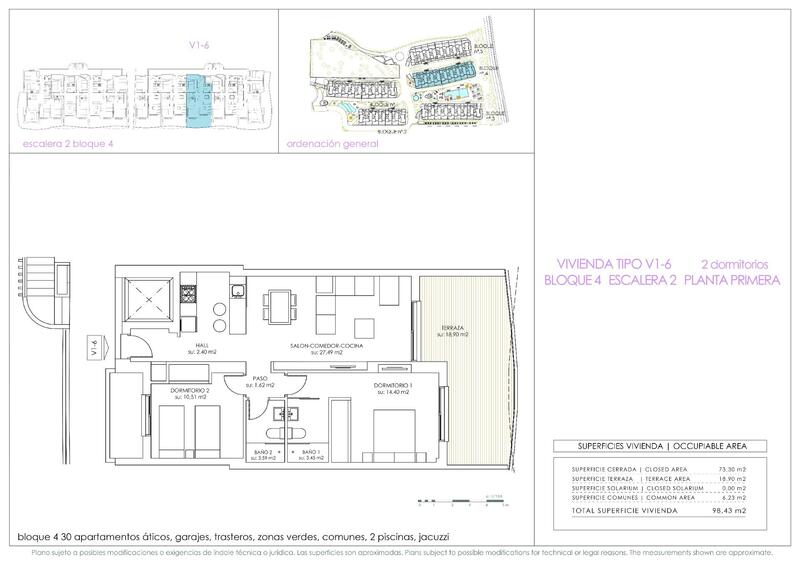
NEW BUILD RESIDENTIAL AT PLAYA FLAMENCA!!! From a well established developer we are proud to offer this just released new residential just 500 m away from sea at popular Playa Flamenca (Orihuela Costa). Residential with nice comunal pools, jacuzzis and nice common gardens. All services like supermarkets, bars and restaurants, etc are within walking distance in a very central spot at Orihuela Costa. Wide variety of types to choose from: studios, 1, 2 or 3 bedroom apartments. Low floors with private gardens or top floors with private solariums. All houses come with a parking space and a storage room included in the price. Zenia Boulevard shopping center 1km away and several golf courses like Villamartin, Campoamor within 5 km from this residential will make an ideal location for your holidays or your permanent living.
Egenskaper
- 2 sovrum
- 2 badrum
- Simbassäng
- Near Schools
- Number of Parking Spaces: 1
- Near bus route
- Location: Coastal, Urbanisation
- Beach: 500 Meters
- Near Trees
- Storage / Trastero
- Air Conditioning: Pre-Installed
- Useable Build Space: 65 Msq.
- Elevator/Lift
- Communal Pool
- Gated
- Terrace: 18 Msq.
- Parking - Space
- Double Bedrooms: 2
- Near Commercial Center
Kostnadsfördelning
Standard betalningsform
Reservationsdeposition
3.000€
Återstoden av insättningen till 10%
30.900€
Slutbetalning på 90% vid slutförande
305.100€
Fastighetsköpskostnader
Fastighetspris
339.000€
Överföringsskatt 8%
27.120€
Notaravgifter (cirka)
600€
Matrikelavgifter (cirka)
600€
Juridiska avgifter (cirka)
1.500€
* Överföringsskatt baseras på försäljningsvärdet eller matrikelvärdet som är det högsta.
** Informationen ovan visas endast som en guide.
Amorteringskalkylator
Similar Properties
Spanska fastighetsnyheter och uppdateringar av Spain Property Portal.com
In Spain, two primary taxes are associated with property purchases: IVA (Value Added Tax) and ITP (Property Transfer Tax). IVA, typically applicable to new constructions, stands at 10% of the property's value. On the other hand, ITP, levied on resale properties, varies between regions but generally ranges from 6% to 10%.
Spain Property Portal is an online platform that has revolutionized the way people buy and sell real estate in Spain.
In Spain, mortgages, known as "hipotecas," are common, and the market has seen significant growth and evolution.























