Gör en förfrågan om den här egenskapen
Ref: MLS23861U
Fastighet som marknadsförs av Vivacosta
Ditt namn:
E-postadress:
Telefon nr:
Genom att markera den här rutan kommer vi att vidarebefordra din fråga till upp till fem andra fastighetsmäklare som har liknande fastigheter som denna.
Förfrågningsinformation:
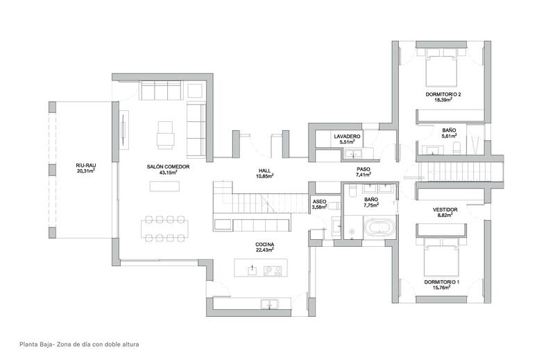
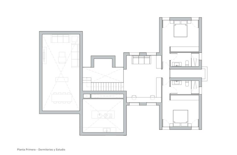
This modern finca-style villa will be built on a plot of 10,920 m2 in the interior of Teulada-Moraira just 4 km from the coast.The villa is spread over two floors + garage in the basement. You enter a spacious hall on the ground floor that separates the living area from the sleeping quarters. On the south side of the house is a spacious living-dining room with an adjoining modern kitchen with an island. Next to the kitchen is the guest toilet. The bedrooms are located on the north side of the villa. On the ground floor is the master bedroom with a spacious en suite bathroom with bathtub, shower and double washbasin and a second double bedroom with an en suite bathroom. In the hallway there is another laundry room and stairs to the upper floor and to the basement. The upper floor consists of two double bedrooms, each with an en suite bathroom and a spacious office. In the basement there is a double garage and a bathroom. From the living room there is access through sliding windows to the ‘riu rau’, a spacious covered terrace overlooking the garden and pool. By the pool is a covered dining area with a kitchen, ideal for spending the entire summer by the pool. The villa is surrounded by a Mediterranean garden with automatic irrigation and several terraces. There is a driveway with parking space for several cars. A pre-installation for pool heating will be installed and pre-installation for an alarm system. The air conditioning system being installed is the AEROTHERMIA system for heating and cooling and underfloor heating throughout the house with AIRZONE system. The licence for the project has been applied for and the finca can be built in one year. The plot is located in the beautiful inland area of Teulada-Moraira a few kilometres from the beautiful coastline.
Egenskaper
- 4 sovrum
- 4 badrum
- 457m² Bygg storlek
- 10.920m² Tomtstorlek
- Simbassäng
- Air conditioning
- Automatic gate
- Automatic irrigation
- Built-in cabinets
- Double glazing
- Floor heating
- Garage
- garden
- Pool
- Terrace
- Video doorbell
Kostnadsfördelning
Standard betalningsform
Reservationsdeposition
3.000€
Återstoden av insättningen till 10%
295.500€
Slutbetalning på 90% vid slutförande
2.686.500€
Fastighetsköpskostnader
Fastighetspris
2.985.000€
Överföringsskatt 8%
238.800€
Notaravgifter (cirka)
600€
Matrikelavgifter (cirka)
600€
Juridiska avgifter (cirka)
1.500€
* Överföringsskatt baseras på försäljningsvärdet eller matrikelvärdet som är det högsta.
** Informationen ovan visas endast som en guide.
Amorteringskalkylator
Similar Properties
Spanska fastighetsnyheter och uppdateringar av Spain Property Portal.com
In Spain, two primary taxes are associated with property purchases: IVA (Value Added Tax) and ITP (Property Transfer Tax). IVA, typically applicable to new constructions, stands at 10% of the property's value. On the other hand, ITP, levied on resale properties, varies between regions but generally ranges from 6% to 10%.
Spain Property Portal is an online platform that has revolutionized the way people buy and sell real estate in Spain.
In Spain, mortgages, known as "hipotecas," are common, and the market has seen significant growth and evolution.



















