Gör en förfrågan om den här egenskapen
Ref: CSPN-84849
Fastighet som marknadsförs av Complete Spanish Property
Ditt namn:
E-postadress:
Telefon nr:
Genom att markera den här rutan kommer vi att vidarebefordra din fråga till upp till fem andra fastighetsmäklare som har liknande fastigheter som denna.
Förfrågningsinformation:
New Villas in Finestrat - Luxury, Nature and Sea Views
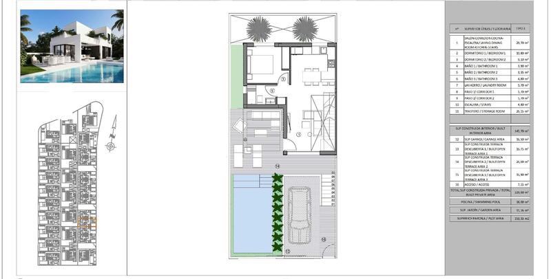
Exclusive Residential in Sierra Cortina, Benidorm-FinestratDiscover this new luxury residential development in Sierra Cortina, Finestrat, one of the most exclusive areas of the Costa Blanca. This development offers 30 villas of avant-garde design, with options of semi-detached and detached villas, all of them with spectacular sea and mountain views.
Located in a peaceful setting, yet close to all amenities, this development is ideal for those seeking privacy, comfort and access to Benidorm's best beaches and services.
Modern Design and Spacious LivingThe villas have been designed in a contemporary style, optimising natural light and panoramic views. You will be able to choose from various models with options from 2 to 4 bedrooms, and some designs include basement with English patio, allowing the possibility of adding additional bedrooms.
Each home features:
2 floors with private terraces with sea views.Private swimming pool and garden for your enjoyment.Garage on the plot, with space for your vehicle.Open concept kitchen integrated into the living room.Fitted wardrobes and storage space.Utility room for convenience.
Privileged location on the Costa BlancaThis exclusive residential is located in Sierra Cortina, one of the most prestigious areas of the Costa Blanca, surrounded by nature and with access to first class services.
Only 3 km from the sea, this development is located next to two golf courses and close to the Terra Mitica theme park and the luxury hotel Asia Gardens. It also has fast connections to the main roads and airports in the region.
Distances to Main Points of InterestBenidorm Beaches - 3 km.Villaitana and Sierra Cortina Golf Courses - 2 km.La Marina Shopping Centre - 2 km.Terra Mitica Theme Park - 1.5 km.Alicante Airport - 40 km.
Live in an Exclusive Area with All AmenitiesFinestrat is a charming municipality in the Marina Baixa, located just a few minutes from Benidorm. Its combination of mountain and sea, together with its modern infrastructure, make it an unbeatable location to live or invest.
Don't miss the opportunity to acquire a brand new villa in this privileged location. Contact us today for more information and to arrange a viewing.
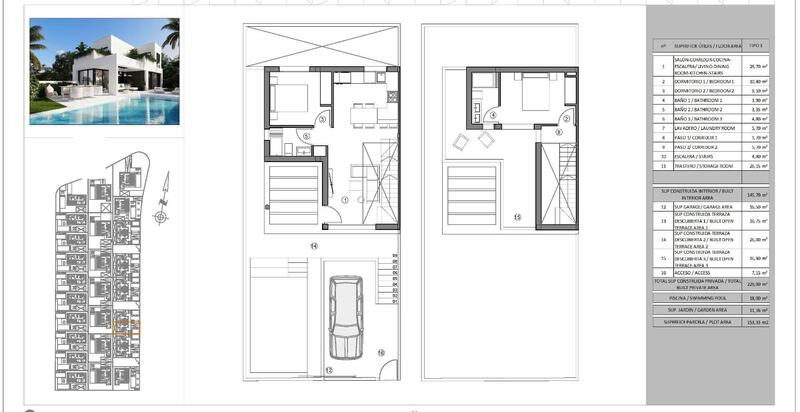
Exclusive Residential in Sierra Cortina, Benidorm-FinestratDiscover this new luxury residential development in Sierra Cortina, Finestrat, one of the most exclusive areas of the Costa Blanca. This development offers 30 villas of avant-garde design, with options of semi-detached and detached villas, all of them with spectacular sea and mountain views.
Located in a peaceful setting, yet close to all amenities, this development is ideal for those seeking privacy, comfort and access to Benidorm's best beaches and services.
Modern Design and Spacious LivingThe villas have been designed in a contemporary style, optimising natural light and panoramic views. You will be able to choose from various models with options from 2 to 4 bedrooms, and some designs include basement with English patio, allowing the possibility of adding additional bedrooms.
Each home features:
2 floors with private terraces with sea views.Private swimming pool and garden for your enjoyment.Garage on the plot, with space for your vehicle.Open concept kitchen integrated into the living room.Fitted wardrobes and storage space.Utility room for convenience.
Privileged location on the Costa BlancaThis exclusive residential is located in Sierra Cortina, one of the most prestigious areas of the Costa Blanca, surrounded by nature and with access to first class services.
Only 3 km from the sea, this development is located next to two golf courses and close to the Terra Mitica theme park and the luxury hotel Asia Gardens. It also has fast connections to the main roads and airports in the region.
Distances to Main Points of InterestBenidorm Beaches - 3 km.Villaitana and Sierra Cortina Golf Courses - 2 km.La Marina Shopping Centre - 2 km.Terra Mitica Theme Park - 1.5 km.Alicante Airport - 40 km.
Live in an Exclusive Area with All AmenitiesFinestrat is a charming municipality in the Marina Baixa, located just a few minutes from Benidorm. Its combination of mountain and sea, together with its modern infrastructure, make it an unbeatable location to live or invest.
Don't miss the opportunity to acquire a brand new villa in this privileged location. Contact us today for more information and to arrange a viewing.
Egenskaper
- 3 sovrum
- 3 badrum
- 212m² Bygg storlek
- 150m² Tomtstorlek
- Simbassäng
EPC -betyg
| Energiklassningsskala |
|---|
| A |
| B |
| C |
| D |
| E |
| F |
| G |
Kostnadsfördelning
Standard betalningsform
Reservationsdeposition
3.000€
Återstoden av insättningen till 10%
47.300€
Slutbetalning på 90% vid slutförande
452.700€
Fastighetsköpskostnader
Fastighetspris
503.000€
Överföringsskatt 8%
40.240€
Notaravgifter (cirka)
600€
Matrikelavgifter (cirka)
600€
Juridiska avgifter (cirka)
1.500€
* Överföringsskatt baseras på försäljningsvärdet eller matrikelvärdet som är det högsta.
** Informationen ovan visas endast som en guide.
Amorteringskalkylator
Similar Properties
Spanska fastighetsnyheter och uppdateringar av Spain Property Portal.com
In Spain, two primary taxes are associated with property purchases: IVA (Value Added Tax) and ITP (Property Transfer Tax). IVA, typically applicable to new constructions, stands at 10% of the property's value. On the other hand, ITP, levied on resale properties, varies between regions but generally ranges from 6% to 10%.
Spain Property Portal is an online platform that has revolutionized the way people buy and sell real estate in Spain.
In Spain, mortgages, known as "hipotecas," are common, and the market has seen significant growth and evolution.























