Gör en förfrågan om den här egenskapen
Ref: CSPN-26315
Fastighet som marknadsförs av Complete Spanish Property
Ditt namn:
E-postadress:
Telefon nr:
Genom att markera den här rutan kommer vi att vidarebefordra din fråga till upp till fem andra fastighetsmäklare som har liknande fastigheter som denna.
Förfrågningsinformation:
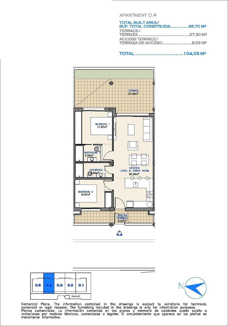
New Build Residential Complex in Los Alcázares Exclusive Homes on the Costa Cálida This new residential complex in Los Alcázares offers a unique opportunity to enjoy modern living in one of the most desirable areas of the Costa Cálida. Just 1.2 km from the beach and located on the frontline of the prestigious La Serena Golf course, this development perfectly combines a coastal lifestyle with the tranquility of golf surroundings. The charming town center of Los Alcázares is within walking distance, providing easy access to shops, restaurants, and all essential services. Modern Apartments and Exclusive Villas The promotion consists of 13 contemporary apartments with 2, 3, or 4 bedrooms and 4 exclusive villas with 3 bedrooms. Buyers can choose between ground floor or middle floor apartments with spacious terraces, or penthouses with private solariums. All properties include a private parking space and storage room in the underground garage, accessible by elevator. High-Quality Features Every home has been designed with modern finishes and maximum comfort in mind. Key features include: Fully equipped bathrooms with furniture and shower screens Pre-installation of ducted air conditioning Motorized shutters in bedrooms These details ensure that each property is practical, stylish, and ready to adapt to a variety of lifestyles. A Prime Location with Excellent Connections Los Alcázares is strategically located for both leisure and convenience. The area offers direct access to main highways and is well connected to nearby cities and airports: Mar Menor beaches: 1.2 km La Serena Golf Club: adjacent to the complex Cartagena: 20 km Murcia Airport: 25 minutes Alicante Airport: 55 minutes Several golf courses within a 10 to 20 km radius Lifestyle by the Sea and Golf Living in Los Alcázares means enjoying the best of the Mediterranean lifestyle. The nearby Mar Menor, Europe’s largest saltwater lagoon, offers warm, shallow waters ideal for swimming, sailing, and a wide variety of water sports. Golf lovers will appreciate the direct access to La Serena Golf, famous for its challenging design with water hazards on 16 of its 18 holes. Your Mediterranean Home Awaits Whether you are looking for a permanent residence, a vacation retreat, or an investment opportunity, this new development in Los Alcázares offers the perfect balance of modern comfort, natural beauty, and excellent location. Contact us today to arrange a visit and secure your dream home on the Costa Cálida.
Egenskaper
- 2 sovrum
- 2 badrum
- 70m² Bygg storlek
- Simbassäng
EPC -betyg
| Energiklassningsskala |
|---|
| A |
| B |
| C |
| D |
| E |
| F |
| G |
Kostnadsfördelning
Standard betalningsform
Reservationsdeposition
3.000€
Återstoden av insättningen till 10%
24.500€
Slutbetalning på 90% vid slutförande
247.500€
Fastighetsköpskostnader
Fastighetspris
275.000€
Överföringsskatt 8%
22.000€
Notaravgifter (cirka)
600€
Matrikelavgifter (cirka)
600€
Juridiska avgifter (cirka)
1.500€
* Överföringsskatt baseras på försäljningsvärdet eller matrikelvärdet som är det högsta.
** Informationen ovan visas endast som en guide.
Amorteringskalkylator
Similar Properties
Spanska fastighetsnyheter och uppdateringar av Spain Property Portal.com
In Spain, two primary taxes are associated with property purchases: IVA (Value Added Tax) and ITP (Property Transfer Tax). IVA, typically applicable to new constructions, stands at 10% of the property's value. On the other hand, ITP, levied on resale properties, varies between regions but generally ranges from 6% to 10%.
Spain Property Portal is an online platform that has revolutionized the way people buy and sell real estate in Spain.
In Spain, mortgages, known as "hipotecas," are common, and the market has seen significant growth and evolution.


















