Gör en förfrågan om den här egenskapen
Ref: CSPN-71455
Fastighet som marknadsförs av Complete Spanish Property
Ditt namn:
E-postadress:
Telefon nr:
Genom att markera den här rutan kommer vi att vidarebefordra din fråga till upp till fem andra fastighetsmäklare som har liknande fastigheter som denna.
Förfrågningsinformation:
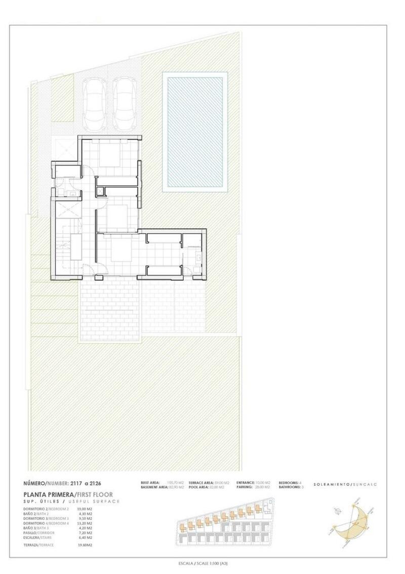
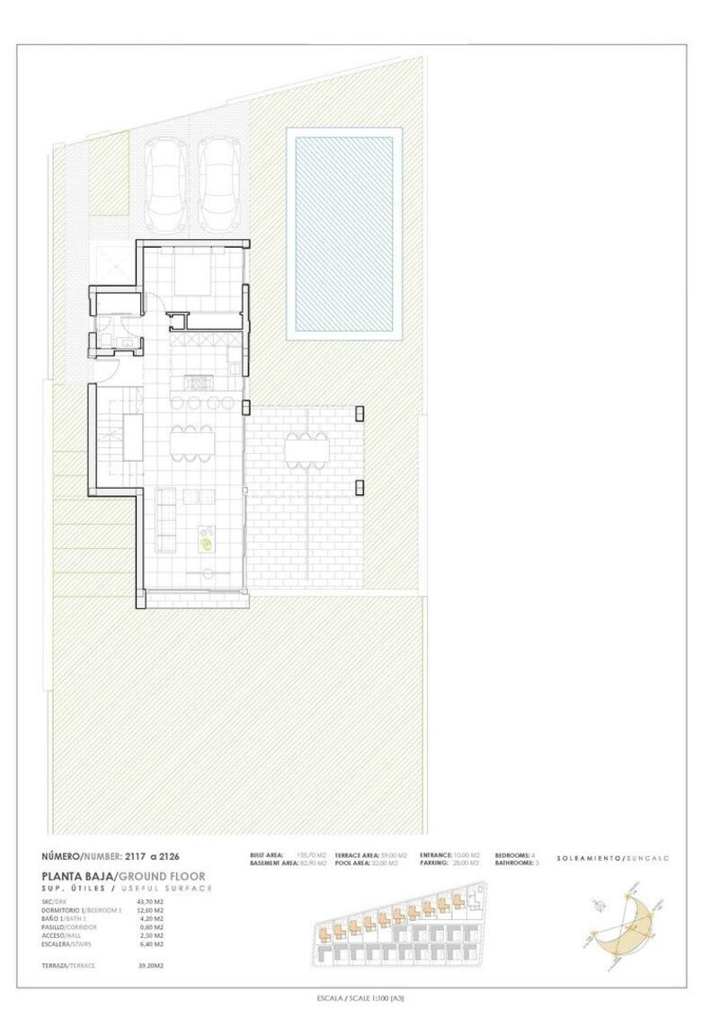
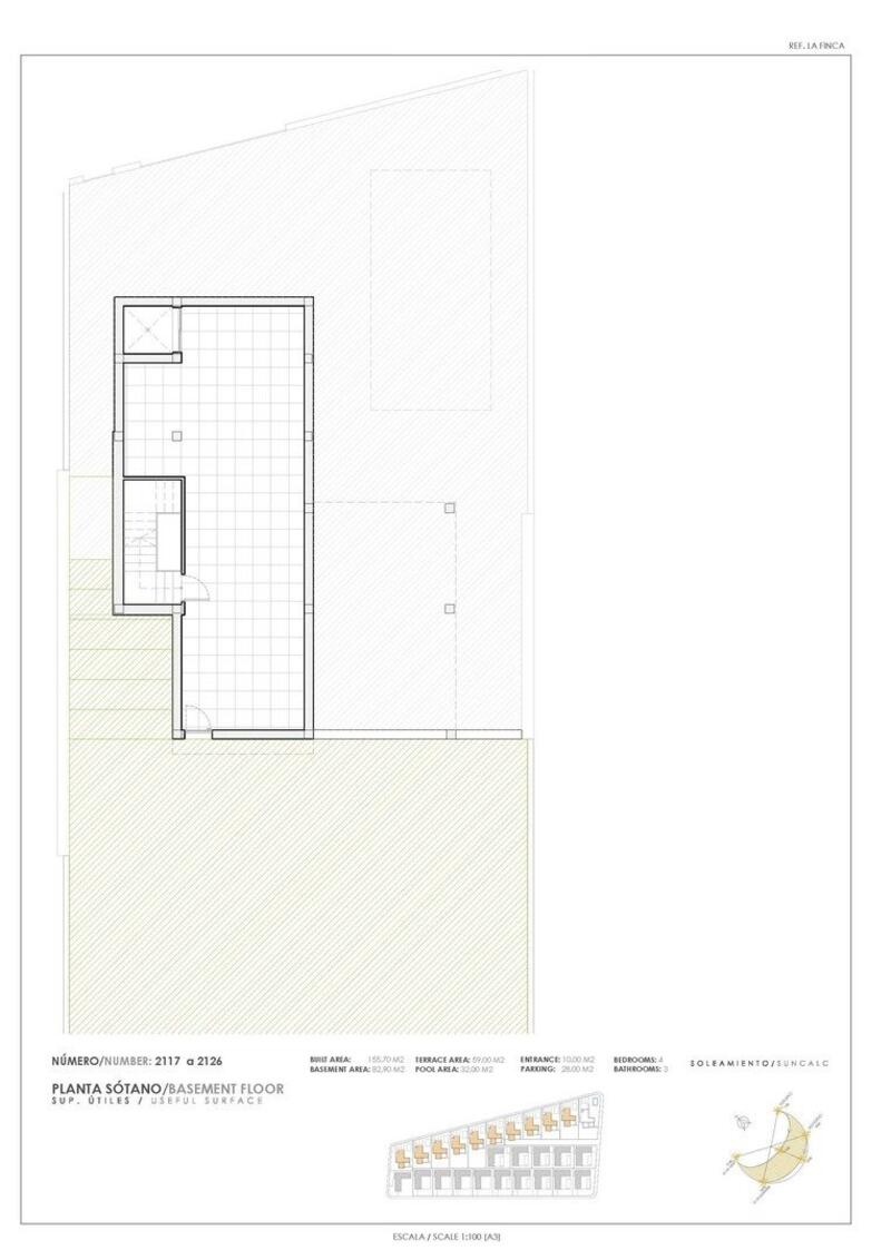
MODERN DESIGN VILLA WITH GOLF VIEWS Designer villa in one of the most exclusive locations on the Costa Blanca. With spectacular views over the Finca Golf Resort, this modern house with Mediterranean touches of 4 bedrooms and 3 bathrooms, takes you to a privileged corner where you can enjoy the good climate in its more than 150 square metres and its basement of more than 80m2. It stands out for the use of the best qualities as well as a large garden that allows us to enjoy absolute privacy and a dreamlike private swimming pool that will make every moment an unforgettable memory. Located on the La Finca golf course in Algorfa, 20 minutes from the wonderful beaches of Guardamar.
Egenskaper
- 4 sovrum
- 3 badrum
- 155m² Bygg storlek
- 420m² Tomtstorlek
- Simbassäng
EPC -betyg
| Energiklassningsskala |
|---|
| A |
| B |
| C |
| D |
| E |
| F |
| G |
Kostnadsfördelning
Standard betalningsform
Reservationsdeposition
3.000€
Återstoden av insättningen till 10%
64.900€
Slutbetalning på 90% vid slutförande
611.100€
Fastighetsköpskostnader
Fastighetspris
679.000€
Överföringsskatt 8%
54.320€
Notaravgifter (cirka)
600€
Matrikelavgifter (cirka)
600€
Juridiska avgifter (cirka)
1.500€
* Överföringsskatt baseras på försäljningsvärdet eller matrikelvärdet som är det högsta.
** Informationen ovan visas endast som en guide.
Amorteringskalkylator
Similar Properties
Spanska fastighetsnyheter och uppdateringar av Spain Property Portal.com
In Spain, two primary taxes are associated with property purchases: IVA (Value Added Tax) and ITP (Property Transfer Tax). IVA, typically applicable to new constructions, stands at 10% of the property's value. On the other hand, ITP, levied on resale properties, varies between regions but generally ranges from 6% to 10%.
Spain Property Portal is an online platform that has revolutionized the way people buy and sell real estate in Spain.
In Spain, mortgages, known as "hipotecas," are common, and the market has seen significant growth and evolution.























