Gör en förfrågan om den här egenskapen
Ref: EFML1727D
Fastighet som marknadsförs av España Dream Properties
Ditt namn:
E-postadress:
Telefon nr:
Genom att markera den här rutan kommer vi att vidarebefordra din fråga till upp till fem andra fastighetsmäklare som har liknande fastigheter som denna.
Förfrågningsinformation:
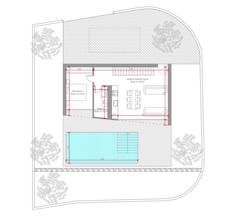
This villa is being built on a plot in the quiet neighbourhood of La Solana Gardens, within walking distance of the picturesque village of Alcalali. Alcalali is a small, authentic village located in the sunny valley called Valle de Pop, surrounded by majestic mountain ranges, yet close to the coast. The villa is spread over three floors. The ground floor consists of a living-dining room with an open kitchen, a double bedroom and a bathroom. The upper floor consists of two double bedrooms with a shared bathroom. In the semi-basement there is an 80 m² garage. The price also includes a swimming pool and a 30 m² terrace. Alcalalí is very centrally located, just 20 minutes from the beaches of Denia and Calpe. The charming coastal villages of Javea and Moraira are also only half an hour away. Other villages in the valley, such as Jalón, Parcent and Lliber, are just 5 minutes away. Alcalalí is perfect for walking and cycling among olive trees, orange trees, almond trees and vineyards. In addition, there are several beautiful walking routes in the surrounding mountain ranges.
Egenskaper
- 3 sovrum
- 2 badrum
- 133m² Bygg storlek
- 300m² Tomtstorlek
- Simbassäng
Kostnadsfördelning
Standard betalningsform
Reservationsdeposition
3.000€
Återstoden av insättningen till 10%
61.000€
Slutbetalning på 90% vid slutförande
576.000€
Fastighetsköpskostnader
Fastighetspris
640.000€
Överföringsskatt 8%
51.200€
Notaravgifter (cirka)
600€
Matrikelavgifter (cirka)
600€
Juridiska avgifter (cirka)
1.500€
* Överföringsskatt baseras på försäljningsvärdet eller matrikelvärdet som är det högsta.
** Informationen ovan visas endast som en guide.
Amorteringskalkylator
Similar Properties
Spanska fastighetsnyheter och uppdateringar av Spain Property Portal.com
In Spain, two primary taxes are associated with property purchases: IVA (Value Added Tax) and ITP (Property Transfer Tax). IVA, typically applicable to new constructions, stands at 10% of the property's value. On the other hand, ITP, levied on resale properties, varies between regions but generally ranges from 6% to 10%.
Spain Property Portal is an online platform that has revolutionized the way people buy and sell real estate in Spain.
In Spain, mortgages, known as "hipotecas," are common, and the market has seen significant growth and evolution.



















