Gör en förfrågan om den här egenskapen
Ref: CSPN-62428
Fastighet som marknadsförs av Complete Spanish Property
Ditt namn:
E-postadress:
Telefon nr:
Genom att markera den här rutan kommer vi att vidarebefordra din fråga till upp till fem andra fastighetsmäklare som har liknande fastigheter som denna.
Förfrågningsinformation:
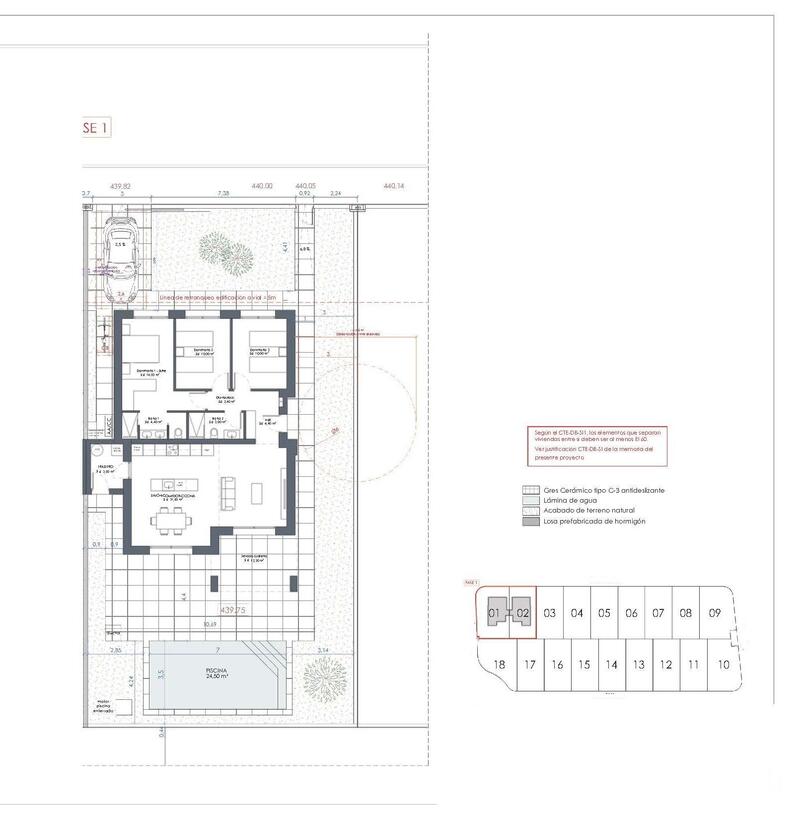
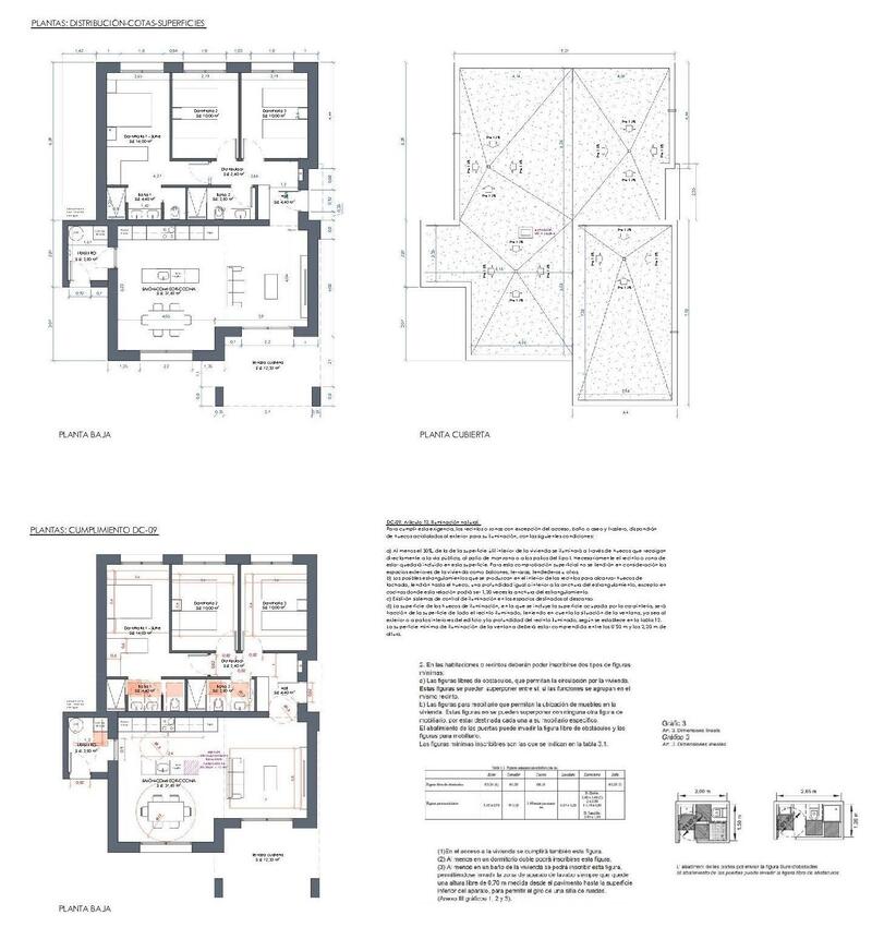
Modern Style Villas in La Romana, Alicante Exclusive New Build Homes in a Charming Spanish Village These Modern-style new build villas in La Romana are designed for those seeking peace, comfort, and the authentic Spanish lifestyle. Located on plots of 370 m² in a residential area on the outskirts of the village, the homes are just a short walk from the town center, where you can enjoy traditional restaurants, shops, and all daily services. Surrounded by vineyards, almond groves, and mountain landscapes, La Romana offers a unique rural setting while being only 30 minutes from the coast. Spacious Design with Modern Comfort Each villa offers 127 m² of built space distributed across 3 bedrooms and 2 bathrooms, including a master suite with ensuite bathroom. The open-plan living and dining area integrates seamlessly with a furnished kitchen and direct access to the terrace and private pool. Additional features include a storage room/laundry area and private parking within the plot. For those who want extra outdoor space, there is the option to add a rooftop solarium at an additional cost. Premium Features Included These villas are built with quality finishes and come fully equipped with: Private pool of 6 x 3.5 m Air conditioning with heat pump (installation and unit included) Modern kitchen with white cabinetry and granite countertops LED lighting throughout the home and on the porch Double glazing, white interior doors, and built-in wardrobes Delivery is scheduled 14 months from reservation, ensuring a brand-new, personalized home. Ideal Location in the Alicante Countryside La Romana is a traditional Spanish village in the interior of Alicante, known for its welcoming community and natural surroundings. Its location provides the perfect balance of tranquility and accessibility: Aspe – 8 km Elche – 18 km Alicante Airport – 35 km Beaches of the Costa Blanca – 30 km Golf Courses (Font del Llop & Alenda) – 20 km Alicante City – 32 km Your Mediterranean Lifestyle Awaits If you are looking for a peaceful environment surrounded by mountains, vineyards, and charming Spanish towns, yet close to the Mediterranean coast, these villas in La Romana are the perfect choice. Contact us today for more information and secure your new home in Alicante.
Egenskaper
- 3 sovrum
- 2 badrum
- 127m² Bygg storlek
- 371m² Tomtstorlek
- Simbassäng
EPC -betyg
| Energiklassningsskala |
|---|
| A |
| B |
| C |
| D |
| E |
| F |
| G |
Kostnadsfördelning
Standard betalningsform
Reservationsdeposition
3.000€
Återstoden av insättningen till 10%
28.500€
Slutbetalning på 90% vid slutförande
283.500€
Fastighetsköpskostnader
Fastighetspris
315.000€
Överföringsskatt 8%
25.200€
Notaravgifter (cirka)
600€
Matrikelavgifter (cirka)
600€
Juridiska avgifter (cirka)
1.500€
* Överföringsskatt baseras på försäljningsvärdet eller matrikelvärdet som är det högsta.
** Informationen ovan visas endast som en guide.
Amorteringskalkylator
Similar Properties
Spanska fastighetsnyheter och uppdateringar av Spain Property Portal.com
In Spain, two primary taxes are associated with property purchases: IVA (Value Added Tax) and ITP (Property Transfer Tax). IVA, typically applicable to new constructions, stands at 10% of the property's value. On the other hand, ITP, levied on resale properties, varies between regions but generally ranges from 6% to 10%.
Spain Property Portal is an online platform that has revolutionized the way people buy and sell real estate in Spain.
In Spain, mortgages, known as "hipotecas," are common, and the market has seen significant growth and evolution.











