Gör en förfrågan om den här egenskapen
Ref: CSPN-50338
Fastighet som marknadsförs av Complete Spanish Property
Ditt namn:
E-postadress:
Telefon nr:
Genom att markera den här rutan kommer vi att vidarebefordra din fråga till upp till fem andra fastighetsmäklare som har liknande fastigheter som denna.
Förfrågningsinformation:
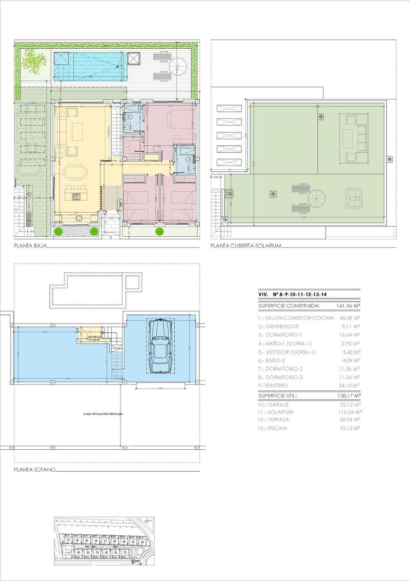
New Villas for Sale in Torrevieja – 2 km from the Sea
Discover these stunning new villas located in the sought-after area of Torrevieja, just 2 km from the Mediterranean coast. Offering the perfect blend of luxury, comfort, and practicality, these 3-bedroom, 2-bathroom homes are designed for those who seek a sophisticated lifestyle with all the benefits of coastal living.
Spacious Design and High-Quality Finishes
These one-story villas have been thoughtfully designed for maximum comfort and ease of living. With an open-plan layout, they provide ample space for relaxation and entertainment. The villas feature high-quality finishes including thermal break aluminum windows, Climalit double glazing, and pre-installation for ducted air conditioning. For added convenience, the homes include electric shutters, modern bathrooms with resin shower trays and built-in black faucets, and private parking in the underground garage with additional storage space.
Private Pool and Solarium with Stunning Views
Step outside to your private oasis, where you can enjoy the luxury of a private pool in your own garden. From the rooftop solarium, take in the breathtaking views of the La Mata Salt Lagoon and the surrounding area, and enjoy spectacular sunsets each evening. The property is situated in the highest part of Torrevieja, ensuring both privacy and impressive vistas.
Exclusive Community Amenities
The development offers several communal amenities, including landscaped garden areas, a calisthenics circuit, and a petanque area, perfect for both relaxation and recreation. Whether you're enjoying time alone or socializing with neighbors, this villa provides the perfect environment for both peaceful living and vibrant community interaction.
Prime Location in Torrevieja
These villas are surrounded by essential services and recreational options. The Alicante-Elche Airport is just 45 minutes by car (43 km), making international travel convenient. For shopping and dining, the Habaneras Shopping Center is only 3 km away, offering a variety of retail stores, restaurants, and entertainment options.
Experience the Mediterranean Lifestyle
Torrevieja, on the southern coast of Alicante, boasts over 300 days of sunshine per year and a pleasant average annual temperature of 20°C. The city is renowned for its beautiful beaches, vibrant promenades, and delicious Mediterranean cuisine, making it the perfect place for both relaxation and adventure. With its family-friendly activities and rich cultural heritage, Torrevieja promises a fulfilling lifestyle year-round.
Your Dream Home Awaits
Don't miss the chance to own a luxury villa in one of Spain's most desirable coastal cities. Whether you're looking for a permanent residence or a holiday retreat, this exclusive development offers the ideal setting to experience the best of Mediterranean living. Schedule a viewing today and take the first step toward making your dream home a reality!
Discover these stunning new villas located in the sought-after area of Torrevieja, just 2 km from the Mediterranean coast. Offering the perfect blend of luxury, comfort, and practicality, these 3-bedroom, 2-bathroom homes are designed for those who seek a sophisticated lifestyle with all the benefits of coastal living.
Spacious Design and High-Quality Finishes
These one-story villas have been thoughtfully designed for maximum comfort and ease of living. With an open-plan layout, they provide ample space for relaxation and entertainment. The villas feature high-quality finishes including thermal break aluminum windows, Climalit double glazing, and pre-installation for ducted air conditioning. For added convenience, the homes include electric shutters, modern bathrooms with resin shower trays and built-in black faucets, and private parking in the underground garage with additional storage space.
Private Pool and Solarium with Stunning Views
Step outside to your private oasis, where you can enjoy the luxury of a private pool in your own garden. From the rooftop solarium, take in the breathtaking views of the La Mata Salt Lagoon and the surrounding area, and enjoy spectacular sunsets each evening. The property is situated in the highest part of Torrevieja, ensuring both privacy and impressive vistas.
Exclusive Community Amenities
The development offers several communal amenities, including landscaped garden areas, a calisthenics circuit, and a petanque area, perfect for both relaxation and recreation. Whether you're enjoying time alone or socializing with neighbors, this villa provides the perfect environment for both peaceful living and vibrant community interaction.
Prime Location in Torrevieja
These villas are surrounded by essential services and recreational options. The Alicante-Elche Airport is just 45 minutes by car (43 km), making international travel convenient. For shopping and dining, the Habaneras Shopping Center is only 3 km away, offering a variety of retail stores, restaurants, and entertainment options.
Experience the Mediterranean Lifestyle
Torrevieja, on the southern coast of Alicante, boasts over 300 days of sunshine per year and a pleasant average annual temperature of 20°C. The city is renowned for its beautiful beaches, vibrant promenades, and delicious Mediterranean cuisine, making it the perfect place for both relaxation and adventure. With its family-friendly activities and rich cultural heritage, Torrevieja promises a fulfilling lifestyle year-round.
Your Dream Home Awaits
Don't miss the chance to own a luxury villa in one of Spain's most desirable coastal cities. Whether you're looking for a permanent residence or a holiday retreat, this exclusive development offers the ideal setting to experience the best of Mediterranean living. Schedule a viewing today and take the first step toward making your dream home a reality!
Egenskaper
- 3 sovrum
- 2 badrum
- 141m² Bygg storlek
- 247m² Tomtstorlek
- Simbassäng
EPC -betyg
| Energiklassningsskala |
|---|
| A |
| B |
| C |
| D |
| E |
| F |
| G |
Kostnadsfördelning
Standard betalningsform
Reservationsdeposition
3.000€
Återstoden av insättningen till 10%
56.500€
Slutbetalning på 90% vid slutförande
535.500€
Fastighetsköpskostnader
Fastighetspris
595.000€
Överföringsskatt 8%
47.600€
Notaravgifter (cirka)
600€
Matrikelavgifter (cirka)
600€
Juridiska avgifter (cirka)
1.500€
* Överföringsskatt baseras på försäljningsvärdet eller matrikelvärdet som är det högsta.
** Informationen ovan visas endast som en guide.
Amorteringskalkylator
Similar Properties
Spanska fastighetsnyheter och uppdateringar av Spain Property Portal.com
In Spain, two primary taxes are associated with property purchases: IVA (Value Added Tax) and ITP (Property Transfer Tax). IVA, typically applicable to new constructions, stands at 10% of the property's value. On the other hand, ITP, levied on resale properties, varies between regions but generally ranges from 6% to 10%.
Spain Property Portal is an online platform that has revolutionized the way people buy and sell real estate in Spain.
In Spain, mortgages, known as "hipotecas," are common, and the market has seen significant growth and evolution.














