Gör en förfrågan om den här egenskapen
Ref: AG19MLSC9992463
Fastighet som marknadsförs av Spain Property Shop S.L
Ditt namn:
E-postadress:
Telefon nr:
Genom att markera den här rutan kommer vi att vidarebefordra din fråga till upp till fem andra fastighetsmäklare som har liknande fastigheter som denna.
Förfrågningsinformation:
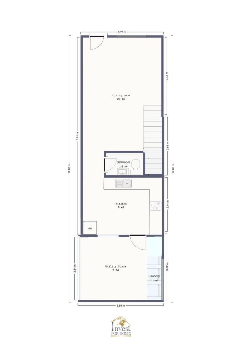
Completely renovated and ready to move into, this home is located in the Arco Mediterráneo Urbanization, a private residential area with a communal pool. Situated in a very convenient area, just minutes from the Habaneras Shopping Center, Quirón Hospital, the municipal sports center, and with easy access to the N-332 highway.La Mata beach is just a few minutes away by car, and Alicante Airport is approximately 35–40 minutes away.Main features:80 m² built houseLarge 20 m² living room with air conditioningSouthwest facing, very bright2 bedrooms (the master bedroom with air conditioning and custom-made dressing room)1 full and modern bathroom + 1 toilet on the ground floor, both renovatedNew kitchen, installed a year agoCeramic flooring with vinyl covering + recent paint throughout the homeCovered rear terrace, ideal as a laundry area or storage roomPrivate solarium perfect for enjoying the sun all year roundGated community with communal poolBuilt in 2001 and completely renovatedIdeal as a permanent home, vacation home, or rental investment. Ready to enjoy from day one.
Egenskaper
- 2 sovrum
- 1 badrum
- 80m² Bygg storlek
- Utility room
- Shutters
- Walk-in closet
- Washer
- Dryer
- Roof garden
- Fully furnished
Kostnadsfördelning
Standard betalningsform
Reservationsdeposition
3.000€
Återstoden av insättningen till 10%
17.500€
Slutbetalning på 90% vid slutförande
184.500€
Fastighetsköpskostnader
Fastighetspris
205.000€
Överföringsskatt 8%
16.400€
Notaravgifter (cirka)
600€
Matrikelavgifter (cirka)
600€
Juridiska avgifter (cirka)
1.500€
* Överföringsskatt baseras på försäljningsvärdet eller matrikelvärdet som är det högsta.
** Informationen ovan visas endast som en guide.
Amorteringskalkylator
Similar Properties
Spanska fastighetsnyheter och uppdateringar av Spain Property Portal.com
In Spain, two primary taxes are associated with property purchases: IVA (Value Added Tax) and ITP (Property Transfer Tax). IVA, typically applicable to new constructions, stands at 10% of the property's value. On the other hand, ITP, levied on resale properties, varies between regions but generally ranges from 6% to 10%.
Spain Property Portal is an online platform that has revolutionized the way people buy and sell real estate in Spain.
In Spain, mortgages, known as "hipotecas," are common, and the market has seen significant growth and evolution.






















