Gör en förfrågan om den här egenskapen
Ref: N6650
Fastighet som marknadsförs av 5 Real Estate
Ditt namn:
E-postadress:
Telefon nr:
Genom att markera den här rutan kommer vi att vidarebefordra din fråga till upp till fem andra fastighetsmäklare som har liknande fastigheter som denna.
Förfrågningsinformation:
HOUSING IN FIRST LINE OF SEA
in Punta Prima, Torrevieja, with exclusive views of the sea and the beach.
Apartments with 2 and 3 bedrooms and 2 bathrooms, all of them with large terraces and magnificent views of the Mediterranean Sea and the beach of Punta Prima.
The homes have been designed with comfort and convenience in mind, with excellent qualities, thus allowing you to fully enjoy the common areas of the residential area.
All homes are delivered with an underground parking space and storage room.
The residential has large garden areas and complete facilities from which you can enjoy the sun and sea views; These common areas are equipped with 3 swimming pools, one of which is partially heated. Children can enjoy their own children's pool, as well as a children's play area. From the urbanization, there is a direct access to the promenade.
Punta Prima, located just 5 km from Torrevieja, is characterized by good communication and health infrastructures, the proximity to Alicante airport, and the number of services open throughout the year.
Just 10 km away we can find the golf courses of Villamartín, Campoamor, Las Ramblas, Las Colinas and Lo Romero, as well as the commercial centers of La Zenia and Habaneras.
in Punta Prima, Torrevieja, with exclusive views of the sea and the beach.
Apartments with 2 and 3 bedrooms and 2 bathrooms, all of them with large terraces and magnificent views of the Mediterranean Sea and the beach of Punta Prima.
The homes have been designed with comfort and convenience in mind, with excellent qualities, thus allowing you to fully enjoy the common areas of the residential area.
All homes are delivered with an underground parking space and storage room.
The residential has large garden areas and complete facilities from which you can enjoy the sun and sea views; These common areas are equipped with 3 swimming pools, one of which is partially heated. Children can enjoy their own children's pool, as well as a children's play area. From the urbanization, there is a direct access to the promenade.
Punta Prima, located just 5 km from Torrevieja, is characterized by good communication and health infrastructures, the proximity to Alicante airport, and the number of services open throughout the year.
Just 10 km away we can find the golf courses of Villamartín, Campoamor, Las Ramblas, Las Colinas and Lo Romero, as well as the commercial centers of La Zenia and Habaneras.
Egenskaper
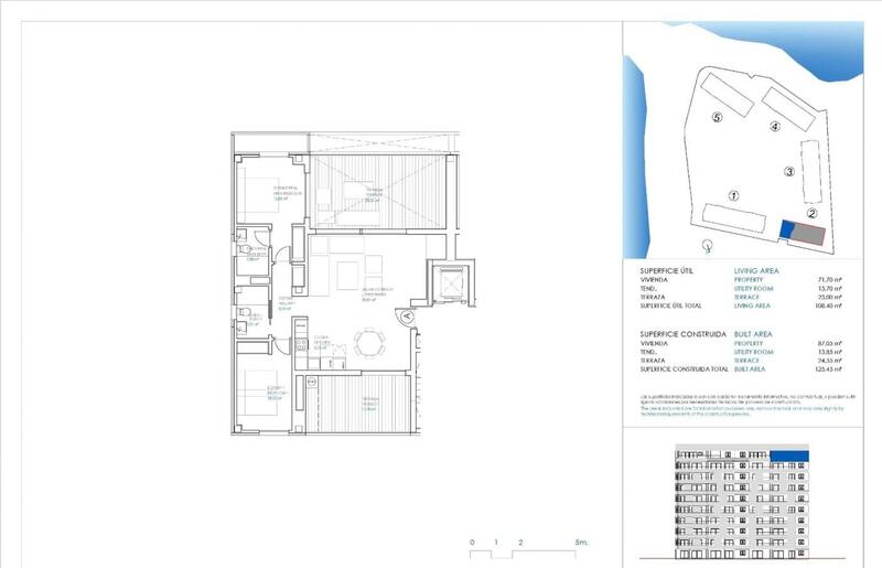
- 2 sovrum
- 2 badrum
- 85m² Bygg storlek
Kostnadsfördelning
Standard betalningsform
Reservationsdeposition
3.000€
Återstoden av insättningen till 10%
46.000€
Slutbetalning på 90% vid slutförande
441.000€
Fastighetsköpskostnader
Fastighetspris
490.000€
Överföringsskatt 8%
39.200€
Notaravgifter (cirka)
600€
Matrikelavgifter (cirka)
600€
Juridiska avgifter (cirka)
1.500€
* Överföringsskatt baseras på försäljningsvärdet eller matrikelvärdet som är det högsta.
** Informationen ovan visas endast som en guide.
Amorteringskalkylator
Similar Properties
Spanska fastighetsnyheter och uppdateringar av Spain Property Portal.com
In Spain, two primary taxes are associated with property purchases: IVA (Value Added Tax) and ITP (Property Transfer Tax). IVA, typically applicable to new constructions, stands at 10% of the property's value. On the other hand, ITP, levied on resale properties, varies between regions but generally ranges from 6% to 10%.
Spain Property Portal is an online platform that has revolutionized the way people buy and sell real estate in Spain.
In Spain, mortgages, known as "hipotecas," are common, and the market has seen significant growth and evolution.




















