Gör en förfrågan om den här egenskapen
Ref: SKNBG-91079
Fastighet som marknadsförs av Stratus International Properties
Ditt namn:
E-postadress:
Telefon nr:
Genom att markera den här rutan kommer vi att vidarebefordra din fråga till upp till fem andra fastighetsmäklare som har liknande fastigheter som denna.
Förfrågningsinformation:
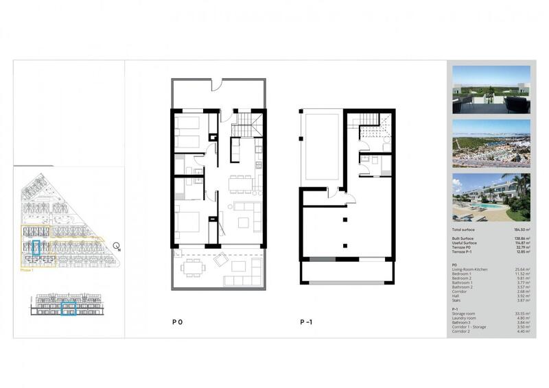
NEW BUILD RESIDENCIAL IN LOS BALCONES, TORREVIEJA New Build residential complex of semi-detached villas and bungalows located in Los Balcones with the views to the pink lake. New Build top floor bungalows has 2 bedrooms, 2 bathrooms, open plan kitchen with spacious living room, fitted wardrobes, terrace, private solarium and underground parking space. New exclusive residential with big communal areas; gardens, garden-gym, playground, 2 big communal swimming pools - one of them for adults, and the other one for children. Los Balcones is a small town located near Torrevieja south. Torrevieja is a Spanish town in the province of Alicante, on the Costa Blanca. It is known for its typically Mediterranean climate and coastline. It has boardwalks with resorts along its sandy beaches. The small Museum of the Sea and Salt houses exhibitions on the fishing and salt history of the city. In the interior, the Lagunas de La Mata-Torrevieja Natural Park has trails and two salty lagoons, one pink and the other green. Alicante airport located 40 minutes away and Murcia airport about 1 hour away.
Egenskaper
- 2 sovrum
- 2 badrum
- 75m² Bygg storlek
- Communal Pool
- Gated
- Solarium: Yes
- Number of Parking Spaces: 1
- Near Schools
- Near Commercial Center
- Near Bus Route
- Location: Coastal, Urbanisation
- Air Conditioning: Pre-Installed
- Beach: 4000 Meters
- Double Bedrooms: 2
- Near Trees
- Useable Build Space: 65 Msq.
- Terrace: 91 Msq.
Kostnadsfördelning
Standard betalningsform
Reservationsdeposition
3.000€
Återstoden av insättningen till 10%
24.700€
Slutbetalning på 90% vid slutförande
249.300€
Fastighetsköpskostnader
Fastighetspris
277.000€
Överföringsskatt 8%
22.160€
Notaravgifter (cirka)
600€
Matrikelavgifter (cirka)
600€
Juridiska avgifter (cirka)
1.500€
* Överföringsskatt baseras på försäljningsvärdet eller matrikelvärdet som är det högsta.
** Informationen ovan visas endast som en guide.
Amorteringskalkylator
Similar Properties
Spanska fastighetsnyheter och uppdateringar av Spain Property Portal.com
In Spain, two primary taxes are associated with property purchases: IVA (Value Added Tax) and ITP (Property Transfer Tax). IVA, typically applicable to new constructions, stands at 10% of the property's value. On the other hand, ITP, levied on resale properties, varies between regions but generally ranges from 6% to 10%.
Spain Property Portal is an online platform that has revolutionized the way people buy and sell real estate in Spain.
In Spain, mortgages, known as "hipotecas," are common, and the market has seen significant growth and evolution.























