Сделать запрос об этой собственности
New Build modern townhouses and semi-detached villas with several terraces and solarium, totally fenced, with parking area for vehicles and private swimming pool in Polop.
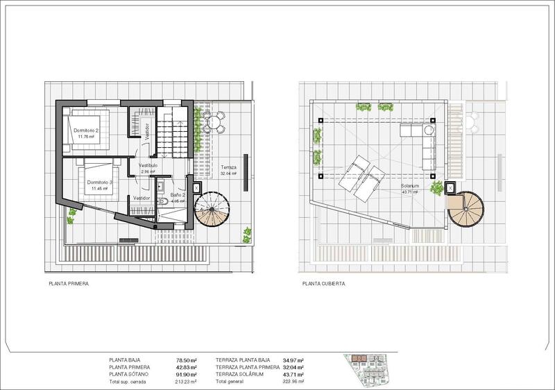
Modern properties with 3 spacious bedrooms with built-in wardrobes (the main one on the ground floor, with bathroom and dressing room en suite), 2 spacious bathrooms, large living-dining room with open kitchen, spacious terraces, large semi-basement with windows.
Kitchen equipped with base units and silestone worktops, with ceramic hob, oven, extractor hood, fridge, washing machine, dishwasher, and aerothermal heater.
First qualities: interior carpentry in wood and white lacquered laminates, exterior carpentry in anthracite grey pvc with double glazing and thermal bridge break, and automatic blinds with aluminium slats, ceramic floors of 1st quality non-slip, smooth walls, security door with 5 anchor points, large built-in wardrobes.
The city of Polop offers an amazing range of options for lovers of the great outdoors surrounded by nature and unparalleled peace.
The municipality enjoys a Mediterranean climate with cooler temperatures and cleaner air, located less than 10 kilometres from Benidorm, Altea and their beaches.
It stretches from the rivers Guadalest and Algar to the town of Villajoyosa, including the beaches of Albir and Benidorm; inland it borders Callosa and Guadalest.
Характеристики недвижимости
- 3 спальни
- 2 ванные комнаты
- 213m² Размер сборки
- 330m² Размер участка
- Бассейн
- Double Bedrooms: 3
- Under-Build / Basement
- Storage / Trastero
- Near Schools
- Location: Coastal
- Air Conditioning: Pre-Installed
- Useable Build Space: 120 Msq.
- Gated
- Beach: 10000 Meters
- Number of Parking Spaces: 1
- Parking - Space
- Solarium: Yes
- Terrace: 109 Msq.
- garden
- Private pool
Разбивка затрат
* Налог на передачу основан на продажной или кадастровой стоимости, в зависимости от того, что больше.
** Приведенная выше информация отображается только для справки.
Калькулятор ипотеки
Результат ипотеки
* Приведенная выше информация предоставлена MHI Group и предназначена только для справки. Индивидуальные обстоятельства могут изменить ставку, которую мы предлагаем по ипотеке. Пожалуйста, нажмите на ссылку ниже, чтобы получить персональное ценовое предложение.
Similar Properties
Новости и обновления испанской недвижимости от Spain Property Portal.com
In Spain, two primary taxes are associated with property purchases: IVA (Value Added Tax) and ITP (Property Transfer Tax). IVA, typically applicable to new constructions, stands at 10% of the property's value. On the other hand, ITP, levied on resale properties, varies between regions but generally ranges from 6% to 10%.
Spain Property Portal is an online platform that has revolutionized the way people buy and sell real estate in Spain.
In Spain, mortgages, known as "hipotecas," are common, and the market has seen significant growth and evolution.























