Сделать запрос об этой собственности
Апартаменты в престижном районе
Откройте для себя эксклюзивную возможность стать владельцем отремонтированной квартиры в Ломас-де-Кабо-Роиг, востребованном районе Ориуэла-Коста. Этот жилой комплекс, первоначально построенный в 2008 году, находится на стадии обновления некоторых объектов и будет сдан в июне 2025 года. Выставочный дом доступен для просмотра, что позволит вам воочию убедиться в качестве отделки.
Варианты недвижимости на любой вкус
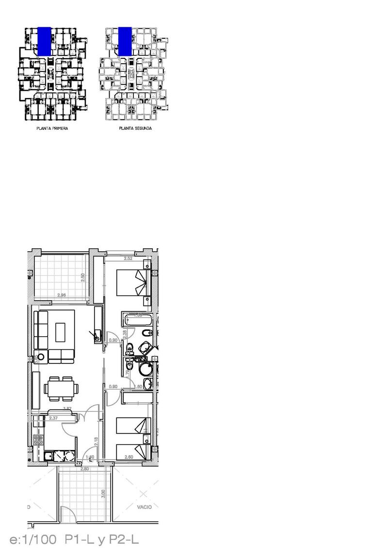
В этом комплексе предлагается 27 отремонтированных квартир с различными планировками:
Квартиры с 1 и 2 спальнями, идеально подходящие для отдыха или инвестиций.
Квартиры на первом этаже с частными садами, идеально подходящими для жизни на свежем воздухе.
Квартиры на среднем этаже с просторными террасами, идеально подходящими для наслаждения средиземноморским климатом.
Пентхаусы с частными соляриями, открывающими вид и обеспечивающими максимальное уединение.
Каждый дом поставляется с душевыми экранами в ванных комнатах и полностью оборудованными кухнями с бытовой техникой, что гарантирует покупателям решение «под ключ».
Эксклюзивные удобства сообщества
Жилой комплекс создан для комфорта и релаксации:
Общий плавательный бассейн, окруженный красивыми ландшафтными садами.
Лифт для легкого доступа на все этажи.
Подземные парковочные места, которые можно приобрести за дополнительную плату.
Непревзойденное расположение в Ориуэла Коста
Ломас-де-Кабо-Ройг - это престижный жилой район, расположенный всего в 2 км от побережья Кабо-Ройг, где находятся одни из самых красивых пляжей Ориуэлы Коста. Район имеет хорошее транспортное сообщение и предлагает широкий спектр услуг, включая магазины, рестораны, супермаркеты и торговые центры.
Расстояния до основных достопримечательностей:
Пляжи Кабо Роиг и Кампоамор - в 5 минутах езды.
Торговый центр Zenia Boulevard - 5 км.
Поле для гольфа Villamartín - 4 км.
Аэропорт Аликанте - 30 минут на машине.
Аэропорт Мурсия-Корвера - 1 час на машине.
Разумная инвестиция в Коста-Бланке
Благодаря своему отличному расположению, полностью отремонтированным квартирам и первоклассным удобствам, этот комплекс является идеальной возможностью для инвестиций, отдыха или постоянного проживания. Не упустите этот уникальный шанс стать владельцем дома в одном из самых престижных районов Коста-Бланки по непревзойденной цене.
Свяжитесь с нами сегодня, чтобы получить дополнительную информацию или запланировать визит!
Характеристики недвижимости
- 2 спальни
- 2 ванные комнаты
- 69m² Размер сборки
- Бассейн
Рейтинг EPC
| Шкала оценки энергопотребления |
|---|
| A |
| B |
| C |
| D |
| E |
| F |
| G |
Разбивка затрат
* Налог на передачу основан на продажной или кадастровой стоимости, в зависимости от того, что больше.
** Приведенная выше информация отображается только для справки.
Калькулятор ипотеки
Результат ипотеки
* Приведенная выше информация предоставлена MHI Group и предназначена только для справки. Индивидуальные обстоятельства могут изменить ставку, которую мы предлагаем по ипотеке. Пожалуйста, нажмите на ссылку ниже, чтобы получить персональное ценовое предложение.
Similar Properties
Новости и обновления испанской недвижимости от Spain Property Portal.com
In Spain, two primary taxes are associated with property purchases: IVA (Value Added Tax) and ITP (Property Transfer Tax). IVA, typically applicable to new constructions, stands at 10% of the property's value. On the other hand, ITP, levied on resale properties, varies between regions but generally ranges from 6% to 10%.
Spain Property Portal is an online platform that has revolutionized the way people buy and sell real estate in Spain.
In Spain, mortgages, known as "hipotecas," are common, and the market has seen significant growth and evolution.


















