Сделать запрос об этой собственности

Fantastic location, with the best commercial offer of the Costa del Sol 5 minutes away, and only 2 Km from the beach Quick access to the main means of communication: motorway and train station (2 Km), and airport (25 Km) You can enjoy a real quality of life, with a wide variety of golf courses, 12 Km of coastline, sun, nature, and the gastronomy of the area, from its international restaurants to its cosy local cuisine
Mijas perfectly combines the tradition of its cobbled streets of whitewashed houses and patios with their pots of colourful flowers, with modernity and the best leisure offer of the Costa del Sol It boasts a privileged location between the sea and the mountains, making it one of the most attractive tourist destinations in the province
Характеристики недвижимости
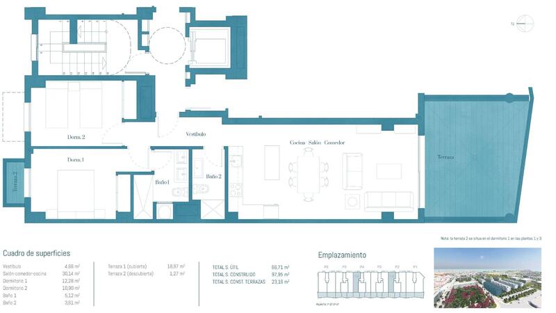
- 2 спальни
- 2 ванные комнаты
- 97m² Размер сборки
- Single Bedrooms: 3
- Communal Pool
- Gym
Разбивка затрат
* Налог на передачу основан на продажной или кадастровой стоимости, в зависимости от того, что больше.
** Приведенная выше информация отображается только для справки.
Калькулятор ипотеки
Результат ипотеки
* Приведенная выше информация предоставлена MHI Group и предназначена только для справки. Индивидуальные обстоятельства могут изменить ставку, которую мы предлагаем по ипотеке. Пожалуйста, нажмите на ссылку ниже, чтобы получить персональное ценовое предложение.
Similar Properties
Новости и обновления испанской недвижимости от Spain Property Portal.com
In Spain, two primary taxes are associated with property purchases: IVA (Value Added Tax) and ITP (Property Transfer Tax). IVA, typically applicable to new constructions, stands at 10% of the property's value. On the other hand, ITP, levied on resale properties, varies between regions but generally ranges from 6% to 10%.
Spain Property Portal is an online platform that has revolutionized the way people buy and sell real estate in Spain.
In Spain, mortgages, known as "hipotecas," are common, and the market has seen significant growth and evolution.