Сделать запрос об этой собственности
Do you want to build the villa of your dreams, to enjoy with friends and family or to relax, under the Mediterranean sun and a stone's throw from beautiful beaches...?
Build your own detached villa in a quiet residential area just 2 kilometers from the beautiful beaches of Vera.
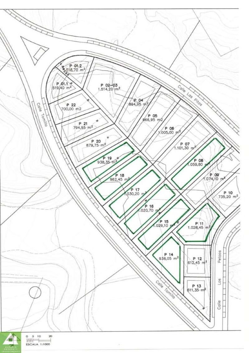
RESIDENCIAL ALMA VILLAS PLOTS is a residential project of 22 plots with a buildable area of 0.51 m², with all connections for electricity, water, sewage, fiber optic for internet, etc. Large plots to fully enjoy your home, with the guarantee of an ideal incidence of light given the orientation of the site.
Unique and exclusive plots for their location, orientation and at an incredible price. Sales price: € 110/m2 plot.
Plots available:
8 - € 122,000.00
11 - € 119,000.00
14 - €109,000.00
15 - € 119,000.00
16 - € 118,000.00
17 - € 119,000.00
18 - € 112,000.00
19 - € 109,000.00
Fulfill your dream of having your villa on the Mediterranean coast.. .Enjoy the summer or our winters with incredible temperatures or just come and live here permanently! RESIDENCIAL ALMA VILLAS PLOTS is located in Vera Playa, in a residential and very quiet area, but at the same time with all amenities just a few minutes walking, cycling or by car.
Характеристики недвижимости
- 0 спальни
- 0 ванные комнаты
- 479m² Размер сборки
Разбивка затрат
* Налог на передачу основан на продажной или кадастровой стоимости, в зависимости от того, что больше.
** Приведенная выше информация отображается только для справки.
Калькулятор ипотеки
Результат ипотеки
* Приведенная выше информация предоставлена MHI Group и предназначена только для справки. Индивидуальные обстоятельства могут изменить ставку, которую мы предлагаем по ипотеке. Пожалуйста, нажмите на ссылку ниже, чтобы получить персональное ценовое предложение.
Similar Properties
Новости и обновления испанской недвижимости от Spain Property Portal.com
In Spain, two primary taxes are associated with property purchases: IVA (Value Added Tax) and ITP (Property Transfer Tax). IVA, typically applicable to new constructions, stands at 10% of the property's value. On the other hand, ITP, levied on resale properties, varies between regions but generally ranges from 6% to 10%.
Spain Property Portal is an online platform that has revolutionized the way people buy and sell real estate in Spain.
In Spain, mortgages, known as "hipotecas," are common, and the market has seen significant growth and evolution.








