Send en forespørsel om denne eiendommen
Ref: CSPN-25459
Eiendom som markedsføres av Complete Spanish Property
Navnet ditt:
Epostadresse:
Telefon nr:
Ved å merke av i denne boksen, vil vi videreformidle søket til opptil fem andre eiendomsmeglere som har lignende eiendommer som dette.
Forespørsel detaljer:
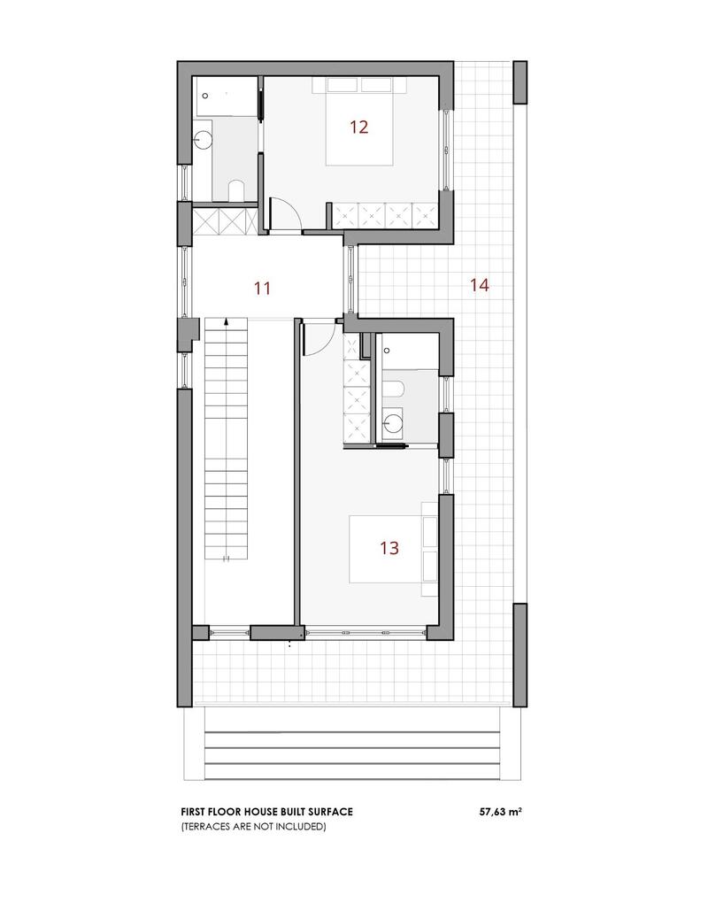
NEW BUILD VILLAS IN FINESTRAT New Build Modern villas in Finestrat. Villas with3 bedrooms and 3 bathrooms, open plan kitchen with lounge area, terrace with magnificent views over Benidorm, private garden with swimming pool and parking space. It is conceived as a fully walkable space with interior and exterior pathways that provide independent access to each floor. This design offers various perspectives of the architectural complex and its surroundings, with the sea and Sierra Cortina serving as a picturesque backdrop. The main entrance to the villa is located at the lower part of the plot, featuring ample parking for two vehicles. A water feature with lounge chairs introduces you to the ground floor, characterized by wide walls adorned with masonry. Extending seamlessly from the living room is a terrace, made possible by a large folding window. Wooden shutters on masonry walls provide a partially covered outdoor area for added comfort. The pool, with its aquamarine hues and gresite lining, sits adjacent to a pavement area crafted from non-slip porcelain tile with a wood-like appearance. This space also includes a barbecue area that can be customized to suit the user’s needs, with access from a paved zone through the natural terrain. Finestrat located in the Marina Baixa region of the Costa Blanca, close to neighbouring Benidorm and about 40 kilometres from the city of Alicante and the international airport. The village is situated on the mountainside of Puig Campana and offers beautiful views of the mountains, the coast and the Mediterranean Sea. Benidorm is just a five-minute drive from the properties and offers all the services you would need including shops, bars, restaurants, supermarkets, banks, pharmacies and several private international schools.
Egenskaper
- 3 soverom
- 3 bad
- 198m² Bygg størrelse
- 564m² Tomtestørrelse
- Svømmebasseng
EPC -vurdering
| Energivurderingsskala |
|---|
| A |
| B |
| C |
| D |
| E |
| F |
| G |
Kostnadssammenbrudd
Standard betalingsform
Reservasjon depositum
3.000€
Resten av innskuddet til 10%
73.000€
Sluttbetaling på 90% ved ferdigstillelse
684.000€
Eiendomskjøpskostnader
Eiendomspris
760.000€
Overføringsavgift 8%
60.800€
Notariusavgifter (ca.)
600€
Tinglysningsavgifter (ca.)
600€
Advokatkostnader (ca.)
1.500€
* Overføringsavgift er basert på salgsverdien eller matrikkelen som er høyest.
** Informasjonen ovenfor vises bare som en veiledning.
Similar Properties
Spanske eiendomsnyheter og oppdateringer fra Spain Property Portal.com
In Spain, two primary taxes are associated with property purchases: IVA (Value Added Tax) and ITP (Property Transfer Tax). IVA, typically applicable to new constructions, stands at 10% of the property's value. On the other hand, ITP, levied on resale properties, varies between regions but generally ranges from 6% to 10%.
Spain Property Portal is an online platform that has revolutionized the way people buy and sell real estate in Spain.
In Spain, mortgages, known as "hipotecas," are common, and the market has seen significant growth and evolution.
















