Send en forespørsel om denne eiendommen
Ref: CSPN-70927
Eiendom som markedsføres av Complete Spanish Property
Navnet ditt:
Epostadresse:
Telefon nr:
Ved å merke av i denne boksen, vil vi videreformidle søket til opptil fem andre eiendomsmeglere som har lignende eiendommer som dette.
Forespørsel detaljer:
NEW BUILD VILLAS IN ALGORFA
New build residential complex with beautiful villas in Algorfa.
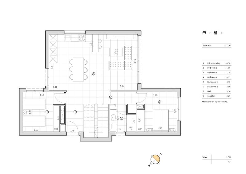
Villas build over 2 floors, has 3 bedrooms, 2 bathrooms, open plan kitchen with living area, where are large windows with direct access to the terrace and the pool.
It has a parking space on the plot.
Algorfa has an infrastructure of high quality services that allows you to live comfortably.
Close the wonderful beaches of Guardamar and Torrevieja where you can enjoy its warm waters and sunbathe for more than three hundred days a year.
In addition, in these tourist towns you will find shopping censers, restaurants and entertainment venues.
Alicante airport is 40 minutes drive away & Murcia airport is 55 minutes drive away.
New build residential complex with beautiful villas in Algorfa.
Villas build over 2 floors, has 3 bedrooms, 2 bathrooms, open plan kitchen with living area, where are large windows with direct access to the terrace and the pool.
It has a parking space on the plot.
Algorfa has an infrastructure of high quality services that allows you to live comfortably.
Close the wonderful beaches of Guardamar and Torrevieja where you can enjoy its warm waters and sunbathe for more than three hundred days a year.
In addition, in these tourist towns you will find shopping censers, restaurants and entertainment venues.
Alicante airport is 40 minutes drive away & Murcia airport is 55 minutes drive away.
Egenskaper
- 3 soverom
- 2 bad
- 131m² Bygg størrelse
- 308m² Tomtestørrelse
- Svømmebasseng
EPC -vurdering
| Energivurderingsskala |
|---|
| A |
| B |
| C |
| D |
| E |
| F |
| G |
Kostnadssammenbrudd
Standard betalingsform
Reservasjon depositum
3.000€
Resten av innskuddet til 10%
50.500€
Sluttbetaling på 90% ved ferdigstillelse
481.500€
Eiendomskjøpskostnader
Eiendomspris
535.000€
Overføringsavgift 8%
42.800€
Notariusavgifter (ca.)
600€
Tinglysningsavgifter (ca.)
600€
Advokatkostnader (ca.)
1.500€
* Overføringsavgift er basert på salgsverdien eller matrikkelen som er høyest.
** Informasjonen ovenfor vises bare som en veiledning.
Similar Properties
Spanske eiendomsnyheter og oppdateringer fra Spain Property Portal.com
In Spain, two primary taxes are associated with property purchases: IVA (Value Added Tax) and ITP (Property Transfer Tax). IVA, typically applicable to new constructions, stands at 10% of the property's value. On the other hand, ITP, levied on resale properties, varies between regions but generally ranges from 6% to 10%.
Spain Property Portal is an online platform that has revolutionized the way people buy and sell real estate in Spain.
In Spain, mortgages, known as "hipotecas," are common, and the market has seen significant growth and evolution.























