Stel een vraag over deze woning
Exclusief mediterraan wonen in JaveaOntdek deze prachtige moderne villa in een van de meest gewilde en rustige wijken van Javea, op slechts 800 meter van de zee. Deze woning ligt verscholen tussen pijnbomen en dicht bij de beroemde Cala de la Barraca en Cala del Portixol, en biedt een bevoorrechte levensstijl, omgeven door natuur en de schoonheid van de kust. Javea, gelegen aan de Costa Blanca tussen Alicante en Valencia, staat bekend om zijn kristalheldere water, charmante oude binnenstad en het milde klimaat het hele jaar door, waardoor het een van de meest gewilde bestemmingen in het Middellandse Zeegebied is.
Elegant ontwerp en lichte open ruimtesDeze villa is ontworpen met het oog op comfort en stijl en heeft een moderne architectuur met zachte lijnen, grote ramen en een vloeiende integratie tussen binnen en buiten. Natuurlijk licht baadt elke hoek en creëert een warme en uitnodigende sfeer die ideaal is om in te wonen en gasten te ontvangen.
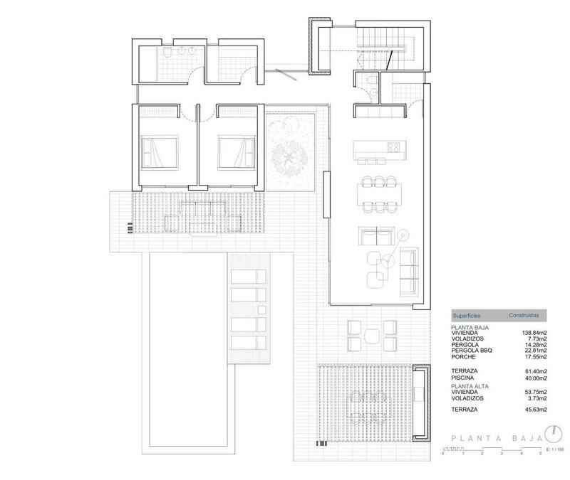
De villa is verdeeld over twee verdiepingen en omvatOpen woon- en eetkamer met naadloze toegang tot terrassen en zwembadVolledig ingerichte open keuken3 slaapkamers en 2 badkamers plus 1 gastentoiletWas- en bijkeukenPrivé-tuin, terrassen en zwembad met zomerkeuken
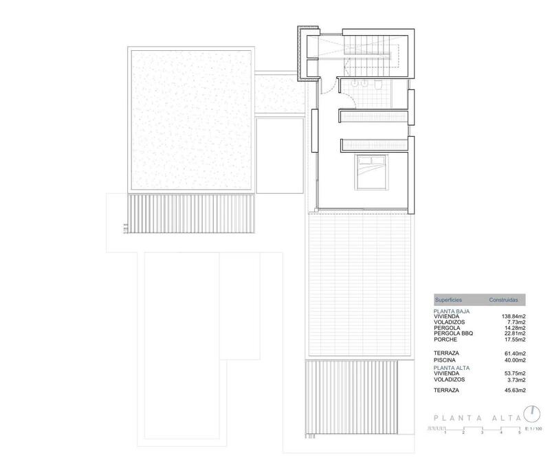
Privé master suite en buitenlevenDe begane grond omvat twee slaapkamers, een badkamer en ruime sociale ruimtes. Op de bovenverdieping biedt de hoofdslaapkamer een privétoevluchtsoord met een eigen badkamer, een royale inloopkast en een terras van 45 m2, perfect om te genieten van het uitzicht op de zonsopgang en de mediterrane bries. De buitenruimte is ontworpen om te ontspannen, met een privézwembad, zonneterrassen en een weelderige omgeving die rust en privacy garanderen.
Toplocatie aan de Costa Blanca NoordJavea biedt een uitzonderlijke levensstijl met prachtige stranden, wandelroutes, jachthavens, golfbanen en gastronomische restaurants. De stad ligt op 92 km van Alicante en 105 km van Valencia.
Belangrijkste afstandenStrand en Cala del Portixol: 0,8 kmHaven en jachthaven van Javea: 8 kmGolfclub van Javea: 10 kmLuchthaven Alicante: 100 kmLuchthaven Valencia: 125 km
Uw mediterrane thuis wacht op uOf u nu op zoek bent naar een permanente woning, een luxe vakantieverblijf of een eersteklas investering, deze villa biedt privacy, comfort en een uitzonderlijke ligging aan de kust. Neem vandaag nog contact met ons op voor meer informatie of om een bezichtiging te regelen van deze exclusieve moderne woning in Javea.
eigendomseigenschappen
- 3 slaapkamers
- 2 badkamers
- 210m² Bouwgrootte
- 1.000m² Perceelgrootte
- Zwembad
EPC-beoordeling
| Energiebeoordelingsschaal |
|---|
| A |
| B |
| C |
| D |
| E |
| F |
| G |
Kostenverdeling
* Overdrachtsbelasting is gebaseerd op de verkoopwaarde of de kadastrale waarde welke het hoogste is.
** De bovenstaande informatie wordt alleen als richtlijn weergegeven.
Hypotheekberekening
Hypotheek resultaat
* De bovenstaande informatie wordt geleverd door The MHI Group en wordt alleen als richtlijn weergegeven. Individuele omstandigheden kunnen het tarief dat wij bieden voor een hypotheek wijzigen. Klik op onderstaande link voor een persoonlijke offerte.
Similar Properties
Spaans onroerend goed nieuws & updates door Spain Property Portal.com
In Spain, two primary taxes are associated with property purchases: IVA (Value Added Tax) and ITP (Property Transfer Tax). IVA, typically applicable to new constructions, stands at 10% of the property's value. On the other hand, ITP, levied on resale properties, varies between regions but generally ranges from 6% to 10%.
Spain Property Portal is an online platform that has revolutionized the way people buy and sell real estate in Spain.
In Spain, mortgages, known as "hipotecas," are common, and the market has seen significant growth and evolution.







