Stel een vraag over deze woning
Starting from €635,000, this beautiful Formentera-style villa project is set on a sunny south-facing 800 m² plot in the highly desirable Monte Solana area of Pedreguer, offering open views, tranquillity, and excellent connectivity.
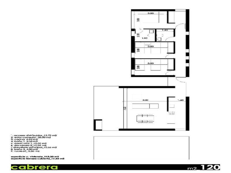
The current concept proposes a single-level villa of 120 m², designed with clean Mediterranean lines, natural materials, and a strong emphasis on light, flow, and indoor–outdoor living. The price includes a 32 m² private swimming pool and a 20 m² connecting terrace, creating a seamless transition between interior spaces and outdoor living areas.
Importantly, no licence has yet been applied for, giving buyers complete freedom. The design can be adapted, extended, or fully redesigned, or a totally bespoke villa can be created to suit personal tastes, lifestyle needs, or future plans. This flexibility makes the project ideal for clients who want to be involved in the design process and build a home that is truly their own.
Monte Solana is a well-established residential area, just minutes from the village of Pedreguer, with easy access to the AP-7 motorway and a short drive to Dénia, Jávea and their beaches. The location combines peace, views, and convenience — perfect for a permanent residence, a luxury holiday home, or a smart investment.
A rare opportunity to create a tailor-made Mediterranean home in one of the Costa Blanca North's most sought-after locations.
???? Contact us for design options, timelines, and custom build possibilities.
eigendomseigenschappen
- 3 slaapkamers
- 2 badkamers
- 120m² Bouwgrootte
- 1.000m² Perceelgrootte
Kostenverdeling
* Overdrachtsbelasting is gebaseerd op de verkoopwaarde of de kadastrale waarde welke het hoogste is.
** De bovenstaande informatie wordt alleen als richtlijn weergegeven.
Hypotheekberekening
Hypotheek resultaat
* De bovenstaande informatie wordt geleverd door The MHI Group en wordt alleen als richtlijn weergegeven. Individuele omstandigheden kunnen het tarief dat wij bieden voor een hypotheek wijzigen. Klik op onderstaande link voor een persoonlijke offerte.
Similar Properties
Spaans onroerend goed nieuws & updates door Spain Property Portal.com
In Spain, two primary taxes are associated with property purchases: IVA (Value Added Tax) and ITP (Property Transfer Tax). IVA, typically applicable to new constructions, stands at 10% of the property's value. On the other hand, ITP, levied on resale properties, varies between regions but generally ranges from 6% to 10%.
Spain Property Portal is an online platform that has revolutionized the way people buy and sell real estate in Spain.
In Spain, mortgages, known as "hipotecas," are common, and the market has seen significant growth and evolution.













