Stel een vraag over deze woning
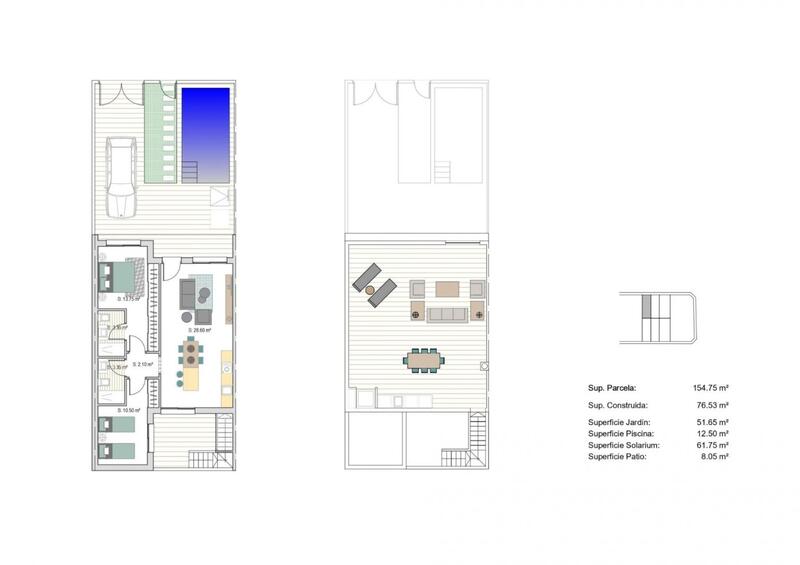
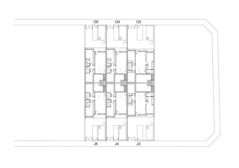
Nieuwbouw luxe complex van 24 gelijkvloerse villa's of op 2 verdiepingen met prive zwembad, terras en solarium met zomerkeuken die u toelaat om alle uren van de zon te genieten, elke dag van het jaar.
Elke villa heeft 2 of 3 slaapkamers en 2 badkamers op één niveau of 3 slaapkamers en 3 badkamers op twee niveaus.
Ontworpen met een eigentijdse stijl en een open concept, bestaande uit een volledig uitgeruste keuken en een woon-eetkamer.
Het project is gelegen in San Javier (Murcia), vlakbij het strand, omgeven door diensten, parken, sportfaciliteiten en verschillende golfbanen.
De woning zal voldoen aan de hoogste normen en zal worden uitgerust met:
Prive zwembad met douche.
Keuken volledig ingericht en uitgerust met oven, magnetron, koelkast, geïntegreerde vaatwasser, kookplaat en afzuigkap.
Verlichting: zowel in het huis (eetkamer, keuken, gangen en badkamers) als in de buitenruimtes.
Beklede kasten met laden.
Volledig ingerichte badkamers met toilet, badmeubel, spiegel en douche met hor panelen.
Pre-installatie voor airconditioning via leidingen.
Solarium met zomerkeuken.
Parkeerplaats op het perceel.
San Javier ligt dicht bij alle voorzieningen met gemakkelijke toegang tot het strand, watersporten, winkels en het transportnetwerk.
Hier kunt u genieten van alle faciliteiten die San Javier te bieden heeft, zoals de plaatselijke winkels, bars en restaurants, maar ook in de buurt van winkelcentra, de luchthaven van Murcia en alle mooie plekjes die te vinden zijn langs de Mar Menor.
De luchthaven van Corvera/Murcia ligt op 30 minuten en die van Alicante op 45 minuten.
eigendomseigenschappen
- 2 slaapkamers
- 2 badkamers
- 74m² Bouwgrootte
- 154m² Perceelgrootte
- Zwembad
EPC-beoordeling
| Energiebeoordelingsschaal |
|---|
| A |
| B |
| C |
| D |
| E |
| F |
| G |
Kostenverdeling
* Overdrachtsbelasting is gebaseerd op de verkoopwaarde of de kadastrale waarde welke het hoogste is.
** De bovenstaande informatie wordt alleen als richtlijn weergegeven.
Hypotheekberekening
Hypotheek resultaat
* De bovenstaande informatie wordt geleverd door The MHI Group en wordt alleen als richtlijn weergegeven. Individuele omstandigheden kunnen het tarief dat wij bieden voor een hypotheek wijzigen. Klik op onderstaande link voor een persoonlijke offerte.
Similar Properties
Spaans onroerend goed nieuws & updates door Spain Property Portal.com
In Spain, two primary taxes are associated with property purchases: IVA (Value Added Tax) and ITP (Property Transfer Tax). IVA, typically applicable to new constructions, stands at 10% of the property's value. On the other hand, ITP, levied on resale properties, varies between regions but generally ranges from 6% to 10%.
Spain Property Portal is an online platform that has revolutionized the way people buy and sell real estate in Spain.
In Spain, mortgages, known as "hipotecas," are common, and the market has seen significant growth and evolution.














