Stel een vraag over deze woning
Van een gevestigde ontwikkelaar zijn we trots om deze net vrijgegeven nieuwe woonwijk aan te bieden op slechts 500 m van zee in het populaire Playa Flamenca (Orihuela Costa).
Residentieel met mooie gemeenschappelijke zwembaden, jacuzzi's en mooie gemeenschappelijke tuinen. Alle diensten zoals supermarkten, bars en restaurants, etc zijn op loopafstand op een zeer centrale plek aan Orihuela Costa.
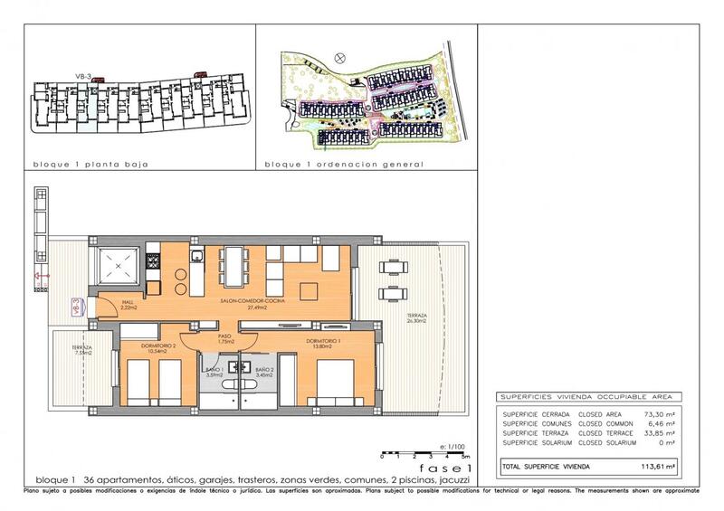
Grote verscheidenheid aan typen om uit te kiezen: studio's, appartementen met 1, 2 of 3 slaapkamers. Lage verdiepingen met privétuinen of bovenste verdiepingen met privésolariums. Alle woningen hebben een parkeerplaats en een berging inbegrepen in de prijs.
Het winkelcentrum Zenia Boulevard op 1 km afstand en verschillende golfbanen zoals Villamartin, Campoamor binnen 5 km van deze woonwijk zullen een ideale locatie zijn voor uw vakantie of uw permanente bewoning.
eigendomseigenschappen
- 2 slaapkamers
- 2 badkamers
- 73m² Bouwgrootte
- Zwembad
EPC-beoordeling
| Energiebeoordelingsschaal |
|---|
| A |
| B |
| C |
| D |
| E |
| F |
| G |
Kostenverdeling
* Overdrachtsbelasting is gebaseerd op de verkoopwaarde of de kadastrale waarde welke het hoogste is.
** De bovenstaande informatie wordt alleen als richtlijn weergegeven.
Hypotheekberekening
Hypotheek resultaat
* De bovenstaande informatie wordt geleverd door The MHI Group en wordt alleen als richtlijn weergegeven. Individuele omstandigheden kunnen het tarief dat wij bieden voor een hypotheek wijzigen. Klik op onderstaande link voor een persoonlijke offerte.
Similar Properties
Spaans onroerend goed nieuws & updates door Spain Property Portal.com
In Spain, two primary taxes are associated with property purchases: IVA (Value Added Tax) and ITP (Property Transfer Tax). IVA, typically applicable to new constructions, stands at 10% of the property's value. On the other hand, ITP, levied on resale properties, varies between regions but generally ranges from 6% to 10%.
Spain Property Portal is an online platform that has revolutionized the way people buy and sell real estate in Spain.
In Spain, mortgages, known as "hipotecas," are common, and the market has seen significant growth and evolution.
















