Stel een vraag over deze woning
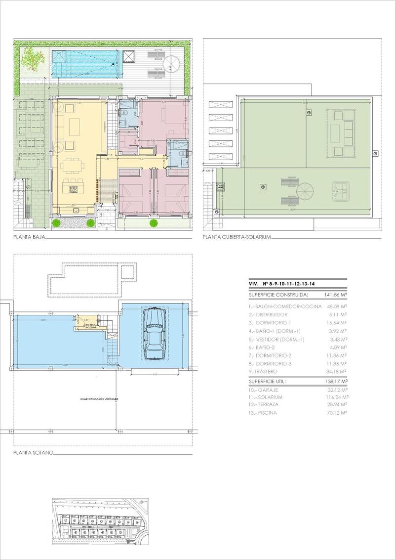
Ontdek deze prachtige nieuwe villa's gelegen in het gewilde gebied van Torrevieja, op slechts 2 km van de Middellandse Zee. Het aanbieden van de perfecte mix van luxe, comfort en functionaliteit, zijn deze 3-slaapkamer, 2-badkamer woningen ontworpen voor degenen die op zoek zijn naar een verfijnde levensstijl met alle voordelen van het leven aan de kust.
Ruim ontwerp en hoogwaardige afwerking
Deze gelijkvloerse villa's zijn zorgvuldig ontworpen voor maximaal comfort en woongemak. Met een open indeling bieden ze voldoende ruimte voor ontspanning en entertainment. De villa's zijn afgewerkt met hoogwaardige materialen, waaronder aluminium ramen met thermische onderbreking, Climalit dubbele beglazing en voorgeïnstalleerde airconditioning. Voor extra gemak zijn de woningen voorzien van elektrische rolluiken, moderne badkamers met douchebakken van hars en ingebouwde zwarte kranen, en een eigen parkeerplaats in de ondergrondse garage met extra bergruimte.
Privézwembad en solarium met prachtig uitzicht
Stap naar buiten naar je privéoase, waar je kunt genieten van de luxe van een privézwembad in je eigen tuin. Geniet vanaf het solarium op het dak van het adembenemende uitzicht op de zoutlagune van La Mata en de omgeving, en geniet elke avond van spectaculaire zonsondergangen. De woning is gelegen in het hoogste deel van Torrevieja, waardoor je verzekerd bent van zowel privacy als een indrukwekkend uitzicht.
Exclusieve gemeenschappelijke voorzieningen
De ontwikkeling biedt verschillende gemeenschappelijke voorzieningen, waaronder aangelegde tuinen, een calisthenics circuit, en een jeu de boules baan, perfect voor zowel ontspanning en recreatie. Of u nu geniet van tijd alleen of socialiseren met buren, deze villa biedt de perfecte omgeving voor zowel vreedzaam wonen en levendige gemeenschap interactie.
Toplocatie in Torrevieja
Deze villa's zijn omgeven door essentiële diensten en recreatieve opties. De luchthaven van Alicante-Elche ligt op slechts 45 minuten met de auto (43 km), waardoor internationaal reizen gemakkelijk is. Om te winkelen en te dineren, ligt het Habaneras Shopping Center op slechts 3 km afstand, met een verscheidenheid aan winkels, restaurants en entertainment opties.
Ervaar de mediterrane levensstijl
Torrevieja, aan de zuidkust van Alicante, heeft meer dan 300 dagen zon per jaar en een aangename gemiddelde jaartemperatuur van 20°C. De stad staat bekend om zijn prachtige stranden, levendige promenades, en heerlijke mediterrane keuken, waardoor het de perfecte plek voor zowel ontspanning en avontuur. Met zijn gezinsvriendelijke activiteiten en rijke culturele erfgoed, Torrevieja belooft een bevredigende levensstijl het hele jaar door.
Uw droomhuis wacht
Mis de kans niet om een luxe villa in een van de meest populaire kuststeden van Spanje te bezitten. Of u nu op zoek bent naar een permanente verblijfplaats of een vakantie retraite, deze exclusieve ontwikkeling biedt de ideale setting om het beste van het mediterrane leven te ervaren. Plan vandaag nog een bezichtiging en zet de eerste stap om je droomhuis werkelijkheid te laten worden!
eigendomseigenschappen
- 3 slaapkamers
- 2 badkamers
- 141m² Bouwgrootte
- 247m² Perceelgrootte
- Zwembad
EPC-beoordeling
| Energiebeoordelingsschaal |
|---|
| A |
| B |
| C |
| D |
| E |
| F |
| G |
Kostenverdeling
* Overdrachtsbelasting is gebaseerd op de verkoopwaarde of de kadastrale waarde welke het hoogste is.
** De bovenstaande informatie wordt alleen als richtlijn weergegeven.
Hypotheekberekening
Hypotheek resultaat
* De bovenstaande informatie wordt geleverd door The MHI Group en wordt alleen als richtlijn weergegeven. Individuele omstandigheden kunnen het tarief dat wij bieden voor een hypotheek wijzigen. Klik op onderstaande link voor een persoonlijke offerte.
Similar Properties
Spaans onroerend goed nieuws & updates door Spain Property Portal.com
In Spain, two primary taxes are associated with property purchases: IVA (Value Added Tax) and ITP (Property Transfer Tax). IVA, typically applicable to new constructions, stands at 10% of the property's value. On the other hand, ITP, levied on resale properties, varies between regions but generally ranges from 6% to 10%.
Spain Property Portal is an online platform that has revolutionized the way people buy and sell real estate in Spain.
In Spain, mortgages, known as "hipotecas," are common, and the market has seen significant growth and evolution.














