Stel een vraag over deze woning
Nieuwbouw villa's in Altaona Golf resort, Murcia.
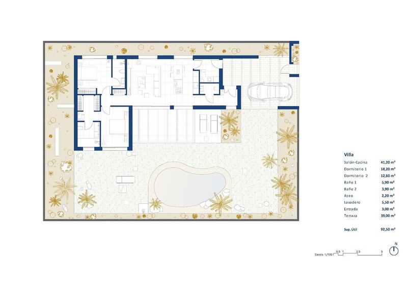
Nieuwbouwvilla's met open keuken, 2 slaapkamers, 2 badkamers, gastentoilet, terras, privétuin met zwembad en parkeerplaats.
Kenmerken:- De woningen hebben Energie Certificaat Rating A.- Airconditioning met kanaalsysteem en warmtepomp. In het hele huis behalve in de badkamers.- Elektrische vloerverwarming in de woonkamer en badkamers met individuele thermostaat per zone.- Luchtverversingssysteem in de keuken, badkamers, wasruimte en gastentoilet.- Keuken Inclusief afzuigkap en elektrische inductiekookplaat met 3 kookpunten.- Inclusief LED-verlichting in de woonkamer, hal en buiten. De rest van de kamers zijn voorbereid voor de toekomstige eigenaar om hun verlichting te installeren.- USB-aansluitingen in alle slaapkamers.- Elektronische intercom voor toegang van buiten naar binnen. Deurbel bij de ingang van het huis.- Domoticasysteem met twee slimme schakelaars.- Aangelegde privétuin met druppelirrigatiesysteem en zwembad.- Buitenomheining van de urbanisatie.- Toegangspoorten voor voertuigen tot de urbanisatie: Metalen schuifpoort met systeem om op afstand te openen
Residentieel gelegen in Altaona Golf op slechts 15 minuten met de auto van het centrum van de hoofdstad Murcia en op 20 minuten van de stranden kun je genieten van de rust en veiligheid die de golfbaan biedt met 18 holes en het comfort om dicht bij alle diensten te wonen.De luchthaven van Murcia, Corvera, ligt op slechts 15 minuten rijden.
eigendomseigenschappen
- 2 slaapkamers
- 2 badkamers
- 143m² Bouwgrootte
- 575m² Perceelgrootte
- Zwembad
EPC-beoordeling
| Energiebeoordelingsschaal |
|---|
| A |
| B |
| C |
| D |
| E |
| F |
| G |
Kostenverdeling
* Overdrachtsbelasting is gebaseerd op de verkoopwaarde of de kadastrale waarde welke het hoogste is.
** De bovenstaande informatie wordt alleen als richtlijn weergegeven.
Hypotheekberekening
Hypotheek resultaat
* De bovenstaande informatie wordt geleverd door The MHI Group en wordt alleen als richtlijn weergegeven. Individuele omstandigheden kunnen het tarief dat wij bieden voor een hypotheek wijzigen. Klik op onderstaande link voor een persoonlijke offerte.
Similar Properties
Spaans onroerend goed nieuws & updates door Spain Property Portal.com
In Spain, two primary taxes are associated with property purchases: IVA (Value Added Tax) and ITP (Property Transfer Tax). IVA, typically applicable to new constructions, stands at 10% of the property's value. On the other hand, ITP, levied on resale properties, varies between regions but generally ranges from 6% to 10%.
Spain Property Portal is an online platform that has revolutionized the way people buy and sell real estate in Spain.
In Spain, mortgages, known as "hipotecas," are common, and the market has seen significant growth and evolution.






















