Stel een vraag over deze woning


Modern wooncomplex op een toplocatieOntdek een prachtig nieuw wooncomplex in het charmante kustgebied van Mil Palmeras, met een selectie hoogwaardige appartementen en bungalows die zijn ontworpen om aan de moderne levensstandaard te voldoen. Dit complex ligt op slechts 600 meter van de zandstranden van Mil Palmeras en combineert comfort, stijl en gemak.
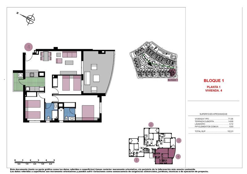
Ruime en stijlvolle appartementen en bungalowsKies uit appartementen met 2 of 3 slaapkamers, elk met 2 badkamers en ruime terrassen. Je kunt ook kiezen voor bungalows met 2 slaapkamers en 2 badkamers, beschikbaar op de begane grond met een privétuin of op de bovenste verdieping met een exclusief solarium.
Hoogwaardige afwerking voor modern wonenDit project biedt uitzonderlijke kenmerken en afwerkingen:PVC buitenschrijnwerk met thermische onderbreking en dubbele beglazing “Climalit” met lage emissiviteit.Verstevigde toegangsdeuren voor extra veiligheid.Badkamers uitgerust met wastafel, spiegels en moderne armaturen.Ingebouwde kasten met LED-verlichting aan de binnenkant, lades en hangrails.Warm water geleverd door aerothermische technologie voor energie-efficiëntie.Pre-installatie voor airconditioning en verwarming in woon- en slaapkamers.Exclusieve gemeenschapsvoorzieningen
Het complex is volledig omheind en beschikt over:Prachtig aangelegde gemeenschappelijke tuinen.Sprankelende zwembaden voor bewoners.Optionele ondergrondse parkeerplaatsen en bergingen voor extra gemak.
Toplocatie in Mil PalmerasDit complex ligt tussen Campoamor en Torre de la Horadada en biedt gemakkelijke toegang tot plaatselijke voorzieningen, scholen, restaurants en sportfaciliteiten die het hele jaar door geopend zijn. Mil Palmeras staat bekend om het charmante stadsplein en de levendige “restaurantstraat” met diverse internationale keukens.
Voor natuurliefhebbers bieden het natuurpark Lo Monte, een beschermd vogelreservaat, en het natuurpark Río Seco perfecte plekken om te wandelen en te ontspannen.
Nabijheid van belangrijke bezienswaardighedenInternationale luchthaven Murcia: 40 km (ongeveer 45 minuten).Luchthaven Alicante: 75 km (ongeveer 45 minuten).Dichtstbijzijnde golfbanen: Op minder dan 10 km afstand.Winkelcentra: 8 km tot Zenia Boulevard.Jachthavens en havens: 5 km naar Torre de la Horadada.
Uw droomhuis wachtMis de kans niet om een woning te bezitten in dit uitzonderlijke wooncomplex. Of je nu op zoek bent naar een vakantiehuis of een permanente verblijfplaats, dit project in Mil Palmeras heeft het allemaal. Neem vandaag nog contact met ons op voor meer informatie of om een bezichtiging te plannen!
eigendomseigenschappen
- 3 slaapkamers
- 2 badkamers
- 102m² Bouwgrootte
- Zwembad
EPC-beoordeling
Energiebeoordelingsschaal |
---|
A |
B |
C |
D |
E |
F |
G |
Kostenverdeling
* Overdrachtsbelasting is gebaseerd op de verkoopwaarde of de kadastrale waarde welke het hoogste is.
** De bovenstaande informatie wordt alleen als richtlijn weergegeven.
Hypotheekberekening
Hypotheek resultaat
* De bovenstaande informatie wordt geleverd door The MHI Group en wordt alleen als richtlijn weergegeven. Individuele omstandigheden kunnen het tarief dat wij bieden voor een hypotheek wijzigen. Klik op onderstaande link voor een persoonlijke offerte.
Similar Properties
Spaans onroerend goed nieuws & updates door Spain Property Portal.com
In Spain, two primary taxes are associated with property purchases: IVA (Value Added Tax) and ITP (Property Transfer Tax). IVA, typically applicable to new constructions, stands at 10% of the property's value. On the other hand, ITP, levied on resale properties, varies between regions but generally ranges from 6% to 10%.
Spain Property Portal is an online platform that has revolutionized the way people buy and sell real estate in Spain.
In Spain, mortgages, known as "hipotecas," are common, and the market has seen significant growth and evolution.