Stel een vraag over deze woning


Nieuwbouw Onafhankelijke moderne villa's die kunnen worden gebouwd op rustieke of stedelijke percelen hebben we een ruim aanbod beschikbaar in de omgeving van Pinoso:
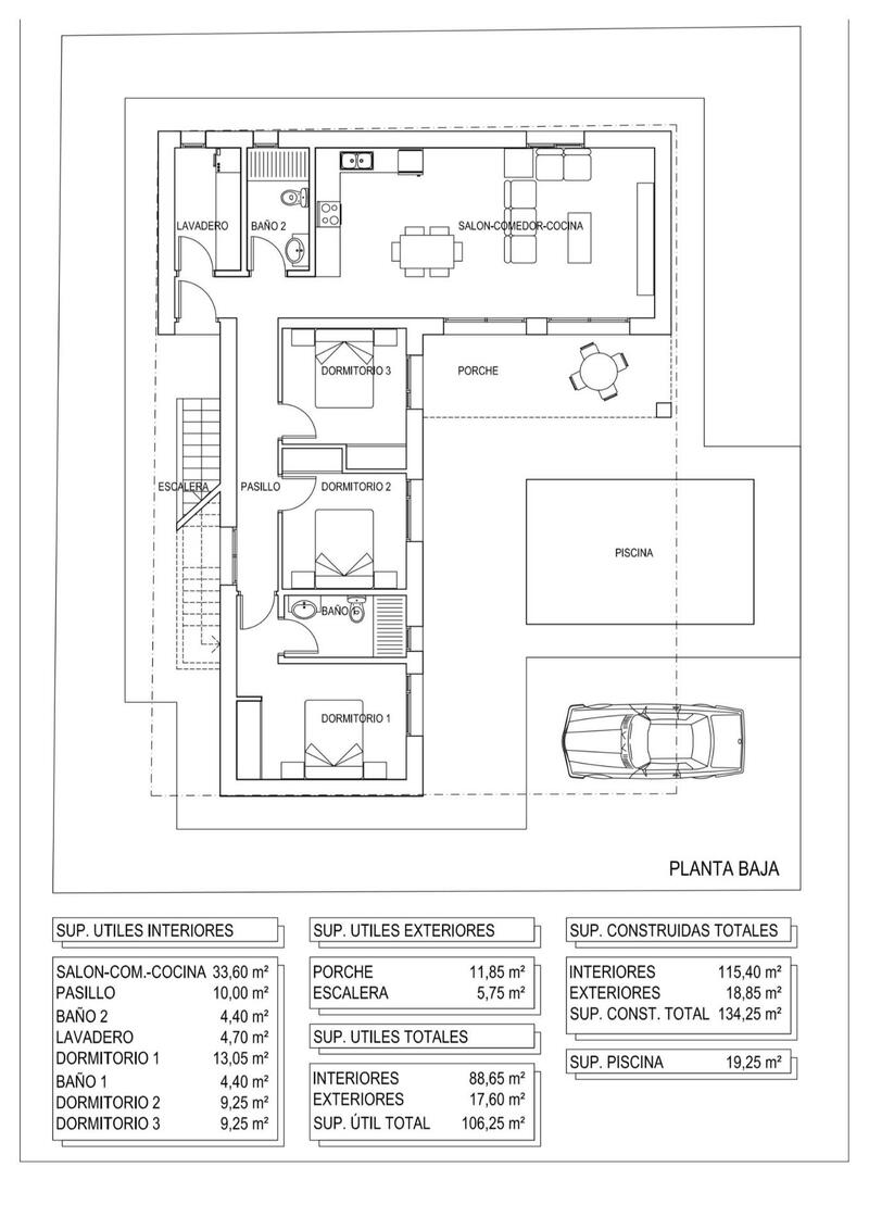
- 3 slaapkamers, 2 badkamers
- Prive zwembad
- Volledige installatie van airconditioning
- Volledig ingerichte keuken
- Grote keuze aan kwaliteitsmaterialen
- Elektriciteit en water
- 4 zonnepanelen inbegrepen
- AA Energie label
- 15.658 m² grondstuk in Pinoso
- 3.000 m² omheind perceel voor eenvoudig onderhoud
- Gemotoriseerde schuifpoort
Op de rustieke percelen wordt ongeveer 3.000 m2 van het totale perceel omheind en de huizen worden geleverd met ongeveer 1.000 m2 grind rond het huis.
Het huis heeft een privé zwembad en fotovoltaïsche zonnepanelen voor de elektriciteitsvoorziening.
Er zijn verschillende rustieke percelen om uit te kiezen op verschillende locaties, elk met een andere prijs (in de prijzen gepubliceerd in deze advertentie is rekening gehouden met een perceel met een waarde van 40.000 eur, als de koper een ander perceel kiest, zal de uiteindelijke prijs dienovereenkomstig worden herberekend).
De leveringstermijn is 8 maanden vanaf het verlenen van de bouwvergunning.
Het perceel wordt verworven onder een zelfpromotieregeling: de koper doet betalingen voor de prijs naarmate de bouwer het werk uitvoert.
eigendomseigenschappen
- 3 slaapkamers
- 2 badkamers
- 127m² Bouwgrootte
- 15.658m² Perceelgrootte
- Zwembad
EPC-beoordeling
Energiebeoordelingsschaal |
---|
A |
B |
C |
D |
E |
F |
G |
Kostenverdeling
* Overdrachtsbelasting is gebaseerd op de verkoopwaarde of de kadastrale waarde welke het hoogste is.
** De bovenstaande informatie wordt alleen als richtlijn weergegeven.
Hypotheekberekening
Hypotheek resultaat
* De bovenstaande informatie wordt geleverd door The MHI Group en wordt alleen als richtlijn weergegeven. Individuele omstandigheden kunnen het tarief dat wij bieden voor een hypotheek wijzigen. Klik op onderstaande link voor een persoonlijke offerte.
Similar Properties
Spaans onroerend goed nieuws & updates door Spain Property Portal.com
In Spain, two primary taxes are associated with property purchases: IVA (Value Added Tax) and ITP (Property Transfer Tax). IVA, typically applicable to new constructions, stands at 10% of the property's value. On the other hand, ITP, levied on resale properties, varies between regions but generally ranges from 6% to 10%.
Spain Property Portal is an online platform that has revolutionized the way people buy and sell real estate in Spain.
In Spain, mortgages, known as "hipotecas," are common, and the market has seen significant growth and evolution.