Faire une demande sur cette propriété
Starting from €635,000, this beautiful Formentera-style villa project is set on a sunny south-facing 800 m² plot in the highly desirable Monte Solana area of Pedreguer, offering open views, tranquillity, and excellent connectivity.
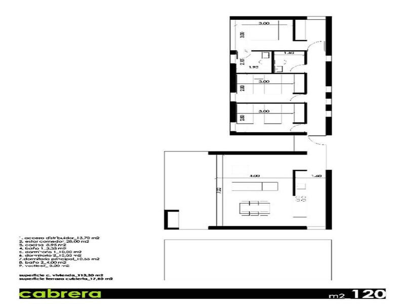
The current concept proposes a single-level villa of 120 m², designed with clean Mediterranean lines, natural materials, and a strong emphasis on light, flow, and indoor–outdoor living. The price includes a 32 m² private swimming pool and a 20 m² connecting terrace, creating a seamless transition between interior spaces and outdoor living areas.
Importantly, no licence has yet been applied for, giving buyers complete freedom. The design can be adapted, extended, or fully redesigned, or a totally bespoke villa can be created to suit personal tastes, lifestyle needs, or future plans. This flexibility makes the project ideal for clients who want to be involved in the design process and build a home that is truly their own.
Monte Solana is a well-established residential area, just minutes from the village of Pedreguer, with easy access to the AP-7 motorway and a short drive to Dénia, Jávea and their beaches. The location combines peace, views, and convenience — perfect for a permanent residence, a luxury holiday home, or a smart investment.
A rare opportunity to create a tailor-made Mediterranean home in one of the Costa Blanca North's most sought-after locations.
???? Contact us for design options, timelines, and custom build possibilities.
Caractéristiques de l'établissement
- 3 chambres
- 2 salles de bains
- 120m² Taille de construction
- 1.000m² Taille de la parcelle
Ventilation des coûts
* Les droits de mutation sont basés sur la valeur de vente ou la valeur cadastrale, selon la plus élevée des deux.
** Les informations ci-dessus sont affichées à titre indicatif uniquement.
Calculateur d'hypothèque
Résultat hypothécaire
* Les informations ci-dessus sont fournies par The MHI Group et affichées à titre indicatif uniquement. Des circonstances individuelles pourraient modifier le taux que nous offrons pour un prêt hypothécaire. Veuillez cliquer sur le lien ci-dessous pour obtenir un devis personnalisé.
Similar Properties
Nouvelles et mises à jour de l'immobilier espagnol par Spain Property Portal.com
In Spain, two primary taxes are associated with property purchases: IVA (Value Added Tax) and ITP (Property Transfer Tax). IVA, typically applicable to new constructions, stands at 10% of the property's value. On the other hand, ITP, levied on resale properties, varies between regions but generally ranges from 6% to 10%.
Spain Property Portal is an online platform that has revolutionized the way people buy and sell real estate in Spain.
In Spain, mortgages, known as "hipotecas," are common, and the market has seen significant growth and evolution.













