Faire une demande sur cette propriété
Villas neuves avec plusieurs modèles au choix, comprenant 2 ou 3 chambres, sur un ou deux étages et construites avec dalle ou structure : le prix exact sera calculé en fonction du modèle et du terrain choisi.
Toutes les villas sont construites sur des terrains rustiques de plus de 10 000 m², dont 2 500 m² seront clôturés.
Les villas disposent d'une cuisine américaine avec salon, placards intégrés, piscine privée, porche et place de parking extérieure.
Plusieurs terrains sont disponibles, le prix a été calculé sur la base d'un terrain de 62 000 euros (si vous choisissez un autre terrain, la différence sera payée ou remboursée en fonction du prix de celui-ci).
Réalisé en autopromotion, livraison dans un délai de 12 mois à compter de l'octroi du permis.
Si vous recherchez un environnement calme, à proximité de villages espagnols typiques, loin du tourisme de masse, entouré de montagnes, avec un très grand terrain et à environ 30 minutes de la mer, cette maison est faite pour vous.
La Romana est un village espagnol typique avec tous les services nécessaires à la vie quotidienne, entouré de montagnes et de plusieurs sites naturels à proximité où vous pourrez faire des randonnées ou du VTT.
Situé à 30 minutes de l'aéroport d'Alicante.
Caractéristiques de l'établissement
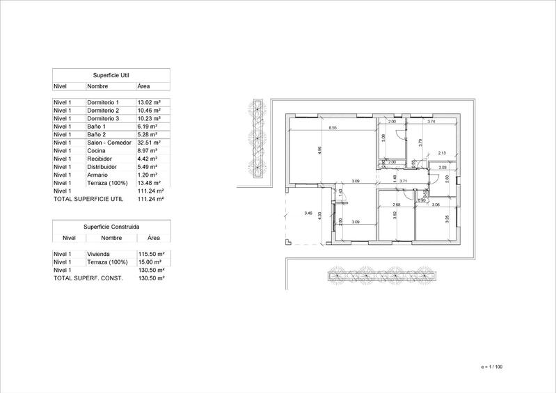
- 3 chambres
- 2 salles de bains
- 130m² Taille de construction
- 10.227m² Taille de la parcelle
- Piscine
Cote EPC
| Échelle d'évaluation énergétique |
|---|
| A |
| B |
| C |
| D |
| E |
| F |
| G |
Ventilation des coûts
* Les droits de mutation sont basés sur la valeur de vente ou la valeur cadastrale, selon la plus élevée des deux.
** Les informations ci-dessus sont affichées à titre indicatif uniquement.
Calculateur d'hypothèque
Résultat hypothécaire
* Les informations ci-dessus sont fournies par The MHI Group et affichées à titre indicatif uniquement. Des circonstances individuelles pourraient modifier le taux que nous offrons pour un prêt hypothécaire. Veuillez cliquer sur le lien ci-dessous pour obtenir un devis personnalisé.
Similar Properties
Nouvelles et mises à jour de l'immobilier espagnol par Spain Property Portal.com
In Spain, two primary taxes are associated with property purchases: IVA (Value Added Tax) and ITP (Property Transfer Tax). IVA, typically applicable to new constructions, stands at 10% of the property's value. On the other hand, ITP, levied on resale properties, varies between regions but generally ranges from 6% to 10%.
Spain Property Portal is an online platform that has revolutionized the way people buy and sell real estate in Spain.
In Spain, mortgages, known as "hipotecas," are common, and the market has seen significant growth and evolution.























