Faire une demande sur cette propriété
Contemporary living in the heart of Estepona
Welcome to an exclusive residential project of 87 new build homes with 2, 3 and 4 bedrooms, offering a wide selection of layouts including spacious apartments, penthouses with private solariums and stylish townhouses Located in a peaceful and fast growing residential district of Estepona, this development provides the ideal balance between comfort, modern lifestyle and excellent connectivity
Set just 1600 m from the Mediterranean Sea, this residential community sits in one of the city's most promising urban expansion zones With quiet surroundings, full access to essential services and convenient transport connections, this is a perfect location for both year round living and holiday retreats
A vibrant neighborhood with everything at your doorstep
The complex enjoys a privileged setting just steps from the Estepona Athletics Stadium and the Felipe VI Theatre Auditorium The area is surrounded by a growing commercial hub featuring supermarkets, shops, convenience stores, schools, public transport lines and fast access to major road connections
Residents will also benefit from proximity to Estepona Marina, where a wide selection of restaurants, cafés and bars offers exceptional Mediterranean and international cuisine With the beach and lively promenade just a short distance away, every day brings the opportunity to enjoy the outdoor lifestyle that makes Estepona so special
Modern architecture and premium amenities
Inspired by the soft Mediterranean landscape, the architecture features fluid lines and southern orientation to maximize sunlight and sea breezes The urbanization is fully gated to ensure privacy, comfort and security
Designed for wellbeing, the communal areas include a saltwater swimming pool, gym, landscaped gardens, parking spaces and private storage rooms Interiors stand out for their modern design, generous layouts and smart distribution that enhances natural light Spacious terraces create the perfect setting for outdoor dining, chill out areas or relaxing while enjoying open views
Strategic Costa del Sol location
Distances to main points of interest
Beach 16 km
Estepona Marina 2 km
Puerto Banus 25 km
Marbella 30 km
Malaga International Airport 80 km
Renowned golf courses 5 to 15 km
Live the authentic Mediterranean lifestyle
Estepona is one of the most desirable destinations on the Costa del Sol, offering over 20 km of coastline, a modern marina, cultural attractions and a vibrant year round atmosphere Whether you are looking for a permanent residence, a holiday home or a secure investment opportunity, this development offers exceptional value and lifestyle
Contact us today to schedule a visit and secure your new home in Estepona
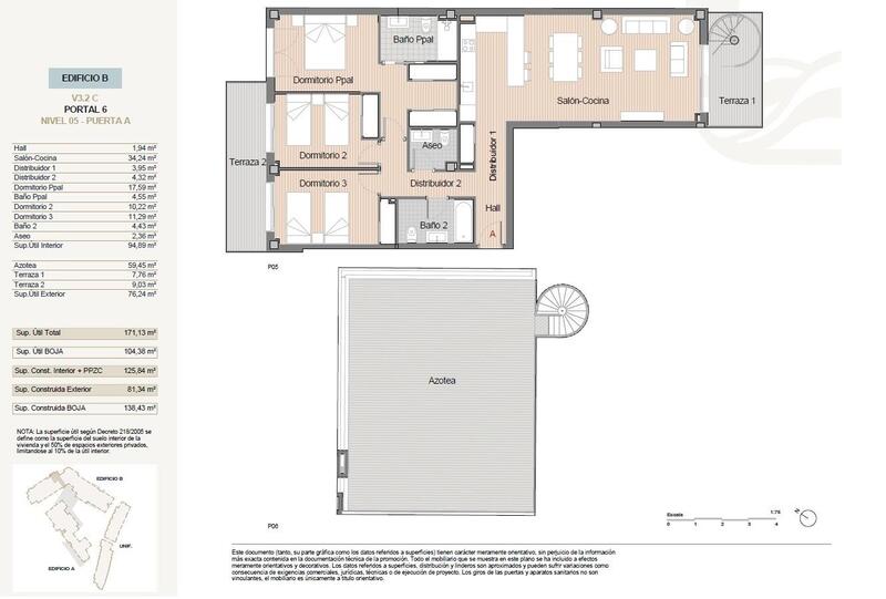
Caractéristiques de l'établissement
- 3 chambres
- 2 salles de bains
- 138m² Taille de construction
- Double Bedrooms: 5
- Communal Pool
- Gym
Ventilation des coûts
* Les droits de mutation sont basés sur la valeur de vente ou la valeur cadastrale, selon la plus élevée des deux.
** Les informations ci-dessus sont affichées à titre indicatif uniquement.
Calculateur d'hypothèque
Résultat hypothécaire
* Les informations ci-dessus sont fournies par The MHI Group et affichées à titre indicatif uniquement. Des circonstances individuelles pourraient modifier le taux que nous offrons pour un prêt hypothécaire. Veuillez cliquer sur le lien ci-dessous pour obtenir un devis personnalisé.
Similar Properties
Nouvelles et mises à jour de l'immobilier espagnol par Spain Property Portal.com
In Spain, two primary taxes are associated with property purchases: IVA (Value Added Tax) and ITP (Property Transfer Tax). IVA, typically applicable to new constructions, stands at 10% of the property's value. On the other hand, ITP, levied on resale properties, varies between regions but generally ranges from 6% to 10%.
Spain Property Portal is an online platform that has revolutionized the way people buy and sell real estate in Spain.
In Spain, mortgages, known as "hipotecas," are common, and the market has seen significant growth and evolution.













