Faire une demande sur cette propriété

Villa neuve exclusive dans un quartier résidentiel privilégié de Calpe
Située dans l'un des quartiers résidentiels les plus prisés de Calpe, cette villa neuve offre une combinaison parfaite entre confort moderne, intimité et proximité du centre-ville et des plages. À seulement 900 mètres du littoral et à quelques minutes de tous les services essentiels, cette propriété se trouve à la périphérie de la ville, dans un environnement calme et sécurisé.
Habitat de plain-pied avec agencement ouvert
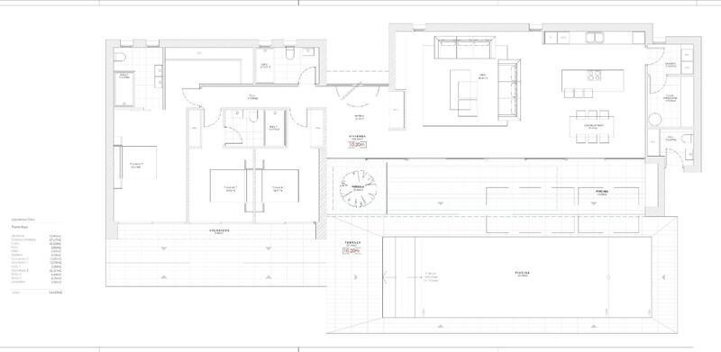
Conçue pour être pratique et facile à vivre, la villa est répartie sur un seul étage, ce qui la rend idéale pour les familles et les retraités. L'entrée donne sur un hall lumineux qui s'ouvre sur un spacieux salon/salle à manger ouvert avec une cuisine moderne équipée d'un îlot et d'une buanderie séparée. De grandes portes coulissantes relient l'intérieur à un porche couvert avec un barbecue intégré, une grande terrasse et une piscine privée de 52 m².
Trois chambres et quatre salles de bains pour un confort maximal
L'espace nuit est intelligemment aménagé dans l'aile droite de la maison et comprend :Une suite parentale avec dressing et salle de bains attenanteUne deuxième chambre avec salle de bains attenanteUne troisième chambre avec accès à une salle de bains complète dans le couloirUne salle de bains supplémentaire avec accès extérieur, conçue pour desservir la piscine
Finitions luxueuses et spécifications de haute qualitéCette villa est construite selon les normes les plus strictes et comprend :Chauffage au sol et climatisation centrale entièrement installéeSystème domotique intelligentSystème d'alarme pour une sécurité renforcéeMenuiserie extérieure haut de gamme avec rupture de pont thermique et stores motorisés dans les chambresMeubles de cuisine design avec appareils électroménagers intégrésJardin paysager avec haies de cyprès pour plus d'intimitéParking privé fermé pour deux véhicules
Découvrez Calpe et ses environs
Calpe est un joyau côtier de la région de la Marina Alta, dans la province d'Alicante, connu pour son mélange de charme valencien et de commodités modernes. La ville abrite trois belles plages de sable, l'emblématique rocher Peñón de Ifach et deux clubs nautiques : le Real Club Náutico de Calpe et le Club Náutico Puerto Blanco.
Distances vers les principaux points d'intérêt :Plage : 0,9 kmCentre-ville de Calpe : 1,5 kmAltea : 11 kmBenidorm : 22 kmGolf Ifach : 9 kmAéroport d'Alicante : 78 km (environ 1 heure)Aéroport de Valence : 130 km (environ 1 heure et demie)
Votre maison idéale au cœur de la Costa Blanca
Découvrez le meilleur de la vie méditerranéenne. Contactez-nous dès aujourd'hui pour organiser une visite et faire de cette magnifique villa à Calpe votre prochaine maison.
Caractéristiques de l'établissement
- 3 chambres
- 4 salles de bains
- 249m² Taille de construction
- 800m² Taille de la parcelle
- Piscine
Cote EPC
Échelle d'évaluation énergétique |
---|
A |
B |
C |
D |
E |
F |
G |
Ventilation des coûts
* Les droits de mutation sont basés sur la valeur de vente ou la valeur cadastrale, selon la plus élevée des deux.
** Les informations ci-dessus sont affichées à titre indicatif uniquement.
Calculateur d'hypothèque
Résultat hypothécaire
* Les informations ci-dessus sont fournies par The MHI Group et affichées à titre indicatif uniquement. Des circonstances individuelles pourraient modifier le taux que nous offrons pour un prêt hypothécaire. Veuillez cliquer sur le lien ci-dessous pour obtenir un devis personnalisé.
Similar Properties
Nouvelles et mises à jour de l'immobilier espagnol par Spain Property Portal.com
In Spain, two primary taxes are associated with property purchases: IVA (Value Added Tax) and ITP (Property Transfer Tax). IVA, typically applicable to new constructions, stands at 10% of the property's value. On the other hand, ITP, levied on resale properties, varies between regions but generally ranges from 6% to 10%.
Spain Property Portal is an online platform that has revolutionized the way people buy and sell real estate in Spain.
In Spain, mortgages, known as "hipotecas," are common, and the market has seen significant growth and evolution.