Haga una consulta sobre esta propiedad
Con precios desde 635.000 €, este hermoso proyecto de villa estilo Formentera se ubica en una soleada parcela de 800 m² con orientación sur en la codiciada zona de Monte Solana en Pedreguer, ofreciendo vistas abiertas, tranquilidad y excelente conectividad.
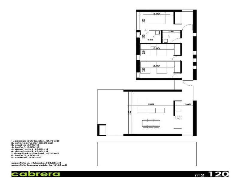
El concepto actual propone una villa de una sola planta de 120 m², diseñada con líneas mediterráneas depuradas, materiales naturales y un fuerte énfasis en la luz, la fluidez y la integración de la vida interior y exterior. El precio incluye una piscina privada de 32 m² y una terraza de 20 m² que la conecta, creando una transición fluida entre los espacios interiores y las zonas de estar exteriores.
Cabe destacar que aún no se ha solicitado licencia, lo que ofrece total libertad a los compradores. El diseño se puede adaptar, ampliar o rediseñar por completo, o bien crear una villa totalmente a medida para adaptarse a los gustos personales, las necesidades de su estilo de vida o sus planes de futuro. Esta flexibilidad hace que el proyecto sea ideal para clientes que desean participar en el proceso de diseño y construir una casa verdaderamente suya.
Monte Solana es una zona residencial consolidada, a pocos minutos del pueblo de Pedreguer, con fácil acceso a la autopista AP-7 y a un corto trayecto en coche de Dénia, Jávea y sus playas. La ubicación combina tranquilidad, vistas y comodidad: perfecta para una residencia permanente, una casa de vacaciones de lujo o una inversión inteligente.
Una oportunidad única para crear una casa mediterránea a medida en una de las zonas más codiciadas de la Costa Blanca Norte.
???? Contáctenos para conocer las opciones de diseño, plazos y posibilidades de construcción a medida.
caracteristicas de la propiedad
- 3 dormitorios
- 2 baños
- 120m² Tamaño de construcción
- 1.000m² Tamaño de la parcela
Desglose de costos
* El impuesto de transferencia se basa en el valor de venta o el valor catastral, el que sea más alto.
** La información anterior se muestra solo como guía.
Calculadora de hipoteca
Resultado hipotecario
* La información anterior es proporcionada por The MHI Group y se muestra solo como una guía. Las circunstancias individuales podrían cambiar la tasa que ofrecemos para una hipoteca. Haga clic en el enlace a continuación para obtener una cotización personalizada.
Similar Properties
Noticias inmobiliarias de España en Spain Property Portal.com
In Spain, two primary taxes are associated with property purchases: IVA (Value Added Tax) and ITP (Property Transfer Tax). IVA, typically applicable to new constructions, stands at 10% of the property's value. On the other hand, ITP, levied on resale properties, varies between regions but generally ranges from 6% to 10%.
Spain Property Portal is an online platform that has revolutionized the way people buy and sell real estate in Spain.
In Spain, mortgages, known as "hipotecas," are common, and the market has seen significant growth and evolution.













