Haga una consulta sobre esta propiedad
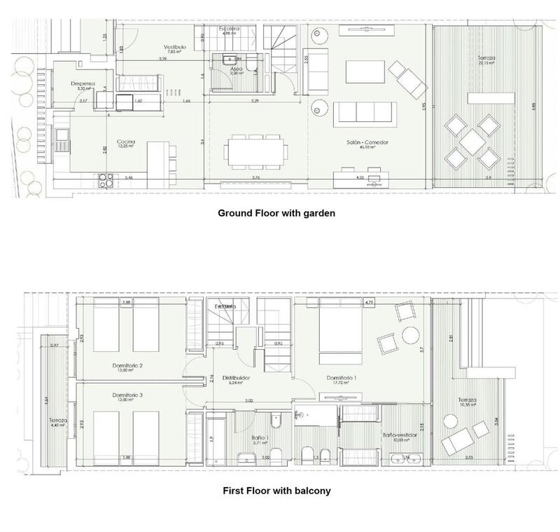
En la planta baja, un salón luminoso y espacioso se abre a una gran terraza orientada al oeste y a un jardín privado, perfecto para reuniones al aire libre, con vistas espectaculares al campo de golf. La cocina, de diseño moderno, está totalmente equipada con electrodomésticos de alta gama. En este nivel también encontrará un aseo de invitados y un práctico trastero.
En la primera planta, el dormitorio principal dispone de baño en suite y un balcón acristalado privado con vistas al campo de golf. Dos dormitorios adicionales, de buen tamaño, comparten un baño con bañera y tienen acceso a un balcón con vistas a la piscina comunitaria.
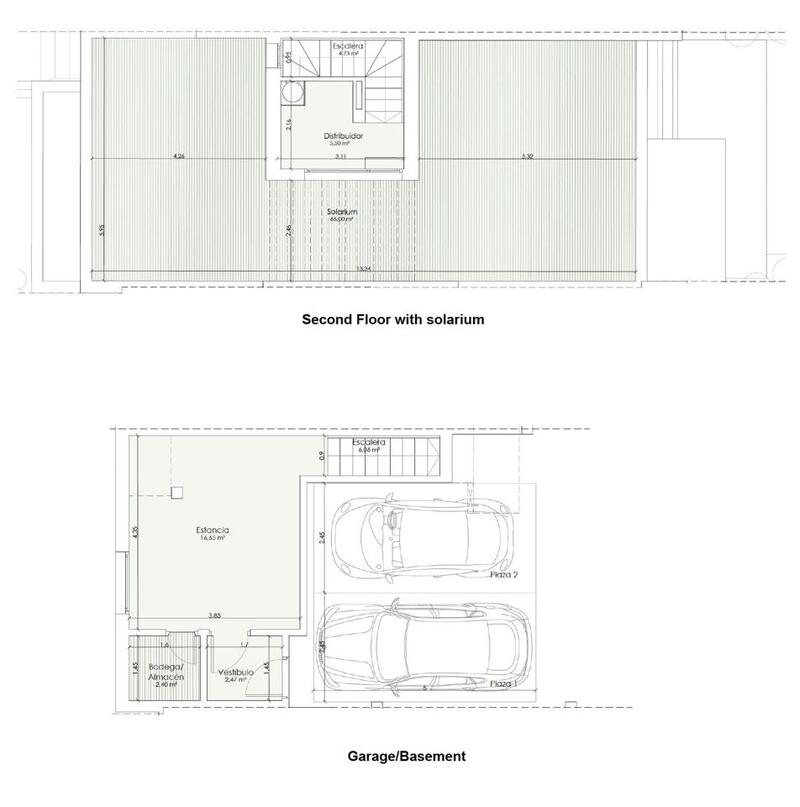
La amplia azotea ofrece vistas panorámicas al mar Mediterráneo, al campo de golf y a las zonas comunes. Los grandes ventanales con marcos de aluminio inundan la vivienda de luz natural, mientras que un sistema de aerotermia garantiza confort durante todo el año.
Situado en una comunidad cerrada con seguridad 24 horas, este adosado ofrece lujo y tranquilidad. El complejo cuenta con gimnasio, sauna y piscina comunitaria, rodeados de jardines cuidados y alcornoques centenarios. En un entorno tranquilo y a solo unos minutos en coche de la playa de Alcaidesa y del puerto deportivo de Sotogrande.
Una oportunidad única de vivir en una de las ubicaciones más exclusivas de España. ¡No deje pasar la ocasión de ser propietario de esta magnífica vivienda!
caracteristicas de la propiedad
- 3 dormitorios
- 2 baños
- 280m² Tamaño de construcción
- Piscina
- aire acondicionado
- armarios empotrados
- azotea
- buen estado
- calefacción central
- cocina amueblada
- cocina equipada
- edificio con garaje
- exterior
- gimnasio
- jardín
- jardín comunitario
- lavadero
- luminoso
- parking
- piscina comunitaria
- plaza garaje incluida
- terraza
- urbanizacion privada
- vigilancia 24h
- vistas al golf
- vistas al mar
Desglose de costos
* El impuesto de transferencia se basa en el valor de venta o el valor catastral, el que sea más alto.
** La información anterior se muestra solo como guía.
Calculadora de hipoteca
Resultado hipotecario
* La información anterior es proporcionada por The MHI Group y se muestra solo como una guía. Las circunstancias individuales podrían cambiar la tasa que ofrecemos para una hipoteca. Haga clic en el enlace a continuación para obtener una cotización personalizada.
Similar Properties
Noticias inmobiliarias de España en Spain Property Portal.com
In Spain, two primary taxes are associated with property purchases: IVA (Value Added Tax) and ITP (Property Transfer Tax). IVA, typically applicable to new constructions, stands at 10% of the property's value. On the other hand, ITP, levied on resale properties, varies between regions but generally ranges from 6% to 10%.
Spain Property Portal is an online platform that has revolutionized the way people buy and sell real estate in Spain.
In Spain, mortgages, known as "hipotecas," are common, and the market has seen significant growth and evolution.























